Exklusive Altbauresidenz in Bestlage nahe Parlament – großzügig, generalsaniert & unbefristet
Wohnung
,
1010
Wien
Lage der Immobilie
Das Gebäude befindet sich in der Doblhoffgasse 5. -Stationen öffentlicher Verkehrsmittel: Straßenbahn 2 - Rathaus (ca. 190m) -Stationen öffentlicher Verkehrsmittel: Straßenbahn 46 - Auerspergstraße (ca. 180m) -Stationen öffentlicher Verkehrsmittel: U-Bahn (U3) - Volkstheater (ca. 400m) -Geschäfte des täglichen Bedarfs in direkter Umgebung: (BILLA ca. 150m) -Rathauspark (ca. 200 m)Beschreibung der Immobilie
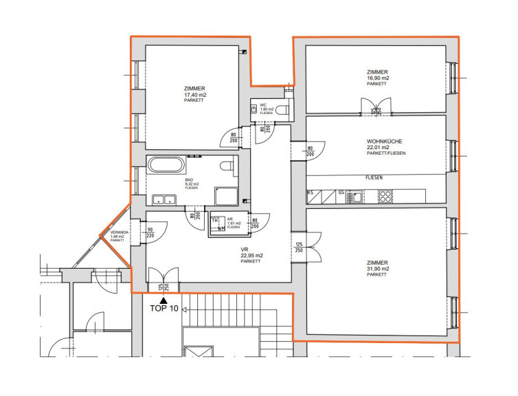
In unmittelbarer Nähe zum Parlament präsentiert sich diese außergewöhnlich hochwertige Altbauwohnung in vollständig generalsaniertem Zustand. Die Wohnung wird unbefristet vermietet und vereint klassischen Wiener Altbaucharme mit modernem Wohnkomfort auf höchstem Niveau. Bereits das großzügige Vorzimmer (22,95 m²) vermittelt ein beeindruckendes Raumgefühl und bietet vielfältige Gestaltungsmöglichkeiten. Direkt neben dem Eingangsbereich befindet sich eine Veranda, die zusätzlichen Charme verleiht. Ein praktischer Abstellraum, der sich ideal als Waschküche nutzen lässt, sorgt für wertvollen Stauraum.
Das Herzstück der Wohnung ist das rund 32 m² große Wohnzimmer, das mit seiner Großzügigkeit und Eleganz begeistert. Die separate Küche mit Essbereich (22,01 m²) ist ebenfalls äußerst geräumig und bietet viel Platz für gesellige Abende und kulinarische Entfaltung.
Zwei gut geschnittene Schlafzimmer stehen zur Verfügung:
- Ein Schlafzimmer ist ruhig zum Innenhof ausgerichtet und mit Außenjalousien ausgestattet.
- Das zweite Schlafzimmer liegt straßenseitig.
Das Badezimmer überzeugt durch seine Größe und hochwertige Ausführung: Es verfügt über eine Badewanne, eine separate Dusche, ein Doppelwaschbecken sowie ein Fenster für natürliches Tageslicht und optimale Belüftung.
Beheizt wird die Wohnung mittels Gaskombitherme, die auch die Warmwasseraufbereitung übernimmt.
Raumaufteillung:
- Vorzimmer – 22,95 m²
- Veranda – 1,48 m²
- Badezimmer mit Badewanne und Dusche – 8,22 m²
- Wohnzimmer – 31,9 m²
- Küche mit Essbereich – 22,01 m²
- Schlafzimmer 1 (über die Küche erreichbar) – 16,90 m²
- Schlafzimmer 2 – 17,40 m²
Ausstattung:
Die Wohnung besticht durch edlen Echtholzparkettboden, der den klassischen Altbaucharakter stilvoll unterstreicht.
Die großzügige, voll ausgestattete Küche bietet alles, was man sich wünscht: Herd, Backrohr, Geschirrspüler, Kühlschrank mit geräumigem Tiefkühler sowie zahlreiche Ober- und Unterschränke mit viel Stauraum. Eine große Arbeitsfläche sorgt für zusätzlichen Komfort.
Im Innenhof des Hauses stehen Fahrradabstellplätze zur Verfügung.
Diese Immobilie eignet sich ideal für anspruchsvolle Mieter, die repräsentatives Wohnen in absoluter Toplage mit hochwertiger Ausstattung und unbefristeter Sicherheit verbinden möchten.
Link zu einem Besichtigungsvideo (hier anklicken)
Ist Ihr Interesse geweckt? Dann kontaktieren Sie mich gerne und vereinbaren Sie einen unverbindlichen Besichtigungstermin:
k.gazdula@domoreal.at
Mobil: 0676/313 51 33
Besichtigungen sind ab sofort und jederzeit nach Terminvereinbarung möglich. Ich freue mich schon auf Sie!
Der Immobilienmakler erklärt, dass er – entgegen dem in der Immobilienwirtschaft üblichen Geschäftsgebrauch des Doppelmaklers – einseitig nur für den Vermieter tätig ist.
Infrastruktur / Entfernungen
Gesundheit
Arzt <500m
Apotheke <500m
Klinik <1.000m
Krankenhaus <1.500m
Kinder & Schulen
Schule <500m
Kindergarten <1.000m
Universität <1.000m
Höhere Schule <1.000m
Nahversorgung
Supermarkt <500m
Bäckerei <500m
Einkaufszentrum <1.000m
Sonstige
Geldautomat <500m
Bank <500m
Post <500m
Polizei <500m
Verkehr
Bus <500m
U-Bahn <500m
Straßenbahn <500m
Bahnhof <500m
Autobahnanschluss <4.000m
Angaben Entfernung Luftlinie / Quelle: OpenStreetMap
Eckdaten
| Gesamtmiete: | 3.759,95 € |
| Fläche: | 124,07 m² |
| Zimmer: | 3 |
Basisdaten zur Immobilie
| Objektnr: | 6701/2370 |
| Art: | Wohnung |
| Land: | Österreich |
| Baujahr: | 1873 |
| Zustand: | Teil_vollsaniert |
| Alter: | Altbau |
| Gesamtmiete: | 3.759,95 € |
| Kaltmiete (netto): | 3.101,75 € |
| Kaltmiete: | 3.418,13 € |
| Provision: | Gemäß Erstauftraggeberprinzip bezahlt der Abgeber die Provision. |
| Betriebskosten: | 276,68 € |
| MwSt Gesamt: | 341,82 € |
| Wohnfläche: | 124,07 m² |
| Nutzfläche: | 124,07 m² |
| Zimmer: | 3 |
| Bäder: | 1 |
| WC: | 1 |
| Heizwärmebedarf: | C 79,80 kWh/m²a |
| fGEE: | D 2,09 |
Ausstattung
Parkett, Fliesen, Gas, Etagenheizung, Personenaufzug, Badewanne, Kabel/Satelliten-TV
Internet und TV
Information zur Internet und TV Versorgung hier
Ihre persönliche Beratung
Ing. Kamil Gazdula
Domo Gebäudeverwaltungs- und Realitätengesellschaft m.b.H.
k.gazdula@domoreal.at
+4317151662
+436763135133
Domo Gebäudeverwaltungs- und Realitätengesellschaft m.b.H.
Untere Viaduktgasse 51 / 10, 1030 Wien
+43 1 715 16 62