MODERNE VILLA IN ALLEINLAGE - NACH MARKTANPASSUNG NEUER FIXPREIS!
Haus
- Zweifamilienhaus,
3034
Maria Anzbach
Lage der Immobilie
An einer wenig befahrenen Straße - absolute Alleinlage mit großartigem Ausblick. Mit einem Fahrzeug sind Sie in drei Minuten am Markt in Neulengbach mit allen Einkaufs - und anderen Möglichkeiten für das tägliche Lebens. ca. 25 km bis an die Stadtgrenze von WienBeschreibung der Immobilie
Diese, sich auf drei Ebenen ausdehnende Villa an den Ausläufern des Wienerwaldes gelegen, bietet sehr unterschiedliche Nutzungsmöglichkeiten. Vom Mehrfamilienhaus bis zur Kombination Privates Wohnen / Geschäftsbereich ist alles möglich.
Durch nicht kostenintensive Umbauarbeiten lassen sich sehr einfach auch drei getrennte Wohneinheiten erzielen. (zwei vollwertige Einheiten sind bereist vorhanden!)
In einem Bereich von etwa 450 m² Wohnfläche, der sich über drei Ebenen erstreckt, befindet sich dieses sehr repräsentative und von natürlichem Licht durchflutete Wohnambiente.
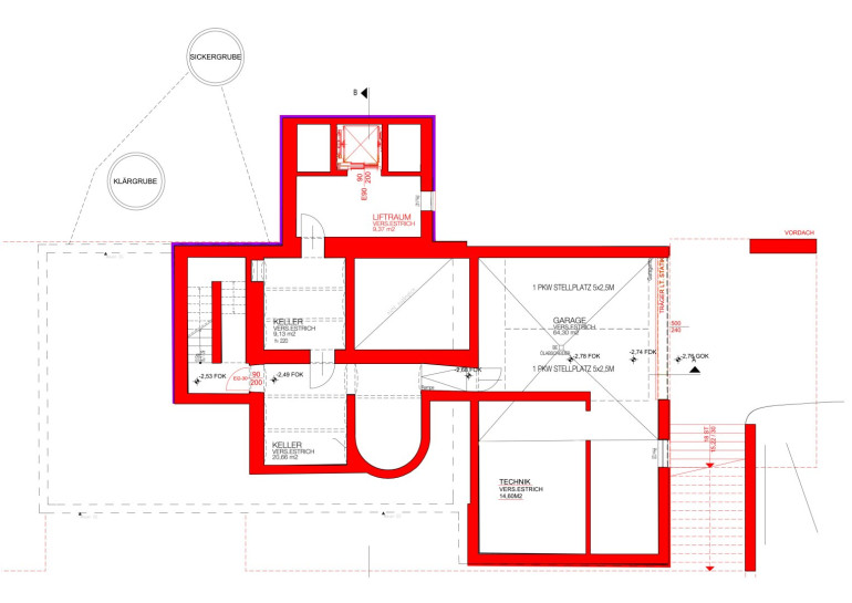
Das rund 2.500 m² große Grundstück hat eine GEB-Widmung (erhaltenswertes Gebäude im Grünland) und drei Seiten des Grundes grenzen an Grünland.
Ein Personenlift (6 Personen, barrierefrei, Fa. Schindler) macht es einfach, vom Keller in das sehr moderne, mit zwei großen Gauben und einer 45 m² großen Terrasse, ausgebaute Dachgeschoß zu gelangen. Der Blick von dieser Terrasse in den Wienerwald bzw. in die Ferne ist einzigartig.
Grundsätzlich ist die gesamte Villa technisch sehr hochwertig gestaltet:
Eine Luftwärmepumpe von KNV kombiniert mit einer Fußbodenheizung im gesamten Wohnbereich sorgt für eine angenehme, behagliche Wohnatmosphäre. In Kombination mit Fenstern und Türen der regionalen Firma Rekord (außen Aluminium, innen Holz, mehrfachverglast) fühlen Sie sich in den kalten Wintermonaten absolut wohl in der doch sehr großen und teilweise mit sehr hohen Räumen (7 Meter!) ausgestatteten Villa.
Das Herzstück im EG ist die sehr großzügige Küche der italienischen Marke Varenna. Alle Elektrogeräte inkl. Dampfgarer und Tellerwärmer sind Markengeräte der Firma Gaggenau.
Sämtliche Böden in den Wohnbereichen sind mit starken, bis zu sieben Meter langen Eichendielen, belegt - im Dachgeschoß wirkt der Eichenboden, der im "Fischgrätverband" großflächig verlegt ist, besonders modern.
Ebenfalls sehr modern gestaltet ist der Hauseingangsbereich mit einer Komplettverglasung und "Finger-Print-Funktion" an der Eingangstüre.
Durch den Umstand, dass das größtenteils ebene Grundstück sehr offen und frei am Berghang liegt, haben Sie in jede Himmelsrichtung und aus allen Fenstern auf allen Ebenen einen großartigen Fernblick - teilweise in bewohntes Gebiet wie Maria Anzbach oder Neulengbach, aber auch in großflächige Grünbereiche wie den Wienerwald oder bis ins Tullnerfeld.
Die Eyecatcher der Außenanlage sind die rund 200 m² große, ebenerdige Terrasse (Pewter Blend Naturstein), der Pool mit 25 x 3 x 1,6 m und der Weinkeller. Um eine ideale Nutzung der beiden Objekte Pool & Weinkeller zu gewährleisten, müssen Wartungsarbeiten erledigt werden, bevor man das sensationelle Schwimmerlebnis bzw. einen guten Tropfen aus dem eigenen Weinkeller genießen kann.
Auf den Terrassen imersten und zweiten Stock müssen noch Sanierungs-/Fertigstellungsarbeiten durchgeführt werden. Das Material dafür ist vorhanden.
Für das gesamte Anwesen ist ein sogenannte BUS-System vorbereitet.
Ein hauseigener Brunnen befindet sich ebenfalls am Grundstück.
ZUSAMMENFASSUNG:
ERDGESCHOSS:
ca. 150 m² Wohn-Ess-Küche
Gäste-WC mit Pissoire
3 Zimmer je 16 m²
1 Zimmer ca. 45 m²
1 Terrasse ca. 200 m²
OBERGESCHOSS:
ca. 120 m² Arbeits/Wohnbereich
ca. 30 m² Master Bedroom mit Master Bathroom
1 Zimmer 16 m²
2 Terrassen (Ost und Südterrasse)
DACHGESCHOSS:
ca. 100 m² Wohn-Ess-Küche
ca. 35 m² Master Bedroom mit Master Bathroom
1 Zimmer 16 m²
Gästedusche / WC
1 Terrasse ca. 40 m²
Gerne können Sie sich von der Einzigartigkeit der Liegenschaft durch die Alleinlage und dem 360 Grad Panoramablick bei einem Besichtigungstermin überzeugen.
Wichtiger Hinweis!
Da das Haus noch vom derzeitigen Eigentümer bewohnt wird, ersuchen wir Sie ausdrücklich, den Eigentümer nicht durch unangemeldete Besuche zu stören! Bitte respektieren Sie diesen eindringlichen Wunsch des Eigentümers!
RECHTLICHER HINWEIS:
Im Hinblick auf die geltende Gesetzeslage weisen wir darauf hin, dass für unser Tätigwerden für jeden Interessenten (vollständige Anbietung, Besichtigungen und sonstige Dienstleistungen) der Abschluss eines Maklervertrages die unbedingte Grundlage darstellt.
INFOS & BESICHTIGUNGEN:
Für Informationen und Besichtigungen steht Ihnen Herr Franz Klein unter +43 699 15152121 oder +43 1 877 2222 gerne zur Verfügung.
INFORMATION FÜR KONSUMENTEN:
1. Dieses Objekt wird von einem konzessionierten Immobilienmaklerunternehmen vermarktet. Im Falle der Anmietung oder des Ankaufs fällt eine Vermittlungsprovision an.
2. Der Makler ist kraft bestehenden Geschäftsgebrauchs für beide Vertragspartner des abzuschließenden Geschäfts tätig (Doppelmakler).
3. Wir weisen auf wirtschaftliches Naheverhältnis zwischen unserem Unternehmen und der Verkäuferseite hin.
POST SCRIPTUM:
Wir sind auf Miet- und Eigentumsobjekte, sowie Grundstücke im 13. Bezirk spezialisiert, vermitteln allerdings selbstverständlich auch Wohnimmobilien im gesamten Großraum Wien!
Wenn Sie beim Verkauf Ihrer Immobilie auf Ihre RECHTSSICHERHEIT großen Wert legen und Ihr Makler hinsichtlich seiner fachlichen Kompetenz die Nr. 1 sein muss, setzen Sie auf unser Know-how sowie Kontakte zu den richtigen Käufern und sichern Sie sich Ihren Erfolg durch unsere Qualitätsarbeit, starke Spezialisierung und 30-jährige Erfahrung.
Wir weisen darauf hin, dass zwischen dem Vermittler und dem zu vermittelnden Dritten ein familiäres oder wirtschaftliches Naheverhältnis besteht.
Infrastruktur / Entfernungen
Gesundheit
Arzt <1.500m
Apotheke <2.000m
Kinder & Schulen
Schule <2.000m
Kindergarten <1.500m
Nahversorgung
Supermarkt <2.000m
Bäckerei <2.000m
Sonstige
Bank <2.000m
Geldautomat <2.000m
Post <1.500m
Polizei <1.500m
Verkehr
Bus <1.500m
Autobahnanschluss <3.500m
Bahnhof <1.500m
Angaben Entfernung Luftlinie / Quelle: OpenStreetMap
Eckdaten
| Kaufpreis: | 1.299.000,00 € |
| Fläche: | 450,00 m² |
| Zimmer: | 8 |
Basisdaten zur Immobilie
| Objektnr: | 1610 |
| Art: | Haus - Zweifamilienhaus |
| Land: | Österreich |
| Baujahr: | 1940 |
| Zustand: | Modernisiert |
| Alter: | Neubau |
| Kaufpreis: | 1.299.000,00 € |
| Kaufpreis / m²: | auf Anfrage |
| Provision: | 46.764,00 € inkl. 20% USt. |
| Betriebskosten: | 180,00 € |
| Heizkosten: | 320,00 € |
| MwSt Gesamt: | 50,00 € |
| Wohnfläche: | 450,00 m² |
| Nutzfläche: | 120,00 m² |
| Grundstücksfl.: | 2.456,00 m² |
| Gesamtfläche: | 610,00 m² |
| Zimmer: | 8 |
| Bäder: | 3 |
| WC: | 4 |
| Terrassen: | 5 |
| Stellplätze: | 4 |
| Garten: | 1.900,00 m² |
| Heizwärmebedarf: | C 65,00 kWh/m²a |
| fGEE: | B 0,93 |
Ausstattung
Dielenboden, Steinboden, Zentralheizung, Wohnküche / offene Küche, Personenaufzug, Ostbalkon, Westbalkon, Bad mit Fenster, Badewanne, Dusche, Kabel/Satelliten-TV, Garage, Swimmingpool, Wasch/Trockenraum, Rampe
Internet und TV
Information zur Internet und TV Versorgung hier
Ihre persönliche Beratung
Mag. Michael Moser
KLEIN & PARTNER Immobilien GmbH
m.moser@kleinpartner.com
+43 1 877 2222
+43 699 1515 2424
F +43 1 877 2222 20
