Großes Grundstück I 3 Bauplätze I Altbestand I Baubewilligte Pläne
Grundstück
,
3400
Klosterneuburg
Beschreibung der Immobilie
Projektbeschreibung
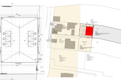
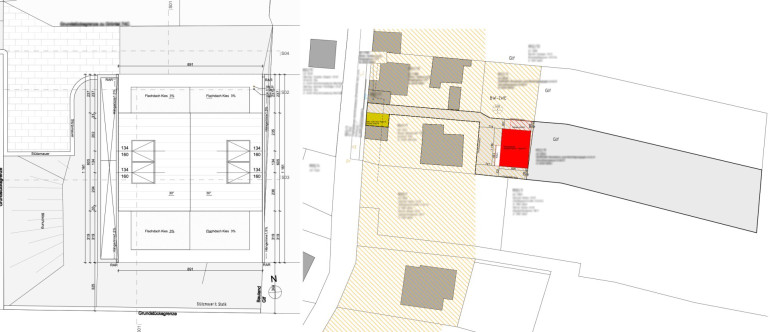
Zum Verkauf gelangt ein attraktives Gesamtprojekt bestehend aus drei Grundstücken in begehrter Wohnlage von Klosterneuburg-Kierling. Die Liegenschaft umfasst drei Bauplätze mit einer Gesamtgrundstücksfläche von ca. 3.857 m².
Die Grundstücke werden im Paket als Gesamtprojekt verkauft und eignen sich sowohl für Bauträger und Projektentwickler als auch für private Anleger oder Bauherren, die ein bereits vorbereitetes Wohnprojekt umsetzen oder eine attraktive Investition in einer gefragten Lage tätigen möchten.
Für das Projekt liegt bereits eine bewilligte Planung vor, wodurch ein rascher Projektstart möglich ist. Die geplante Gesamtwohnnutzfläche beträgt rund 528 m².
Das Projekt wird zu einem attraktiven Sonderpreis aufgrund strategischer Neuausrichtung des Eigentümers bei Umsetzung bis Ende März angeboten.
Die Highlights auf einen Blick
- Sofortiger Baustart: Bewilligte Planung für ca. 528 m² Gesamtwohnnutzfläche vorhanden.
- Top-Lage: Grünruhelage, nahe dem Wienerwald
- Projekt-Mix: 2x großzügige Einfamilienhäuser (ca. 151 m² & 155 m² WNF) 1x Wohnhaus mit 2 Einheiten (ca. 87 m² & 135 m² WNF)
- Infrastruktur: Hervorragende Anbindung nach Wien (ca. 15-20 Min.) und Nahversorgung in Kierling.
- Kondition: Sonderpreis bei Abschluss bis Ende März!
Fast Facts
Grundstücksfläche: ca. 3.857 m²
Geplante Wohnnutzfläche: ca. 528 m²
Baubewilligung: vorhanden
Widmung: Bauland-Wohngebiet, 2 Wohneinheiten
Bauweise: offen
Bauklasse: I
Geplant ist die Errichtung von:
- zwei Einfamilienhäusern
- einem Wohnhaus mit zwei Wohneinheiten
Aufgrund der Nachweispflicht gegenüber dem Eigentümer können nur schriftliche Anfragen mit vollständigen Kontaktdaten (Name, Anschrift, Tel.-Nr., E-Mail) beantwortet werden.
Irrtum und Änderungen vorbehalten. Oben angeführte Angaben basieren auf Informationen und Unterlagen des Eigentümers und sind unsererseits ohne Gewähr.
Noch nichts gefunden? Wir informieren Sie über geeignete Immobilienangebote noch vor allen anderen.
Legen Sie jetzt Ihren individuellen Suchagenten unter folgendem Link an. Wir schicken Ihnen passende Immobilien exklusiv vorab zu.
Suchagent anlegen - https://avana-real-estate.service.immo/registrieren/de
Wir weisen darauf hin, dass zwischen dem Vermittler und dem zu vermittelnden Dritten ein familiäres oder wirtschaftliches Naheverhältnis besteht.
Der Vermittler ist als Doppelmakler tätig.
Infrastruktur / Entfernungen
Gesundheit
Arzt <1.500m
Apotheke <1.500m
Krankenhaus <4.000m
Klinik <1.000m
Kinder & Schulen
Schule <1.000m
Kindergarten <1.000m
Universität <1.500m
Höhere Schule <9.500m
Nahversorgung
Supermarkt <1.000m
Bäckerei <3.000m
Einkaufszentrum <8.000m
Sonstige
Bank <3.000m
Geldautomat <3.500m
Post <1.000m
Polizei <4.000m
Verkehr
Bus <1.000m
Straßenbahn <8.500m
Bahnhof <3.000m
Autobahnanschluss <5.000m
Angaben Entfernung Luftlinie / Quelle: OpenStreetMap
Eckdaten
| Kaufpreis: | 890.000,00 € |
| Fläche: | 3.857,00 m² |
Basisdaten zur Immobilie
| Objektnr: | 6729/817 |
| Art: | Grundstück |
| Land: | Österreich |
| Kaufpreis: | 890.000,00 € |
| Provision: | 3% des Kaufpreises zzgl. 20% USt. |
| Grundstücksfl.: | 3.857,00 m² |
| Heizwärmebedarf: | B 42,00 kWh/m²a |
| fGEE: | A+ 0,69 |
Internet und TV
Information zur Internet und TV Versorgung hier
Ihre persönliche Beratung
Avana Real Estate GmbH
Avana Real Estate GmbH
anfrage@avana.at
+43 1 934 60 48
