Jetzt mitgestalten! | 3-Zimmer Dachgeschosswohnung mit 38 m² Wintergarten | 1070 Wien
Wohnung
,
1070
Wien
Beschreibung der Immobilie
Aus Dachatelier werden Traum-Dachgeschosswohnungen
Jetzt nach individuellen Vorstellungen mitgestalten!
Bei einer frühen Entscheidung können persönliche Wünsche direkt in den Sanierungsprozess einfließen.
Über das Projekt
Im Herzen des 7. Bezirks bietet sich eine seltene Chance: Ein ehemaliges Dachatelier wird zu hochwertigen Dachgeschosswohnungen verwandelt – stilvoll, lichtdurchflutet und mit Wiener Weitblick. Die Einheiten werden bis zur Rohdecke und zur Brandschutzebene fachgerecht entkernt; sämtliche Trennwände, Bodenaufbauten, Elektro- sowie HKLS-Installationen, Beläge und Innentüren werden neu hergestellt. Wer schnell ist, kann noch bei Details mitentscheiden – und so sein Zuhause aktiv mitgestalten.
Zwischen Mariahilfer Straße und Neubaugasse – in der Westbahnstraße – wohnen Sie im lebendigsten Neubau-Grätzl: vieles zu Fuß, der Rest top angebunden (Westbahnhof mit U3/U6/S-Bahn, U6-Burggasse–Stadthalle). Stadthalle, Lugner City, Shops, Cafés und Alltagsversorgung liegen um die Ecke; Parks wie Josef-Strauß-Park und Esterházypark sorgen für Grün in Gehweite.
Highlights auf einen Blick
- DG-Wohnungen mit Weitblick
- Kernsanierung inkl. neuer Elektro & HKLS
- Grundriss- & Ausstattungs-Mitgestaltung möglich (je nach Baufortschritt)
- Urbanes Umfeld, kurze Wege, starke ÖV-Anbindung
- Naherholung: mehrere Parks in wenigen Minuten
Über die Wohnung
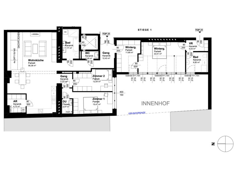
Zum Kauf steht eine außergewöhnliche Dachgeschosswohnung, die derzeit vollständig saniert wird und schon bald in neuem Glanz erstrahlt. Bereits beim Betreten empfängt Sie ein einladender Vorraum, der einen harmonischen ersten Eindruck vermittelt.
Vom Eingangsbereich aus gelangen Sie in das großzügige Hauptbadezimmer, das mit Dusche und Badewanne höchsten Komfort bietet, sowie in ein separates WC.
Im Zentrum der Wohnung befindet sich die beeindruckende, rund 56 m² große Wohnküche – das Herzstück dieses besonderen Zuhauses. Der offen gestaltete Bereich bietet viel Platz für Kochen, Essen und Wohnen und schafft durch seine Großzügigkeit eine elegante, moderne Wohnatmosphäre. Direkt angrenzend befindet sich eine praktische Speis (Abstellraum), die zusätzlichen Stauraum und optimale Organisation ermöglicht.
Von der Wohnküche aus erschließt sich ein abgetrennter, privater Bereich der Wohnung: Über einen eigenen Gang gelangt man zu zwei gut geschnittenen Zimmern, die sich ideal als Schlafzimmer, Kinderzimmer oder Homeoffice eignen. In diesem Trakt befindet sich zudem ein weiteres Badezimmer mit Dusche, das diesen Bereich funktional und komfortabel ergänzt – ideal für Familien oder Gäste.
Ein besonderes Highlight sind die großzügigen Wintergärten mit Blick in den ruhigen Innenhof. Sie erweitern den Wohnraum auf stilvolle Weise und schaffen eine lichtdurchflutete Atmosphäre mit vielfältigen Nutzungsmöglichkeiten – ob als zusätzlicher Wohnbereich, Rückzugsort oder inspirierender Arbeitsraum. In diesem Bereich befindet sich außerdem ein weiteres Badezimmer mit Dusche und WC, das zusätzliche Flexibilität und Komfort bietet.
Abgerundet wird dieses außergewöhnliche Angebot durch den exklusiven Pool am Dach, der allen Hausbewohnern zur Verfügung steht. Von hier eröffnet sich ein beeindruckender Rundumblick über Wien – vom ersten Sonnenstrahl bis zum goldenen Abendlicht wird jeder Moment zum besonderen Erlebnis.
Die Raumaufteilung im Detail
- Offener Wohnbereich mit ca. 56,38 m²
- Zimmer 1 mit ca. 15,47 m²
- Zimmer 2 mit ca. 12,54 m²
- Badezimmer mit Badewanne und WC mit 7,77 m²
- Badezimmer mit Dusche mit 2,37 m²
- Vorraum mit ca. 12,43 m²
- Separates WC mit 2,05 m²
- Abstellraum mit 4,73 m²
- Wintergarten mit ca. 11,69 m²
- Wintergarten mit ca. 22,51 m²
- Vorraum mit ca. 4,03 m²
- Badezimmer mit Dusche und WC mit 6,90 m²
Aufgrund der Nachweispflicht gegenüber dem Eigentümer können nur schriftliche Anfragen mit vollständigen Kontaktdaten (Name, Anschrift, Tel.-Nr., E-Mail) beantwortet werden.
Irrtum und Änderungen vorbehalten. Oben angeführte Angaben basieren auf Informationen und Unterlagen des Eigentümers und sind unsererseits ohne Gewähr.
Sämtliche Visualisierungen verstehen sich als Möblierungsvorschläge. Sämtliche m2 verstehen sich als ca. Angaben.
Noch nichts gefunden? Wir informieren Sie über geeignete Immobilienangebote noch vor allen anderen.
Legen Sie jetzt Ihren individuellen Suchagenten unter folgendem Link an. Wir schicken Ihnen passende Immobilien exklusiv vorab zu.
Suchagent anlegen - https://avana-real-estate.service.immo/registrieren/de
Wir weisen darauf hin, dass zwischen dem Vermittler und dem zu vermittelnden Dritten ein familiäres oder wirtschaftliches Naheverhältnis besteht.
Der Vermittler ist als Doppelmakler tätig.
Infrastruktur / Entfernungen
Gesundheit
Arzt <500m
Apotheke <500m
Klinik <500m
Krankenhaus <1.500m
Kinder & Schulen
Schule <500m
Kindergarten <500m
Universität <500m
Höhere Schule <500m
Nahversorgung
Supermarkt <500m
Bäckerei <500m
Einkaufszentrum <1.000m
Sonstige
Geldautomat <500m
Bank <500m
Post <500m
Polizei <500m
Verkehr
Bus <500m
U-Bahn <500m
Straßenbahn <500m
Bahnhof <500m
Autobahnanschluss <5.000m
Angaben Entfernung Luftlinie / Quelle: OpenStreetMap
Eckdaten
| Kaufpreis: | 1.283.000,00 € |
| Fläche: | 123,36 m² |
| Zimmer: | 3 |
Basisdaten zur Immobilie
| Objektnr: | 6729/842 |
| Art: | Wohnung |
| Land: | Österreich |
| Baujahr: | 1908 |
| Kaufpreis: | 1.283.000,00 € |
| Provision: | 3% des Kaufpreises zzgl. 20% USt. |
| Wohnfläche: | 123,36 m² |
| Nutzfläche: | 161,59 m² |
| Zimmer: | 3 |
| Bäder: | 3 |
| WC: | 3 |
| Heizwärmebedarf: | D 124,50 kWh/m²a |
| fGEE: | G 5,36 |
Ausstattung
Parkett, Fliesen, Gas, Fußbodenheizung, Personenaufzug
Internet und TV
Information zur Internet und TV Versorgung hier
Ihre persönliche Beratung
Avana Real Estate GmbH
Avana Real Estate GmbH
anfrage@avana.at
+43 1 934 60 48
