2-Zimmer Terrassenwohnung Wien Floridsdorf | 38,65 m² Wohnfläche
Wohnung
,
1210
Wien
,
Baumergasse 2a
Beschreibung der Immobilie
Über das Projekt
Das Neubauprojekt in der Baumergasse 2a, im Herzen des 21. Wiener Gemeindebezirks, vereint urbanes Leben mit einer ruhigen Wohnatmosphäre. Durch die Lage an einer Nebenfahrbahn der Brünner Straße genießen die Bewohner eine exzellente Verkehrsanbindung und gleichzeitig die Vorzüge eines entspannten Wohnumfelds.
Das Wohngebäude umfasst 31 modern gestaltete Wohneinheiten mit Größen zwischen 31 m² und 72 m², die überwiegend mit großzügigen Außenflächen wie Balkonen oder Terrassen ausgestattet sind. Die hochwertigen Materialien, darunter Eichenparkettböden und dreifach-isolierverglaste Kunststofffenster mit elektrisch bedienbarem Sonnenschutz, garantieren ein angenehmes Wohnklima. Ergänzt wird dies durch zeitgemäße Sicherheitsstandards wie Rauchmelder in allen Aufenthaltsräumen (außer in Küchen) und Brandschutzwohnungseingangstüren.
Dank der hervorragenden Infrastruktur sind öffentliche Verkehrsmittel wie Straßenbahnen und der Bahnhof Siemensstraße in wenigen Minuten erreichbar. Für Autofahrer bietet die hauseigene Tiefgarage mit einem Stapelparksystem eine komfortable Stellplatzlösung.
Die Umgebung überzeugt mit einer Vielzahl von Geschäften für den täglichen Bedarf, die bequem zu Fuß erreichbar sind. Darüber hinaus laden der nahegelegene Trillerpark und das Shopping Center Nord zum ausgiebigen Einkaufsbummel ein – beide liegen weniger als 20 Minuten Gehzeit entfernt.
Ausstattung
- Fußbodenheizung in allen Räumen, betrieben durch Fernwärme
- Vorbereitung für Split-Klimaanlagen in den Dachgeschosswohnungen
- Rauchmelder in allen Aufenthaltsräumen (ausgenommen Küchenbereich)
- Hochwertiges Eichenparkett in den Wohnräumen, Fliesen im Format 60/30 in den Nassräumen
- Dreifach-isolierverglaste Kunststofffenster für optimale Energieeffizienz
- Elektrisch bedienbarer außenliegender Sonnenschutz
- Brandschutzwohnungseingangstüren mit Spion und Vorbereitung für Video-Türsprechanlagen
- Personenaufzug
- Tiefgarage mit Stapelparksystem
- Abstellräume für Kinderwagen und Fahrräder, sowie ein Kinderspielraum
Beschreibung der Wohnung
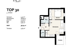
Diese smarte 2-Zimmer Wohnung befindet sich im 4. Stock eines Neubaugebäudes. Vom Vorraum aus erreichen Sie das Badezimmer mit Dusche, das separate WC und die Wohnküche. Die offene Wohnküche mit über 18 m² bietet ausreichend Platz zur persönlichen Entfaltung. Von hier aus gelangen Sie auf die großzügige Terrasse, die zum Entspannen und Genießen einlädt, sowie in das Schlafzimmer mit über 11 m².
Die Raumaufteilung im Detail
- Vorraum mit 4,13 m²
- Offene Wohnküche mit 18,69 m²
- Zimmer mit 11,03 m²
- Badezimmer mit Dusche und Waschmaschinenanschluss mit 3,20 m²
- Separates WC mit 1,60 m²
- Terrasse mit 4,63 m²
Preisinformation
Der angeführte Kaufpreis bezieht sich auf den Erwerb als Anlegerwohnung für Vermietungszwecke, somit versteht sich dieser zzgl. 20% USt.
Anleger-Preis: € 299.309,00 (zzgl. 20% USt)
Eigennutzer-Preis: € 319.000,00
Zuzügliches Zubehör:
Tiefgaragenstellplatz: € 29.000,00 (zzgl. 20% USt) für Anleger, € 31.000,00 für Eigennutzer
Aufgrund der Nachweispflicht gegenüber dem Eigentümer können nur schriftliche Anfragen mit vollständigen Kontaktdaten (Name, Anschrift, Tel.-Nr., E-Mail) beantwortet werden.
Irrtum und Änderungen vorbehalten. Oben angeführte Angaben basieren auf Informationen und Unterlagen des Eigentümers und sind unsererseits ohne Gewähr.
Noch nichts gefunden? Wir informieren Sie über geeignete Immobilienangebote noch vor allen anderen.
Legen Sie jetzt Ihren individuellen Suchagenten unter folgendem Link an. Wir schicken Ihnen passende Immobilien exklusiv vorab zu.
Suchagent anlegen - https://avana-real-estate.service.immo/registrieren/de
Wir weisen darauf hin, dass zwischen dem Vermittler und dem zu vermittelnden Dritten ein familiäres oder wirtschaftliches Naheverhältnis besteht.
Der Vermittler ist als Doppelmakler tätig.
Infrastruktur / Entfernungen
Gesundheit
Arzt <150m
Apotheke <250m
Klinik <875m
Krankenhaus <900m
Kinder & Schulen
Schule <275m
Kindergarten <150m
Universität <2.150m
Höhere Schule <2.075m
Nahversorgung
Supermarkt <100m
Bäckerei <225m
Einkaufszentrum <350m
Sonstige
Geldautomat <200m
Bank <200m
Post <200m
Polizei <275m
Verkehr
Bus <200m
U-Bahn <1.900m
Straßenbahn <250m
Bahnhof <825m
Autobahnanschluss <850m
Angaben Entfernung Luftlinie / Quelle: OpenStreetMap
Eckdaten
| Kaufpreis: | 299.309,00 € |
| Fläche: | 38,65 m² |
| Zimmer: | 2 |
Basisdaten zur Immobilie
| Objektnr: | 6729/114 |
| Art: | Wohnung |
| Land: | Österreich |
| Zustand: | Erstbezug |
| Kaufpreis: | 299.309,00 € |
| Kaufpreis / m²: | auf Anfrage |
| Provision: | 3% des Kaufpreises zzgl. 20% USt. |
| Betriebskosten: | 109,88 € |
| MwSt Gesamt: | 10,99 € |
| Wohnfläche: | 38,65 m² |
| Zimmer: | 2 |
| Bäder: | 1 |
| WC: | 1 |
| Terrassen: | 1 |
| Keller: | 1,33 m² |
| Heizwärmebedarf: | B 35,82 kWh/m²a |
| fGEE: | A 0,85 |
Ausstattung
Parkett, Fliesen, Fußbodenheizung, Wohnküche / offene Küche, Personenaufzug, Dusche, Tiefgarage
Internet und TV
Information zur Internet und TV Versorgung hier
Ihre persönliche Beratung
Avana Real Estate GmbH
Avana Real Estate GmbH
anfrage@avana.at
+43 1 934 60 48
