Willkommen in Eisenstadt: Hier beginnt Ihr neues Kapitel
Büro / Praxis
,
7000
Eisenstadt
,
Sankt-Antoni-Straße
Lage der Immobilie
Optimale Lage in Eisenstadt: Nahe dem Domplatz, Schlosspark und FußgängerzoneBeschreibung der Immobilie
Vielseitige Gewerbefläche in zentraler Lage von Eisenstadt – Ideal für Ordination, Praxis oder Büro!
Nutzen Sie die Chance, diese flexible Gewerbefläche zu erwerben, die sich bestens für eine Ordination, Praxis oder ein Büro eignet.
Highlights der Fläche:
- Geräumiges Layout: Bietet genügend Platz für individuelle Gestaltungsmöglichkeiten und eine optimale Nutzung.
- Zentrale Lage: Profitieren Sie von einer hervorragenden Erreichbarkeit.
- Gute Sichtbarkeit: Die Lage garantiert eine hohe Sichtbarkeit für Ihr Geschäft.
Diese Immobilie ist eine erstklassige Möglichkeit für Selbständige oder Geschäftsinhaber, die eine zentrale und gut frequentierte Lage suchen.
Ideal für: Ärzte, Therapeuten, Dienstleister oder Unternehmen, die Wert auf eine strategisch günstige Position legen.
Vereinbaren Sie noch heute einen Besichtigungstermin und überzeugen Sie sich selbst von den Möglichkeiten, die dieses Objekt bietet!
Wir weisen darauf hin, dass zwischen dem Vermittler und dem zu vermittelnden Dritten ein familiäres oder wirtschaftliches Naheverhältnis besteht.
Der Vermittler ist als Doppelmakler tätig.
Infrastruktur / Entfernungen
Gesundheit
Arzt <250m
Apotheke <250m
Klinik <7.500m
Krankenhaus <1.000m
Kinder & Schulen
Schule <250m
Kindergarten <500m
Universität <1.250m
Höhere Schule <750m
Nahversorgung
Supermarkt <250m
Bäckerei <250m
Einkaufszentrum <1.250m
Sonstige
Bank <250m
Geldautomat <250m
Post <250m
Polizei <500m
Verkehr
Bus <250m
Autobahnanschluss <2.500m
Bahnhof <750m
Angaben Entfernung Luftlinie / Quelle: OpenStreetMap
Eckdaten
| Kaufpreis: | 169.560,00 € |
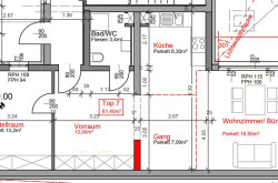
| Fläche: | 62,80 m² |
| Zimmer: | 2 |
Basisdaten zur Immobilie
| Objektnr: | 25844 |
| Art: | Büro / Praxis |
| Land: | Österreich |
| Baujahr: | 2002 |
| Zustand: | Gepflegt |
| Alter: | Neubau |
| Kaufpreis: | 169.560,00 € |
| Provision: | 3% des Kaufpreises zzgl. 20% USt. |
| Betriebskosten: | 127,24 € |
| MwSt Gesamt: | 12,72 € |
| Wohnfläche: | 62,80 m² |
| Zimmer: | 2 |
| Bäder: | 1 |
| WC: | 1 |
| Heizwärmebedarf: | C 78,70 kWh/m²a |
| fGEE: | D 2,18 |
Ausstattung
Fliesen, Parkett, Zentralheizung, Einbauküche, Wohnküche / offene Küche, Dusche, Kabel/Satelliten-TV
Internet und TV
Information zur Internet und TV Versorgung hier
Ihre persönliche Beratung
Eszter Virasztó
WERTIMMOBILIEN Consulting KG
Eszter.Viraszto@wertimmobilien.co.at
+43 676 8 50 60 8 703
