Stadtgrenze von Wien! Elegantes Einfamilienhaus mit uneinsehbarem Garten, restauriertem Weinkeller und Doppelgarage
Haus
- Einfamilienhaus,
2102
Bisamberg
Beschreibung der Immobilie
Zum sofortigen Verkauf gelangt dieses absolut ruhig gelegene, gemütliche Einfamilienhaus mit großzügiger Terrasse, Wein- und Veranstaltungskeller sowie Garten - nur wenige Minuten von der nördlichen Stadtgrenze Wiens.
Mit ca. 218 m2 Wohnfläche und ca. 255 m2 Wohnnutzfläche auf ca. 248 m2 Eigengrund befindet sich diese Liegenschaft mit Garten mitten in einer ruhigen Seitengasse umgeben von Wiesen, Weingärten nahe dem Waldrand. Das Haus wurde im Jahre 2007 weitgehend erweitert und auf den modernsten Stand gebracht.
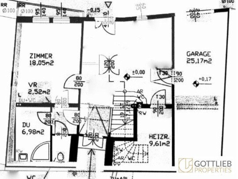
Im großzügigen Eingangsbereich erreicht man zentral alle Räume im Erdgeschoss, wie folgt: ein ca. 18 m2 großes Zimmer, ein angrenzendes Duschbad mit Handwaschbecken sowie einer Toilette, einen Heiz- und Wirtschaftsraum mit Waschmaschinenanschluss, die Garage mit ca. 25 m2 Grundfläche und ebenso einen liebevoll sanierten, in das Haus integrierten Wein- und Veranstaltungskeller.
Über eine Treppe gelangt man ins Obergeschoss zu einem lichtdurchfluteten, geräumigen ca. 53 m2 großen Wohn-Ess-Bereich mit offener Küche und angrenzendem Abstellraum sowie dem Master Bedroom mit begehbarer Garderobe, Wannenbad und Dusche, Doppelhandwaschbecken, Handtuchwärmer sowie separater Toilette.
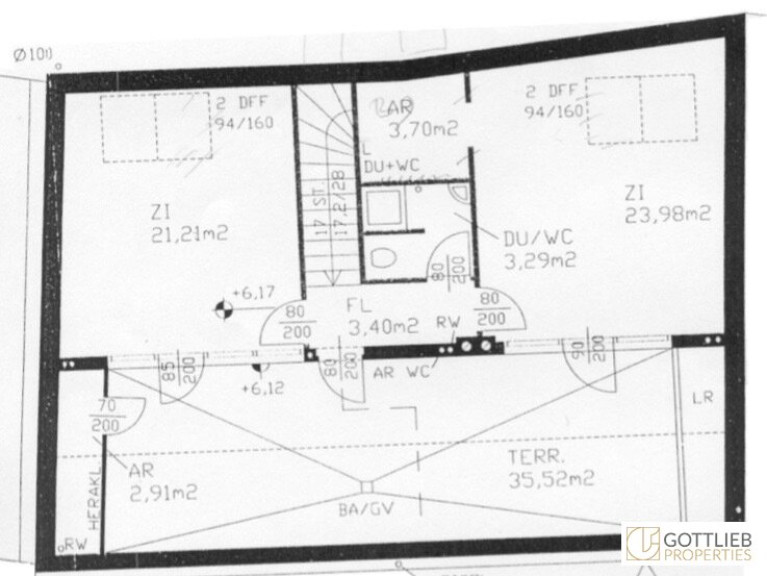
Das Dachgeschoss, welches über eine weitere Treppe erreichbar ist, gliedert sich in einen Flur, zwei getrennt begehbare Schlafräume, ein Duschbad mit Handwaschbecken sowie eine Toilette. Direkt vom Flur und den Zimmern ist eine ca. 36 m2 große Terrasse begehbar. Der angrenzende Garten im Dachgeschoss ergibt sich durch die außergewöhnliche Hanglage. Ein ca. 3 m2 großer Abstellraum für Terrassenmöbel komplettiert diese gelungene Raumaufteilung.
Ausstattung
+ Vollholz-Parkettböden
+ Fliesenböden
+ Fußbodenheizung im gesamten Haus, ausgenommen hinterer Weinkeller
+ beheizte Terrasse
+ beheizte Garage für zwei Autos
+ elektrische Außenjalousien im Dachgeschoss
+ manuelle Außenjalousien im Obergeschoss
+ Zentralstaubsauganlage
Raumaufteilung
Erdgeschoss
+ Foyer
+ ein Zimmer mit ca. 18 m2
+ Heiz- und Wirtschaftsraum mit ca. 10 m2
+ Duschbad mit Handwaschbecken und Toilette
+ direkter Zugang zur Garage
+ Abgang zum Wein- und Veranstaltungskeller
Obergeschoss
+ ca. 53 m2 Wohnsalon mit Essbereich
+ offene Küche mit Einbaugeräten
+ Master Bedroom
+ begehbarer Schrankraum
+ Wannenbad und Dusche, Doppelhandwaschbecken sowie Handtuchwärmer
+ separate Toilette
Dachgeschoss
+ weitere zwei Schlafzimmer mit direktem Ausgang auf die Terrasse
+ Duschbad, Handwaschbecken sowie Toilette
+ ca. 36 m2 Terrasse
+ ca. 122 m2 Garten
Keller
+ beheizter Weinkeller mit Küchenanschlüssen
+ Veranstaltungskeller
Lage und Infrastruktur
Von der Wiener Innenstadt über die Autobahn A22 und die S1 oder die B7 erreicht man diese Liegenschaft in ca. 30 Minuten.
In der näheren Umgebung erreichen Sie fußläufig, aber auch in wenigen Autominuten, sämtliche Geschäfte des täglichen Bedarfs. Kindergärten, eine Volksschule, Ärzte und Fachärzte, Banken sind ebenso nur wenige Gehminuten entfernt und komplettieren die sehr gute Infrastruktur.
Zwei Golfclubs, ein Ruderclub, aber auch Spaziergänge und Wanderungen im nahen Wald oder entlang der Donau bieten sich zur Freizeitgestaltung an. Zu gemütlichen und kulinarischen Abenden laden diverse Buschenschanken, Heurigen und Restaurants in der unmittelbaren Umgebung.
Sonstiges
Wir ersuchen um Verständnis, dass wir aufgrund unserer Nachweispflicht gegenüber dem Eigentümer nur Anfragen mit vollständigen Kontaktdaten (Name, Adresse, Mobilnummer, Email) bearbeiten können.
Der Vermittler ist als Doppelmakler tätig.
Infrastruktur / Entfernungen
Gesundheit
Arzt <1.000m
Apotheke <1.000m
Krankenhaus <3.000m
Klinik <7.000m
Kinder & Schulen
Schule <1.000m
Kindergarten <1.000m
Universität <4.000m
Höhere Schule <8.000m
Nahversorgung
Supermarkt <1.000m
Bäckerei <1.000m
Einkaufszentrum <4.000m
Sonstige
Bank <1.000m
Geldautomat <1.000m
Post <1.000m
Polizei <3.000m
Verkehr
Bus <1.000m
Straßenbahn <4.500m
U-Bahn <8.500m
Bahnhof <2.500m
Autobahnanschluss <2.500m
Angaben Entfernung Luftlinie / Quelle: OpenStreetMap
Eckdaten
| Kaufpreis: | 695.000,00 € |
| Fläche: | 217,56 m² |
| Zimmer: | 5 |
Basisdaten zur Immobilie
| Objektnr: | 3968 |
| Art: | Haus - Einfamilienhaus |
| Land: | Österreich |
| Baujahr: | 2006 |
| Zustand: | Voll_saniert |
| Alter: | Neubau |
| Kaufpreis: | 695.000,00 € |
| Provision: | 3% des Kaufpreises zzgl. 20% USt. |
| Betriebskosten: | 84,06 € |
| MwSt Gesamt: | 8,41 € |
| Wohnfläche: | 217,56 m² |
| Nutzfläche: | 254,52 m² |
| Grundstücksfl.: | 248,00 m² |
| Zimmer: | 5 |
| Bäder: | 3 |
| WC: | 3 |
| Terrassen: | 1 |
| Garten: | 122,00 m² |
| Heizwärmebedarf: | C 68,57 kWh/m²a |
Ausstattung
Parkett, Fliesen, Fußbodenheizung, Einbauküche, Bad mit Fenster, Badewanne, Dusche, Kabel/Satelliten-TV, Garage
Internet und TV
Information zur Internet und TV Versorgung hier
Ihre persönliche Beratung
Desirée Gottlieb
Gottlieb Properties Immobilientreuhand GmbH
desiree.gottlieb@gottliebproperties.at
+ 43 699 14702557
