NEU! ++ Wohnen in Toplage des 7. Bezirks in Wien ++ 2-Zimmer-Dachgeschosswohnung mit Küche ++ 5. Liftstock ++ Sofort beziehbar ++
Wohnung
- Dachgeschoß,
1070
Wien,Neubau
Lage der Immobilie
U6-Station Burggasse-StadthalleBeschreibung der Immobilie
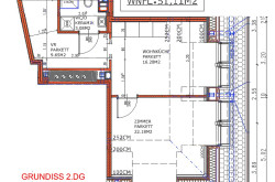
Zum Verkauf gelangt eine wunderschöne Dachgeschosswohnung (Dachgeschossebene 2), die sich in der Nähe der Stadtbibliothek sowie der U6-Station Burggasse-Stadthalle befindet.
Die Wohnung verfügt über eine Wohnfläche von 51,11 m² und gliedert sich wie folgt:
• Wohnküche (inkl. Küche)
• Schlafzimmer
• Vorraum
• Badezimmer
Beheizt wird die Wohnung mittels Fußbodenheizung. Zusätzlich sorgt eine Klimaanlage für angenehme Temperaturen an heißen Sommertagen.
Dank der Toplage und der verkehrsgünstigen Anbindung eignet sich die Wohnung perfekt sowohl für Eigennutzer als auch für Anleger.
Ein Lageexposé mit 59 Seiten steht Ihnen auf Anfrage zum Download zur Verfügung.
Kaufpreis für Anleger: EUR 299.000,- zzgl. 20 % USt.
Kaufpreis für Eigennutzer: EUR 329.000,-
Wir weisen darauf hin, dass zwischen dem Vermittler und dem zu vermittelnden Dritten ein familiäres oder wirtschaftliches Naheverhältnis besteht.
Der Vermittler ist als Doppelmakler tätig.
Eckdaten
| Kaufpreis: | 299.000,00 € |
| Fläche: | 51,11 m² |
| Zimmer: | 2 |
Basisdaten zur Immobilie
| Objektnr: | 28443 |
| Art: | Wohnung - Dachgeschoß |
| Land: | Österreich |
| Baujahr: | 2018 |
| Alter: | Neubau |
| Kaufpreis: | 299.000,00 € |
| Kaufpreis / m²: | auf Anfrage |
| Provision: | 3% des Kaufpreises zzgl. 20% USt. |
| Wohnfläche: | 51,11 m² |
| Zimmer: | 2 |
| Bäder: | 1 |
| WC: | 1 |
| Heizwärmebedarf: | B 35,83 kWh/m²a |
| fGEE: | A+ 0,62 |
Ausstattung
Parkett, Fliesen, Fußbodenheizung, Einbauküche, Wohnküche / offene Küche, Dusche
Internet und TV
Information zur Internet und TV Versorgung hier
Ihre persönliche Beratung
TRISTAR Immobilien
TRISTAR Immobilien
tristar@tristar.at
+43 676 901 73 74
