Immobilie merken

Eleganter Altbau. Erstbezug im Pratercottage | ZELLMANN IMMOBILIEN

Wohnung , 1020 Wien

Beschreibung der Immobilie

Eleganter Altbau-Erstbezug beim Grünen Prater – großzügige 4-Zimmer-Wohnung mit Loggia und Gartenmitbenützung

Quick Read

  • Erstbezug nach hochwertiger Architekten-Sanierung

  • Großzügige Altbauwohnung im 1. Obergeschoss

  • Ost-Ausrichtung mit schönem Grünblick bzw. ein Zimmer nach Süden ausgerichtet

  • Elegantes Jugendstilhaus in absoluter Ruhelage

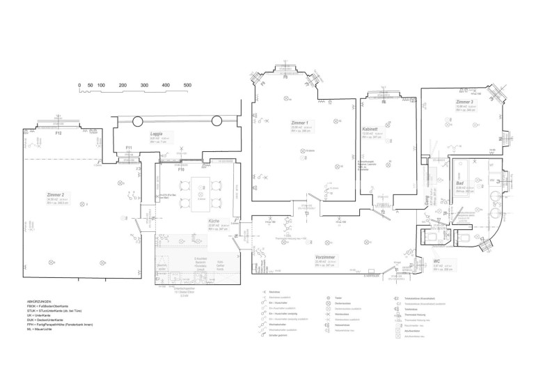
  • Wohnfläche ca. 151 m² mit 4 Zimmern

  • Loggia mit Blick ins Grüne

  • Gartenmitbenützung

  • Hochwertige Wohnküche mit Essplatz und Ausgang auf die Loggia

  • Großzügiges Wohnzimmer mit Möglichkeit zur Raumtrennung, Ausgang auf die Loggia

  • Badezimmer mit Wanne, Fenster und WC

  • Zusätzlich separates Gäste-WC

  • Perfekte Lage zwischen Stadt und Natur – direkt beim Grünen Prater und der Jesuitenwiese

  • Sehr gute Infrastruktur und öffentliche Verkehrsanbindung

Beschreibung

Diese außergewöhnliche Wohnung verbindet die klassische Eleganz eines Wiener Altbaus mit moderner Wohnqualität und einer der beliebtesten Wohnlagen Wiens.

Die Wohnung befindet sich im 1. Obergeschoss eines wunderschönen Jugendstilhauses und wurde von einem Architekten mit Sorgfalt und Liebe zum Detail saniert. Klassische Altbaudetails wurden erhalten und gleichzeitig moderne Wohnqualität geschaffen. Hochwertige Materialien, elegante Parkettböden und eine durchdachte Raumfolgen schaffen eine Wohnatmosphäre, die sowohl repräsentativ als auch besonders wohnlich ist.

Die Ost-Ausrichtung sorgt für ein angenehmes, ruhiges Wohnklima und eröffnet schöne Ausblicke ins Grüne. Besonders hervorzuheben ist die Loggia, die direkt von der Wohnküche erreichbar ist und einen ruhigen Außenbereich mit Blick in den Garten bietet. Zusätzlich steht den Bewohnern eine Gartenmitbenützung zur Verfügung – eine seltene Qualität in dieser zentralen Lage.

Das Herzstück der Wohnung bildet die großzügige Wohnküche, die mit einer hochwertigen, maßgeschneiderten Küche eines Tischlers ausgestattet ist und ausreichend Platz für einen Essbereich bietet. Von hier gelangt man direkt auf die Loggia ideal für Frühstück im Freien oder entspannte Abende.

Das Wohnzimmer beeindruckt durch seine Großzügigkeit und die klassischen Altbauelemente. Der Raum bietet zudem die Möglichkeit einer Trennung, wodurch ein zusätzlicher Raum entstehen könnte.

Insgesamt stehen vier Zimmer zur Verfügung, die sich ideal als Wohn-, Schlaf- oder Arbeitsräume nutzen lassen. Das Badezimmer ist mit Badewanne, Fenster und WC ausgestattet und hochwertig gestaltet. Zusätzlich steht ein separates Gäste-WC zur Verfügung. Das großzügige Vorzimmer bietet viel Platz für Garderobenlösungen, Einbauschränke und zusätzliche Stauraumflächen und sorgt damit für hohen Alltagskomfort.

Diese Wohnung vereint Eleganz, Ruhe und Großzügigkeit in einer Lage, die sowohl naturnah als auch hervorragend angebunden ist.

Lage

Die Wohnung liegt im Pratercottage, einer der begehrtesten und exklusivsten Wohnlagen Wiens. Dieses traditionsreiche Villen- und Altbauviertel zeichnet sich durch seine repräsentative Architektur, ruhige Straßen und die unmittelbare Nähe zu großzügigen Grünflächen aus.

Nur wenige Schritte entfernt befindet sich die Jesuitenwiese sowie der Wiener Prater, der zu den größten und schönsten Grünflächen der Stadt zählt und zahlreiche Möglichkeiten für Sport, Erholung und Freizeit bietet. Laufstrecken, Radwege, Tennisplätze sowie das Stadionbad befinden sich in unmittelbarer Umgebung.

Darüber hinaus bietet die Umgebung ein außergewöhnlich breites Sportangebot mit zahlreichen Vereinen und Anlagen, darunter Hockey-, Baseball- und Fußballvereine sowie moderne Paddle-Tennis-Anlagen.

Auch die Anbindung an die Innenstadt ist hervorragend: Der Stephansplatz ist mit dem Fahrrad in etwa 15 Minuten erreichbar.

Besonders attraktiv ist zudem die Nähe zu renommierten Bildungseinrichtungen. Internationale Schulen, darunter die Danube International School, befinden sich in komfortabler Reichweite und unterstreichen die hohe Wohn- und Lebensqualität dieser Lage.

Hervorragende Infrastruktur:

  • Volksschule ca. 300 m

  • Gymnasium ca. 700 m

  • Vienna International School ca. 5 km

  • Danube International School ca. 800m

  • Wirtschaftsuniversität Wien ca. 15 Gehminuten

  • Rochusmarkt ca. 12 Minuten

  • sehr gute Verkehrsanbindung Richtung Flughafen

Die öffentliche Verkehrsanbindung ist ebenfalls sehr gut:

  • Straßenbahnlinie 1

  • Buslinien 4A und 80A

  • U-Bahnlinie U3

Damit sind sowohl die Wiener Innenstadt als auch zahlreiche Universitäten, Einkaufs- und Freizeitmöglichkeiten schnell erreichbar.

Zusammenfassung

Diese großzügige, elegante Altbauwohnung bietet eine seltene Kombination aus hochwertiger Sanierung, großzügigem Grundriss und außergewöhnlicher Lage im Pratercottage, direkt beim Grünen Prater und der Jesuitenwiese.

Der Erstbezug nach Architekten-Sanierung, die Loggia mit Grünblick, die Gartenmitbenützung sowie die ruhige Ost-Ausrichtung schaffen eine Wohnqualität, die in dieser Lage nur selten zu finden ist.

Eine ideale Wohnung für alle, die ruhiges, stilvolles Wohnen im Grünen mit unmittelbarer Nähe zur Wiener Innenstadt verbinden möchten.

Noch nichts gefunden? Wir informieren Sie über geeignete Immobilienangebote noch vor allen anderen.
Legen Sie jetzt Ihren individuellen Suchagenten unter folgendem Link an. Wir schicken Ihnen passende Immobilien exklusiv vorab zu. 

-> Suchagent anlegen

Der Immobilienmakler erklärt, dass er – entgegen dem in der Immobilienwirtschaft üblichen Geschäftsgebrauch des Doppelmaklers – einseitig nur für den Vermieter tätig ist.

Unser Service – Vertrauen. Service. Qualität.

Bei ZELLMANN IMMOBILIEN legen wir größten Wert auf persönliche Beratung, Transparenz und Service auf höchstem Niveau. Jede Besichtigung ist unverbindlich und findet in entspannter Atmosphäre statt. Nach Vertragsabschluss übernehmen wir selbstverständlich sämtliche Formalitäten – von der Übergabedokumentation bis zur Abstimmung mit Hausverwaltung und Energieversorgern. Ihr Anliegen ist bei uns in den besten Händen – auch nach Vertragsabschluss.

Rechtliche Hinweise

Bitte überprüfen Sie nach Übermittlung Ihrer Anfrage auch Ihren SPAM- bzw. WERBE-Ordner, da automatisierte E-Mail-Zustellungen technisch bedingt fallweise dort eingeordnet werden können. Wir bearbeiten Anfragen üblicherweise innerhalb weniger Stunden, auch an Wochenenden. Die Bekanntgabe einer Telefonnummer erfolgt freiwillig; diese kann ausschließlich zur ergänzenden Verständigung (z. B. SMS-Benachrichtigung über die Exposé-Übermittlung) verwendet werden. Dieses Angebot ist unverbindlich und freibleibend. Alle Angaben erfolgen auf Basis von Informationen des Eigentümers und vorliegenden Unterlagen; eine Haftung für Richtigkeit, Vollständigkeit und Aktualität wird nicht übernommen. Änderungen, Irrtümer, Zwischenverkauf sowie Abweichungen bleiben vorbehalten. Flächenangaben sind ca.-Werte. Das Exposé stellt kein verbindliches Angebot dar. Im Erfolgsfall beträgt die Käuferprovision 3 % des Kaufpreises zzgl. 20 % USt gemäß §§ 6 ff MaklerG und Immobilienmaklerverordnung, BGBl. 262/1996 idgF. Bei Mietobjekten gilt das gesetzliche Bestellerprinzip (§ 17a MaklerG): Provision ist von jener Partei zu tragen, die den Makler zuerst beauftragt hat; für Wohnungssuchende fällt grundsätzlich keine Provision an.

Infrastruktur / Entfernungen

Gesundheit
Arzt <500m
Apotheke <500m
Klinik <1.000m
Krankenhaus <1.500m

Kinder & Schulen
Schule <500m
Kindergarten <500m
Universität <1.000m
Höhere Schule <1.000m

Nahversorgung
Supermarkt <500m
Bäckerei <500m
Einkaufszentrum <1.000m

Sonstige
Geldautomat <500m
Bank <1.000m
Post <1.000m
Polizei <1.000m

Verkehr
Bus <500m
U-Bahn <1.000m
Straßenbahn <500m
Bahnhof <1.000m
Autobahnanschluss <1.500m

Angaben Entfernung Luftlinie / Quelle: OpenStreetMap

Eckdaten

Gesamtmiete: 3.050,00 €
Fläche: 151,60 m²
Zimmer: 4

Basisdaten zur Immobilie

Objektnr: 25468
Art: Wohnung
Land: Österreich
Zustand: Voll_saniert
Alter: Altbau
Gesamtmiete: 3.050,00
Kaltmiete (netto): 2.667,83 €
Kaltmiete: 3.015,26 €
Provision: Gemäß Erstauftraggeberprinzip bezahlt der Abgeber die Provision.
Betriebskosten: 347,43 €
MwSt Gesamt: 34,74 €
Wohnfläche: 151,60 m²
Zimmer: 4
Bäder: 1
WC: 2
Heizwärmebedarf:  C  98,00 kWh/m²a
fGEE:  D  1,82

Ausstattung

Parkett, Steinboden, Gas, Fußbodenheizung, Wohnküche / offene Küche, Ostbalkon, Bad mit Fenster, Badewanne



Internet und TV

Information zur Internet und TV Versorgung hier




Immobilie anfragen




Ihre persönliche Beratung

ZELLMANN IMMOBILIEN GmbH | Vertrauen. Service. Qualität.

Nicole Zellmann

ZELLMANN IMMOBILIEN GmbH | Vertrauen. Service. Qualität.

nicole@zellmann.at

+43 699 15 15 22 01

+43 699 15 15 22 01


ZELLMANN IMMOBILIEN GmbH | Vertrauen. Service. Qualität. - Immobilen Makler

Stuhlhofergasse 8, 1230 Wien-Mauer

+43 699 15 15 22 00

https://www.zellmann.at