Geräumige Bürofläche mit viel Potenzial nahe Kongresspark
Büro / Praxis
,
1170
Wien
,
Liebknechtgasse 2-8
Beschreibung der Immobilie
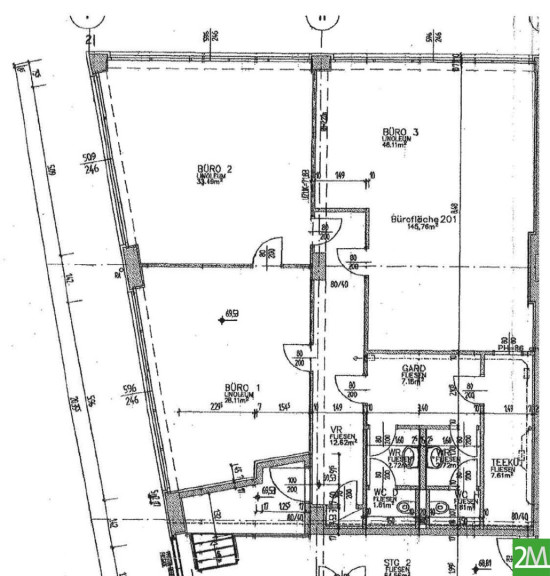
Zur Vermietung gelangt ein geräumiges Büro mit drei geräumigen Büroräumen und einer Nutzfläche von rd. 146m² in der Liebknechtgasse im 17. Bezirk. Das Büro liegt im 1. Liftstock eines Neubaus und wird auf 5 Jahre befristet vermietet.
Die Büroräume sind südwestseitig ausgerichtet und sehr hell. Gegenüber dem Büro befinden sich das Kongressbad und der Kongresspark, sodass ein schöner Blick ins Grüne gewährleistet ist. Neben den drei Büroräumen gibt es getrennte Sanitäranlagen und eine Raum für eine Teeküche (Anschlüsse vorbereitet). Die Bürofläche wird unmöbliert vermietet, die Beispielfotos sind mittels KI generiert.
Der Zustand der Räumlichkeiten ist gut. In den Büroräumen ist ein neuer Teppichboden verlegt, in den Sanitärräumen und in der Teeküche Fliesen. Alle Räume haben eine Klimaanlage sowie einen innenliegenden Sonnenschutz. Weiters ist das gesamte Büro mit einer Netzwerkverkabelung ausgerüstet.
Durch die Nähe zum Bahnhof Hernals mit einer guten Schnellbahnanbindung nach Hütteldorf sowie zum Handelskai ist das Objekt öffentlich gut erreichbar. Auch mit dem Auto erreichen Sie über die Hernalser Hauptstraße, die Maroltinergasse oder Wattgasse schnell übergeordnete Verkehrswege.
Die Infrastruktur ist ausgezeichnet. Im Haus befindet sich ein Supermarkt und in Gehreichweite gibt es weitere Geschäfte des täglichen Bedarfs.
Für weitere Auskünfte sowie eine Besichtigung stehe ich Ihnen jederzeit gerne zur Verfügung.
Mathias Mesaric, MA
2M Immobilien e.U.
Mobil: 0650 80 22 435
Mail: mm@2m-immobilien.at
Hinweis:
Dieses Objekt wird Ihnen unverbindlich und freibleibend zur Miete angeboten. Oben angeführte Angaben basieren auf Informationen und Unterlagen des Eigentümers und sind unsererseits ohne Gewähr. Im Falle eines Abschlusses mit Ihnen oder einem von Ihnen namhaft gemachten Dritten bzw. bei beidseitiger Willensübereinstimmung beträgt unser Honorar (lt. Honorarverordnung für Immobilienmakler) drei Bruttomonatsmieten zuzüglich der gesetzlichen Umsatzsteuer.
Kraft bestehenden Geschäftsgebrauchs weisen wir darauf hin, dass ein wirtschaftliches Naheverhältnis zum Vermieter besteht. Das wirtschaftliche Naheverhältnis ergibt sich aus der regelmäßigen Verbindung. Weiters ist die 2M Immobilien e.U. als Doppelmakler tätig.
Wir weisen darauf hin, dass zwischen dem Vermittler und dem zu vermittelnden Dritten ein familiäres oder wirtschaftliches Naheverhältnis besteht.
Der Vermittler ist als Doppelmakler tätig.
Infrastruktur / Entfernungen
Gesundheit
Arzt <150m
Apotheke <325m
Klinik <1.100m
Krankenhaus <925m
Kinder & Schulen
Schule <425m
Kindergarten <500m
Universität <2.075m
Höhere Schule <1.675m
Nahversorgung
Supermarkt <50m
Bäckerei <200m
Einkaufszentrum <575m
Sonstige
Geldautomat <575m
Bank <575m
Post <575m
Polizei <400m
Verkehr
Bus <100m
U-Bahn <300m
Straßenbahn <200m
Bahnhof <175m
Autobahnanschluss <4.150m
Angaben Entfernung Luftlinie / Quelle: OpenStreetMap
Eckdaten
| Kaltmiete (netto): | 1.747,72 € |
| Fläche: | 145,76 m² |
| Zimmer: | 3 |
Basisdaten zur Immobilie
| Objektnr: | 1757 |
| Art: | Büro / Praxis |
| Land: | Österreich |
| Kaltmiete (netto): | 1.747,72 € |
| Kaltmiete: | 2.083,34 € |
| Miete / m²: | 11,99 € |
| Provision: | 7.500,02 € inkl. 20% USt. |
| Betriebskosten: | 335,62 € |
| MwSt Gesamt: | 416,66 € |
| Nutzfläche: | 145,76 m² |
| Zimmer: | 3 |
| WC: | 2 |
Ausstattung
Teppichboden, Fliesen, Zentralheizung, Personenaufzug
Internet und TV
Information zur Internet und TV Versorgung hier
Ihre persönliche Beratung
Mathias Mesaric, MA
2M Immobilien e.U.
mm@2m-immobilien.at
+43 650 8022435
