Grünes Paradies: Charmantes Haus mit großem Garten | frisch modernisiert !!
Haus
- Einfamilienhaus,
7210
Mattersburg
Lage der Immobilie
FeldgasseBeschreibung der Immobilie
Das Herz des Burgenlandes: Mattersburg - umgeben von sanften Hügeln und Weinbergen – eine Stadt voller Herzlichkeit, Tradition und hoher Lebensqualität.
Genau hier verbirgt sich ein ganz besonderes Juwel: Ein Haus, das mehr als vier Wände ist - mit großzügigem Garten mit prächtigem, altem Baumbestand, der schon beim ersten Betreten eine unvergleichliche Atmosphäre schafft.
Charaktervolle Fassade mit Charme
Schon von außen beeindruckt das Haus mit seiner freundlichen, hellen Fassade und den klassischen Elementen einer traditionellen Ortsarchitektur. Die symmetrische Fensteranordnung mit weißen Rahmen verleiht dem Gebäude eine zeitlose Eleganz. Besonders charmant ist das Dach mit Gaube, das dem Obergeschoss zusätzliche Helligkeit schenkt und dem Haus seine unverwechselbare Ausstrahlung verleiht.
Ein Zuhause mit Seele
Die Räume des Hauses sind hell, einladend und vielseitig nutzbar. Ob für die große Familie, für Paare, die sich nach Weite sehnen, oder für Menschen, die Wohnen und Arbeiten unter einem Dach verbinden möchten – hier lässt sich jeder Wohntraum verwirklichen. Durchdachte Grundrisse auf mehreren Ebenen eröffnen Spielraum für individuelle Gestaltungsideen.
Ein Garten wie aus Kindheitserinnerungen
Das Herzstück des Anwesens ist zweifellos der Garten. Alte Bäume spenden Schatten und erzählen Geschichten – von lauen Sommerabenden, von Spielen unter Blätterdächern und von Momenten der Ruhe. Hier können Sie Feste feiern, die Natur genießen oder einfach den Alltag hinter sich lassen.
Es wird darauf hingewiesen, dass die ersten Fotos virtuell gestaged sind! Das Haus ist nicht möbliert; die Einrichtung dient als Beispiel, um ein Gefühl dafür zu erlangen, wie man die Räume gestalten könnte.
Das Haus wurde stets liebevoll gepflegt und instand gehalten.
Raumaufteilung im Detail
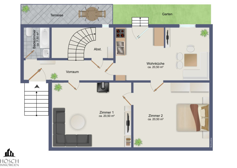
Erdgeschoss:
- Weitläufiger Vorraum
- Badezimmer mit Toilette (ca. 7,5 m²)
- praktischer Abstellraum (ca. 4,5 m²)
- Zwei große Wohnräume (je ca. 20,5 m²)
- Großzügige Wohnküche (ca. 20,5 m²) mit Zugang zur Terrasse bzw. zum Garten
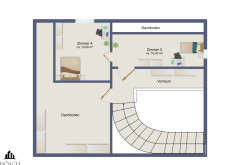
Obergeschoss:
- Vorraum mit reichlich Platz für Stauraum
- Zwei helle Zimmer (ca. 10 m² und ca. 13,00 m²)
- Viel Stauraum dank zwei begehbarer Dachböden
Keller:
- Großer Keller mit 3 Räumen – ideal als Lager, Werkstatt oder Hobbyraum
Das Haus wurde stets liebevoll gepflegt und instand gehalten.
Jährliche Dachinspektionen, Kontrollen durch Rauchfangkehrer und Reinigungen der Dachrinnen verstehen sich als Selbstverständlichkeit.
Das Haus verfügt über hochwertige Internorm Lärmschutzfenster (ca. 10 Jahre alt).
Investitionen der letzten 1,5 Jahre:
Gartenzaun neu (Kosten: € 22.000,-- )
Gasdurchlauferhitzer neu: (Kosten: € 1.900,--)
Überdachung Kellerzugang neu: (Kosten: € 1.700,--)
Lage mit Lebensqualität und besonderem Vorteil
Mattersburg verbindet die Nähe zur Natur mit der Bequemlichkeit einer lebendigen Stadt. Alles, was Sie zum täglichen Leben brauchen, ist schnell erreichbar:
Billa & E-Ladestation (150kW) - ca. 150 m entfernt
Apotheke - ca. 150 m entfernt
Freibad - ca. 500 m entfernt
Tennis & Padel Plätze - ca. 500 m entfernt
Diverse Ärzte - ca. 700 m entfernt
Direkt gegenüber der Liegenschaft befindet sich die Bahnhaltestelle Mattersburg Nord, die eine hervorragende Anbindung nach Wien, Eisenstadt und die umliegende Region bietet. Damit ist das Haus nicht nur für Familien ideal, sondern auch für Berufspendler, die Wert auf kurze Wege und unkomplizierte Mobilität legen.
So verbindet dieses Zuhause die Ruhe einer charmanten Wohnlage mit der praktischen Nähe zu öffentlicher Infrastruktur – ein seltener Vorteil, der den Alltag spürbar erleichtert.
Monatliche Betriebskosten:
Kanal: € 30,--
Wasser: € 30,--
Müll: € 14,--
Haushaltsversicherung: € 30,--
Grundsteuer: € 21
Summe: € 125,--
Stromkosten (geschätzt): € 90/Monat
Gas: (geschätzt): € 70/Monat.
Startpreis: € 299.000,00
Erfolgshonorar: 3% vom Kaufpreis zzgl. 20% USt.
Diese Immobilie wird in Form eines digitalen Angebotsprozesses vermittelt. Das bedeutet, der angeführte Preis versteht sich als Startpreis und kann sich im Laufe des Prozesses erhöhen.
Erfolgshonorar: 3% vom Kaufpreis zzgl. 20% USt.
Für Rückfragen bzw. bei Interesse an einem Besichtigungstermin steht Ihnen Herr David Hösch gerne
unter der Rufnummer 0660 162 02 47 zur Verfügung.
Der Vermittler ist als Doppelmakler tätig.
Eckdaten
| Kaufpreis: | 299.000,00 € |
| Fläche: | 100,00 m² |
| Zimmer: | 5 |
Basisdaten zur Immobilie
| Objektnr: | 7398/1259 |
| Art: | Haus - Einfamilienhaus |
| Land: | Österreich |
| Baujahr: | 1933 |
| Kaufpreis: | 299.000,00 € |
| Provision: | 3% des Kaufpreises zzgl. 20% USt. |
| Wohnfläche: | 100,00 m² |
| Grundstücksfl.: | 669,00 m² |
| Zimmer: | 5 |
| Bäder: | 1 |
| WC: | 1 |
| Terrassen: | 1 |
| Heizwärmebedarf: | G 504,80 kWh/m²a |
| fGEE: | G 5,65 |
Ausstattung
Parkett, Gas, Etagenheizung
Internet und TV
Information zur Internet und TV Versorgung hier
Ihre persönliche Beratung
David Hösch
Hösch Immobilien GmbH
office@hoesch-immobilien.at
+436601620247
