Immobilie merken

*** Solide Wertanlage in Villach *** Drei Wohneinheiten mit Zukunftspotenzial

Zinshaus Renditeobjekt , 9500 Villach

Lage der Immobilie

Nähe Hauptbahnhof Villach

Beschreibung der Immobilie

***Solide Wertanlage in Villach *** Drei Wohneinheiten mit Zukunftspotential

Dieses attraktive Zinshaus mit drei Wohnungen befindet sich in guter Lage in Villach, nur wenige Gehminuten vom Villacher Hauptbahnhof entfernt.

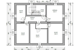
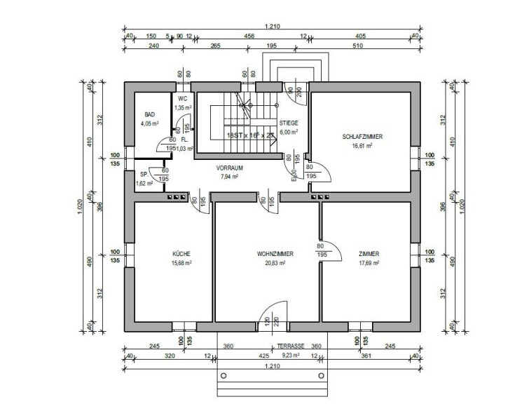
Die zentrale und zugleich gut angebundene Lage macht das Objekt für Anleger besonders interessant. Das Ertragsobjekt gliedert sich in drei separate Wohneinheiten, wobei die Wohnung im Erdgeschoss vermietet ist und somit laufende Mieteinnahmen generiert. Die Einheiten im ersten Obergeschoss sowie im Dachgeschoss sind derzeit unvermietet und bieten dadurch attraktives Entwicklungspotenzial.

Beheizt wird das gesamte Haus mittels einer Gas-Zentralheizung, wobei die Therme im Jahr 2021 erneuert wurde und damit einen zeitgemäßen technischen Standard aufweist.

Dank der soliden Bausubstanz, der überschaubaren Objektgröße und der gefragten Lage nahe dem Bahnhof sowie sämtlicher Infrastruktur stellt dieses Zinshaus eine nachhaltige Investitionsmöglichkeit mit stabilem Wertentwicklungspotenzial dar.

Dieses Zinshaus in Villach vereint laufende Erträge mit weiterem Entwicklungspotenzial und bietet somit eine hervorragende Gelegenheit für Anleger, die auf eine nachhaltige und wertbeständige Investition in gefragter Lage setzen möchten.

Baujahr:
~1956

Flächen:

660 m² Grundstücksfläche
rd. 259,50 m² Gesamtwohnnutzfläche
rd. 342,00 m² Gesamtnutzfläche 

Ausstattung:
- Holz-, Laminat und Fliesenboden
- Kunststofffenster (2-Scheiben-Verglasung) mit Rollläden / DG: Kunststofffenster (3-Scheiben-Verglasung)
- ZH - Gas (Therme 2021 erneuert) // Warmwasser über E-Boiler

Kaufpreis: EUR 495.000,-

Kaufnebenkosten:
- Grunderwerbsteuer 3,5 %
- Grundbucheintragungsgebühr 1,1%
- Vermittlungsprovision 3 % + 20 % Ust.
- Vertragserrichtungskosten lt. Tarifordnung des Vertragserrichters

Allgemeiner Hinweis:
Aufgrund der Nachweispflicht gegenüber dem Eigentümer sowie in Entsprechung des FAGG (Fern- und Auswärtsgeschäfte-Gesetz) wird um Verständnis ersucht, dass nur Anfragen mit zumindest vollständigem Namen, E-Mailadresse und Telefonnummer bearbeitet werden. Ohne diese Angaben werden keine weiteren Auskünfte erteilt / keine Objektunterlagen übergeben.

Die angegebenen Daten stammen vom Eigentümer und/oder Dritten und wurden mit Sorgfalt erhoben. Für die Richtigkeit und Vollständigkeit kann jedoch keine Haftung übernommen werden. Zahlenangaben können gegebenenfalls gerundet oder geschätzt sein. Das Anbot ist freibleibend und unverbindlich. Irrtümer und Änderungen sind vorbehalten. Nachdruck/ Vervielfältigung nur mit Genehmigung der Firma Realitäten Perkonig Immobilientreuhand KG.

Hinweis gemäß Energieausweisvorlagegesetz: Ein Energieausweis wurde vom Eigentümer bzw. Verkäufer, nach unserer Aufklärung über die generell geltende Vorlagepflicht, sowie Aufforderung zu seiner Erstellung noch nicht vorgelegt. Daher gilt zumindest eine dem Alter und der Art des Gebäudes entsprechende Gesamtenergieeffizienz als vereinbart. Wir übernehmen keinerlei Gewähr oder Haftung für die tatsächliche Energieeffizienz der angebotenen Immobilie.

Der Vermittler ist als Doppelmakler tätig.

Infrastruktur / Entfernungen

Gesundheit
Arzt <500m
Apotheke <500m
Klinik <1.000m
Krankenhaus <1.000m

Kinder & Schulen
Schule <1.000m
Kindergarten <1.000m
Universität <2.500m
Höhere Schule <2.500m

Nahversorgung
Supermarkt <500m
Bäckerei <1.000m
Einkaufszentrum <1.500m

Sonstige
Geldautomat <500m
Bank <1.000m
Post <500m
Polizei <1.500m

Verkehr
Bus <500m
Autobahnanschluss <3.500m
Bahnhof <1.000m

Angaben Entfernung Luftlinie / Quelle: OpenStreetMap

Eckdaten

Kaufpreis: 495.000,00 €
Fläche: 260,00 m²

Basisdaten zur Immobilie

Objektnr: 6556
Art: Zinshaus Renditeobjekt
Land: Österreich
Zustand: Gepflegt
Kaufpreis: 495.000,00
Kaufpreis / m²: auf Anfrage
Wohnfläche: 260,00 m²
Nutzfläche: 342,00 m²
Grundstücksfl.: 660,00 m²
Balkone: 1
Keller: 82,50 m²

Ausstattung

Laminatboden, Parkett, Fliesen, Gas, Zentralheizung, Einbauküche, Parkplatz



Internet und TV

Information zur Internet und TV Versorgung hier




Immobilie anfragen




Ihre persönliche Beratung

Realitäten Perkonig Immobilientreuhand KG

Mag. Paul Perkonig

Realitäten Perkonig Immobilientreuhand KG

office@realitaeten-perkonig.at

+43 463 50 20 60 - 0

+43 664 342 75 20

F +43 463 50 20 60 - 15


Realitäten Perkonig Immobilientreuhand KG - Immobilen Makler

Villacher Straße 25 / 4, 9020 Klagenfurt am Wörthersee

+43 463 50 20 60 - 0

https://www.realitaeten-perkonig.at/