2-Zimmer Wohnung nahe Burggasse in 1070 Wien zu mieten
Wohnung
- Etage,
1070
Wien
Lage der Immobilie
Eine hervorragende öffentliche Anbindung wird durch die nahe gelegene U6 sowie zahlreichen Straßenbahn- und Buslinien geboten. Geschäfte des täglichen Bedarf liegen in fußläufiger Entfernung. Die nahe gelegene Mariahilfer Straße bietet unzählige Geschäfte und nette Lokale.Beschreibung der Immobilie
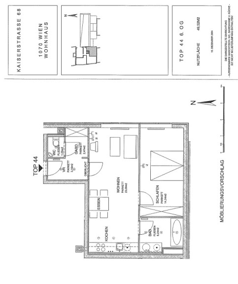
Eckdaten
| Gesamtmiete: | 1.214,35 € |
| Fläche: | 49,52 m² |
| Zimmer: | 2 |
Basisdaten zur Immobilie
| Objektnr: | 109268508 |
| Art: | Wohnung - Etage |
| Land: | Österreich |
| Baujahr: | 2005 |
| Gesamtmiete: | 1.214,35 € |
| Kaltmiete (netto): | 997,48 € |
| Kaltmiete: | 1.214,35 € |
| Provision: | provisionsfrei für den Mieter |
| Betriebskosten: | 106,47 € |
| Wohnfläche: | 49,52 m² |
| Zimmer: | 2 |
| Bäder: | 1 |
| WC: | 1 |
| Heizwärmebedarf: | B 42,40 kWh/m²a |
| fGEE: | C 1,01 |
Ausstattung
Parkett, Fliesen, Zentralheizung, Einbauküche, Personenaufzug, Ostbalkon, Badewanne
Internet und TV
Information zur Internet und TV Versorgung hier
Ihre persönliche Beratung
Lara Steinbacher
ÖRAG Immobilien Vermittlung GmbH
lara.steinbacher@oerag.at
0043153473261
004366488962125
