Helle 2-Zimmer-Wohnung in Salzburg-Süd Josefiau
Wohnung
,
5020
Salzburg
Lage der Immobilie
Ruhig und dennoch zentral liegt die verkaufsgegenständliche Liegenschaft, im beliebten Stadtteil Josefiau.
Durch die Nähe zur historischen Altstadt, zahlreichen wunderschönen Parks und der Hellbrunner Allee, gehört diese Lage zu den begehrtesten Salzburgs. Naherholungs- und Einkaufsmöglichkeiten verbindet dieser Stadtteil und bietet daher hohe Lebensqualität.
In nur ca. 10 Minuten erreichen Sie mit dem Fahrrad entlang der Salzach die Altstadt, was ein Plus für diese Wohnung darstellt. Das Angebot an öffentlichen Verkehrsmitteln ist groß und auch fußläufig sind alle Einrichtungen des täglichen Bedarfs wie Lebensmittelgeschäfte, Restaurants und Ärzte gut erreichbar. Die Universität(en) von Salzburg sind nur 1 bzw. 2 Kilometer entfernt! Auch das nahegelegene Freizeitzentrum mit Freibad lädt zum Erholen ein.
Beschreibung der Immobilie
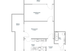
Einziehen und wohlfühlen! Diese lichtdurchflutete 2-Zimmer-Eckwohnung im 1. Stock eines 2025 umfassend sanierten Wohnhauses punktet durch ihre ruhige Lage in zweiter Reihe zur Salzach und zum Radweg. Der unverbaute Blick in die Aulandschaft, auf das Bergpanorama und ins Grüne macht sie zu einem wunderbaren Rückzugsort zum Entspannen und Genießen.
Der einladende Vorraum mit Garderobenbereich bietet ausreichend Stauraum und erschließt die Wohnung. Das Schlafzimmer verfügt über Platz für einen Einbauschrank und direkten Zugang zum zweiten Balkon, auf dem die Abendsonne genossen werden kann. Das Badezimmer ist modern ausgestattet und verfügt über eine Badewanne. Die Küche ist teils abgetrennt und dennoch offen zum Wohnbereich gestaltet, der durch seine großzügigen Fensterflächen viel Tageslicht bietet. Der große, überdachte Südbalkon lädt zum Verweilen an sonnigen Tagen ein und bietet einen traumhaften Ausblick.
Ein Garagenstellplatz sowie ein Kellerabteil ergänzen das attraktive Angebot.
Ein seltenes Wohnjuwel im Süden Salzburgs – hell, ruhig und mit einzigartigem Panorama- und Grünblick.
Wir verweisen auf unsere Funktion als Doppelmakler sowie auf das wirtschaftliche Naheverhältnis zum
Eckdaten
| Kaufpreis: | 320.000,00 € |
| Fläche: | 44,00 m² |
| Zimmer: | 2 |
Basisdaten zur Immobilie
| Objektnr: | 0003003217 |
| Art: | Wohnung |
| Land: | Österreich |
| Baujahr: | ca. 1972 |
| Kaufpreis: | 320.000,00 € |
| Provision: | 3% des Kaufpreises plus 20% USt. |
| Betriebskosten: | 106,59 € |
| Heizkosten: | 99,11 € |
| Wohnfläche: | 44,00 m² |
| Zimmer: | 2 |
| Bäder: | 1 |
| Balkone: | 2 |
| Keller: | 3,00 m² |
| Heizwärmebedarf: | B 45,00 kWh/m²a |
| fGEE: | B 0,98 |
Ausstattung
Öl, Zentralheizung, Badewanne, Wasch/Trockenraum
Internet und TV
Information zur Internet und TV Versorgung hier
Ihre persönliche Beratung
Jacqueline Mörtl
Raiffeisen Salzburg
jacqueline.moertl@immoraiffeisen.at
+43662888614226
+43 662 8886 14229
