St. Georgen MITTE - ein Standort - viele Möglichkeiten
Wohnung
- Terrassenwohnung,
4880
St. Georgen im Attergau
,
Attergauer Straße
Lage der Immobilie
Wir, die Firma Neuwog errichten in Zusammenarbeit mit dem regionalen Partner Atticon in der Attergauer Straße Nr 13 und 15 in 4880 St. Georgen im Attergau eine Immobile in hervorragender Lage. Mitten im Zentrum nur wenige Gehminuten vom Bahnhof entfernt, genießen Sie eine optimale Anbindung an den öffentlichen Verkehr. Die Lage des Projektes besticht durch seine Nähe zum Attersee ( in 5 Autominuten erreichbar) und auch mit Ihrer sehr guten Autobahnanbindung nach Salzburg. Wir als Bauträger, sind bemüht in den Gewerbeflächen des Objektes Ärzte für eine optimale Gesundheitsvorsorge unterzubringen. Hier wohnen oder arbeiten Sie zentral und komfortabel!Beschreibung der Immobilie
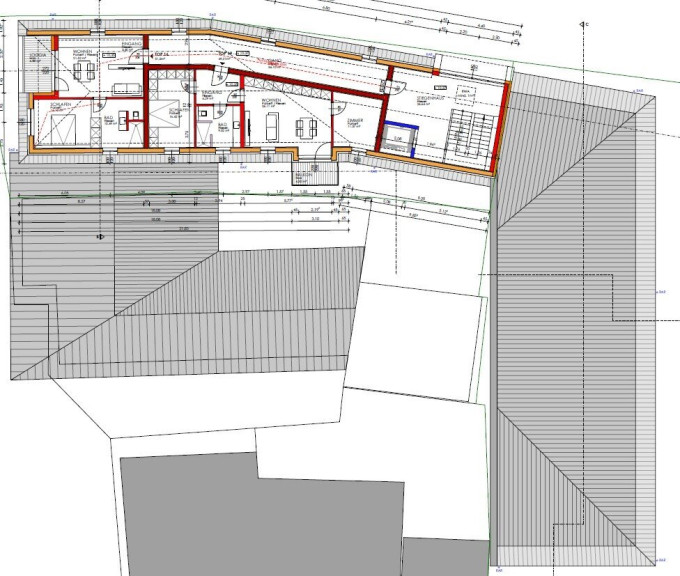
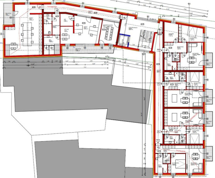
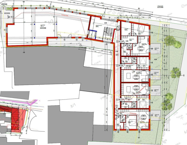
Willkommen in Ihrem neuen Zuhause – einer traumhaften Terrassenwohnung in der idyllischen Gemeinde St. Georgen im Attergau, Oberösterreich! Diese exklusiv gestaltete Erdgeschosswohnung mit einer großzügigen Fläche von 54,19 m² bietet Ihnen nicht nur modernen Wohnkomfort, sondern auch die Möglichkeit, Natur und Lebensqualität in vollen Zügen zu genießen.
Bereits beim Betreten der Wohnung spüren Sie den Charme des Erstbezugs. Helle, lichtdurchflutete Räume laden zum Verweilen ein. Die durchdachte Raumaufteilung mit zwei Zimmern eröffnet Ihnen vielfältige Nutzungsmöglichkeiten – ob als gemütliches Schlafzimmer, Homeoffice oder stylisches Gästezimmer.
Die hochwertige Ausstattung wird Sie begeistern: Edle Fliesen und stilvolles Parkett verleihen der Wohnung ein modernes Ambiente. Das Badezimmer mit Fenster ist mit einer großzügigen Dusche ausgestattet und schafft eine Oase der Ruhe.
Einer der absoluten Highlights dieser Terrassenwohnung ist die bezaubernde Terrasse, die in einen liebevoll gestalteten Garten übergeht. Hier können Sie entspannte Stunden im Freien verbringen, die Sonne genießen und sich vom Alltagsstress erholen. Die Südausrichtung sorgt für eine angenehme Helligkeit und lässt Ihr neues Zuhause in ein warmes Licht tauchen.
Zusätzlich profitieren Sie von einem praktischen Personenaufzug, der den Zugang zur Garage sowie zu den oberen Etagen erleichtert. Die eigene Garage bietet nicht nur Platz für Ihr Auto, sondern auch für zusätzlichen Stauraum. Ein Wasch- und Trockenraum vervollständigt das Angebot und sorgt für zusätzlichen Komfort.
Lassen Sie sich diese einmalige Gelegenheit nicht entgehen! Diese Terrassenwohnung in St. Georgen im Attergau vereint modernen Wohnkomfort mit einer traumhaften Lage und vielseitigen Möglichkeiten. Machen Sie den ersten Schritt in Ihr neues Zuhause und vereinbaren Sie noch heute einen Besichtigungstermin! Ihr neues Kapitel im Leben wartet auf Sie.
Hinweis gemäß Energieausweisvorlagegesetz: Ein Energieausweis wurde vom Eigentümer bzw. Verkäufer, nach unserer Aufklärung über die generell geltende Vorlagepflicht, sowie Aufforderung zu seiner Erstellung noch nicht vorgelegt. Daher gilt zumindest eine dem Alter und der Art des Gebäudes entsprechende Gesamtenergieeffizienz als vereinbart. Wir übernehmen keinerlei Gewähr oder Haftung für die tatsächliche Energieeffizienz der angebotenen Immobilie.
Infrastruktur / Entfernungen
Gesundheit
Arzt <475m
Apotheke <100m
Klinik <2.075m
Kinder & Schulen
Schule <325m
Kindergarten <425m
Nahversorgung
Supermarkt <250m
Bäckerei <700m
Sonstige
Bank <250m
Geldautomat <250m
Post <325m
Polizei <475m
Verkehr
Bus <225m
Bahnhof <300m
Autobahnanschluss <1.550m
Angaben Entfernung Luftlinie / Quelle: OpenStreetMap
Eckdaten
| Kaufpreis: | 280.000,00 € |
| Fläche: | 54,19 m² |
| Zimmer: | 2 |
Basisdaten zur Immobilie
| Objektnr: | 4417/1606 |
| Art: | Wohnung - Terrassenwohnung |
| Land: | Österreich |
| Zustand: | Erstbezug |
| Alter: | Neubau |
| Kaufpreis: | 280.000,00 € |
| Wohnfläche: | 54,19 m² |
| Grundstücksfl.: | 1.357,20 m² |
| Zimmer: | 2 |
| Bäder: | 1 |
| WC: | 1 |
| Terrassen: | 1 |
| Keller: | 3,66 m² |
Ausstattung
Fliesen, Parkett, Personenaufzug, Südbalkon, Bad mit Fenster, Dusche, Garage, Wasch/Trockenraum
Internet und TV
Information zur Internet und TV Versorgung hier
Ihre persönliche Beratung
Bmstr. Georg Altmüller
NEUWOG Immobilientreuhand und Liegenschaftserrichtungs GmbH
info@neuwog.at
+43 7227 2005340
+43 676 3388238
