St. Georgen MITTE - ein Standort - viele Möglichkeiten
Wohnung
,
4880
St. Georgen im Attergau
,
Attergauer Straße
Lage der Immobilie
Wir, die Firma Neuwog errichten in Zusammenarbeit mit dem regionalen Partner Atticon in der Attergauer Straße Nr 13 und 15 in 4880 St. Georgen im Attergau eine Immobile in hervorragender Lage. Mitten im Zentrum nur wenige Gehminuten vom Bahnhof entfernt, genießen Sie eine optimale Anbindung an den öffentlichen Verkehr. Die Lage des Projektes besticht durch seine Nähe zum Attersee ( in 5 Autominuten erreichbar) und auch mit Ihrer sehr guten Autobahnanbindung nach Salzburg. Wir als Bauträger, sind bemüht in den Gewerbeflächen des Objektes Ärzte für eine optimale Gesundheitsvorsorge unterzubringen. Hier wohnen oder arbeiten Sie zentral und komfortabel!Beschreibung der Immobilie
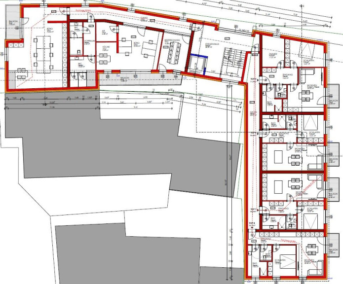
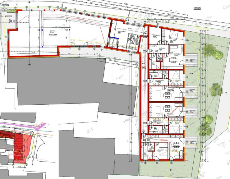
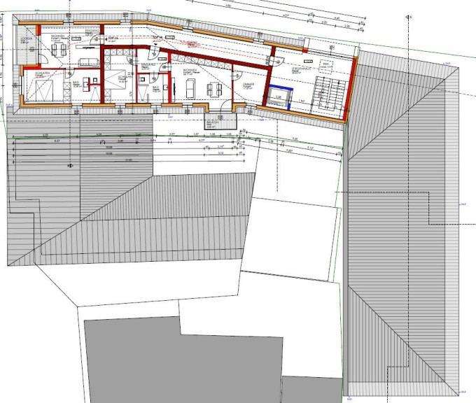
Willkommen in Ihrem neuen Zuhause in 4880 St. Georgen im Attergau – einer Gartenwohnung, die nicht nur durch ihre moderne Ausstattung, sondern auch durch ihre Lage besticht.
Diese erstklassige Wohnung im Erdgeschoss bietet Ihnen auf großzügigen 71,29 m² eine harmonische Verbindung aus Komfort und Funktionalität. Mit drei lichtdurchfluteten Zimmern ist sie der perfekte Rückzugsort für Familien, Paare oder Singles, die das Besondere suchen.
Der offene Wohn- und Essbereich ist der zentrale Treffpunkt dieser Wohnung. Hier können Sie unvergessliche Abende mit Freunden und Familie verbringen. Große Fenster lassen viel Tageslicht herein und bieten einen Blick auf Ihre private Terrasse, die nahtlos in den eigenen Garten übergeht. Stellen Sie sich vor, wie Sie an sonnigen Tagen im Freien entspannen, während die Kinder im Garten spielen oder Sie mit Freunden ein Barbecue veranstalten.
Die hochwertige Ausstattung spricht für sich: Fliesen und Parkett sorgen für ein stilvolles Ambiente. Zwei moderne Bäder bieten Ihnen Flexibilität und Komfort im Alltag. Genießen Sie entspannende Duschen oder bereiten Sie sich in aller Ruhe auf den Tag vor. Ein Personenaufzug sorgt dafür, dass Sie mühelos zu Ihrer Wohnung gelangen – perfekt für alle Lebenslagen.
Die Gartenwohnung ist nicht nur ein Ort zum Wohnen, sondern auch eine Oase der Ruhe und des Wohlbefindens. Die Südterrasse lädt dazu ein, die Sonne zu genießen und entspannte Stunden im Freien zu verbringen. Der dazugehörige Garten bietet Ihnen die Möglichkeit, Ihre eigenen grünen Akzente zu setzen und eine persönliche Wohlfühloase zu gestalten.
Zusätzlich zur Wohnung gehört eine Garage, die Ihnen Sicherheit und Schutz für Ihr Fahrzeug bietet. Ein Wasch- und Trockenraum sowie ein Fahrradraum runden das Angebot ab und sorgen für zusätzlichen Komfort in Ihrem neuen Zuhause.
Die Lage ist ein weiteres Highlight dieser Immobilie. St. Georgen im Attergau ist nicht nur bekannt für seine atemberaubende Natur und die Nähe zum Attersee, sondern bietet auch eine hervorragende Anbindung an den öffentlichen Verkehr. Bus und Bahn sind nur wenige Minuten entfernt, sodass Sie problemlos in die umliegenden Städte gelangen können.
Nutzen Sie diese einmalige Chance auf eine moderne Gartenwohnung in St. Georgen im Attergau! Vereinbaren Sie noch heute einen Besichtigungstermin und lassen Sie sich von dieser einzigartigen Immobilie begeistern. Ihr neues Zuhause wartet bereits auf Sie!
Hinweis gemäß Energieausweisvorlagegesetz: Ein Energieausweis wurde vom Eigentümer bzw. Verkäufer, nach unserer Aufklärung über die generell geltende Vorlagepflicht, sowie Aufforderung zu seiner Erstellung noch nicht vorgelegt. Daher gilt zumindest eine dem Alter und der Art des Gebäudes entsprechende Gesamtenergieeffizienz als vereinbart. Wir übernehmen keinerlei Gewähr oder Haftung für die tatsächliche Energieeffizienz der angebotenen Immobilie.
Infrastruktur / Entfernungen
Gesundheit
Arzt <475m
Apotheke <100m
Klinik <2.075m
Kinder & Schulen
Schule <325m
Kindergarten <425m
Nahversorgung
Supermarkt <250m
Bäckerei <700m
Sonstige
Bank <250m
Geldautomat <250m
Post <325m
Polizei <475m
Verkehr
Bus <225m
Bahnhof <300m
Autobahnanschluss <1.550m
Angaben Entfernung Luftlinie / Quelle: OpenStreetMap
Eckdaten
| Kaufpreis: | 350.000,00 € |
| Fläche: | 71,29 m² |
| Zimmer: | 3 |
Basisdaten zur Immobilie
| Objektnr: | 4417/1603 |
| Art: | Wohnung |
| Land: | Österreich |
| Zustand: | Erstbezug |
| Alter: | Neubau |
| Kaufpreis: | 350.000,00 € |
| Wohnfläche: | 71,29 m² |
| Grundstücksfl.: | 1.357,20 m² |
| Zimmer: | 3 |
| Bäder: | 2 |
| WC: | 1 |
| Terrassen: | 1 |
| Keller: | 3,66 m² |
Ausstattung
Parkett, Fliesen, Personenaufzug, Südbalkon, Dusche, Garage, Wasch/Trockenraum
Internet und TV
Information zur Internet und TV Versorgung hier
Ihre persönliche Beratung
Bmstr. Georg Altmüller
NEUWOG Immobilientreuhand und Liegenschaftserrichtungs GmbH
info@neuwog.at
+43 7227 2005340
+43 676 3388238
