| BJ 2006 | LUFTWÄRMEPUMPE | UNVERBAUBARER FERNBLICK | GARAGE
Haus
- Einfamilienhaus,
3040
Neulengbach
,
Hochfeldgasse
Lage der Immobilie
NeulengbachBeschreibung der Immobilie
Freistehendes Einfamilienhaus | Luftwärmepumpe | Unverbaubarer Blick
Informationen zum Objekt und Ausstattung
Bei der angebotenen Immobilie handelt es sich um ein freistehendes Einfamilienhaus mit Garage, das durch eine durchdachte Architektur, moderne Haustechnik und großzügige Freiflächen überzeugt. Das Haus wurde funktional geplant und bietet sowohl im Innenbereich als auch im Außenbereich ein komfortables Wohnumfeld für Familien.
Die Beheizung erfolgt über eine moderne Luftwärmepumpe, welche in Kombination mit einer Fußbodenheizung in allen Wohnräumen für ein angenehmes und energieeffizientes Raumklima sorgt. Diese Heizlösung steht für niedrige Betriebskosten und eine nachhaltige Energieversorgung.
Besondere Highlights des Hauses sind die großzügigen Freiflächen, die den Wohnraum optimal nach außen erweitern. Eine große Terrasse im Erdgeschoss bietet viel Platz für entspannte Stunden im Freien, während der Balkon im Obergeschoss zusätzlichen Außenraum schafft. Durch die freistehende Bauweise profitieren die Bewohner von viel Privatsphäre und guter Belichtung der Wohnräume.
Zur Immobilie gehört außerdem eine separate Garage, die direkten Schutz für das Fahrzeug bietet und zusätzlichen Stauraum ermöglicht.
Die Architektur kombiniert eine klare, zeitlose Gestaltung mit funktionalen Grundrissen, wodurch ein modernes und komfortables Wohnkonzept entsteht.
Raumaufteilung
Das Einfamilienhaus erstreckt sich über Erdgeschoss und Obergeschoss und bietet eine gut strukturierte Raumaufteilung mit großzügigen Wohnflächen.
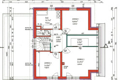
Erdgeschoss
Der Eingangsbereich führt in einen zentralen Vorraum, von dem aus die einzelnen Bereiche erschlossen werden.
-
Vorraum
-
Zimmer ca. 12 m² – ideal als Gästezimmer, Büro oder Schlafzimmer
-
Technikraum ca. 6 m²
-
Bad/WC ca. 4,5 m²
-
Küche ca. 12 m²
-
Wohn- und Essbereich ca. 53 m²
Der großzügige Wohn- und Essbereich bildet das Herzstück des Hauses. Große Öffnungen schaffen eine direkte Verbindung zur Terrasse mit rund 16 m², wodurch sich der Wohnraum harmonisch nach außen erweitert.
Die Garage mit etwa 42,2 m² ist direkt am Gebäude angeordnet und sorgt für kurze Wege.
Obergeschoss
Im Obergeschoss befindet sich der private Rückzugsbereich der Familie:
-
Zimmer 1 ca. 16,8 m²
-
Zimmer 2 ca. 14,9 m²
-
Zimmer 3 ca. 25 m² – ideal als großzügiges Hauptschlafzimmer
-
Bad ca. 10,8 m²
-
separates WC ca. 2,1 m²
-
Vorraum / Flur ca. 5,8 m²
Ein zusätzlicher Balkon mit rund 18,5 m² erweitert den Wohnkomfort im Obergeschoss und bietet einen schönen Außenbereich mit Ausblick ins Freie.
Die Raumaufteilung eignet sich hervorragend für Familien, da mehrere Schlafzimmer sowie ausreichend Sanitär- und Nebenräume vorhanden sind.
Lage
Die Immobilie befindet sich in einer ruhigen Wohnlage mit überwiegend Einfamilienhausbebauung. Die Umgebung ist geprägt von einer angenehmen Nachbarschaft, viel Grün und einer lockeren Bebauungsstruktur, wodurch ein hohes Maß an Wohnqualität entsteht.
Durch die freistehende Position des Hauses und die großzügigen Außenflächen entsteht ein besonders offenes und lichtdurchflutetes Wohnumfeld. Gleichzeitig sind die wichtigsten Einrichtungen des täglichen Bedarfs wie Einkaufsmöglichkeiten, Schulen, Kindergärten sowie öffentliche Verkehrsanbindungen in der Umgebung erreichbar.
Die Lage verbindet damit ruhiges Wohnen im Grünen mit guter Infrastruktur und eignet sich ideal für Familien oder Paare, die Wert auf Lebensqualität, Freiraum und moderne Wohntechnik legen.
Wir weisen darauf hin, dass zwischen dem Vermittler und dem zu vermittelnden Dritten ein familiäres oder wirtschaftliches Naheverhältnis besteht.
DECUS Immobilien GmbH – Wir beleben Räume
Für weitere Informationen und Besichtigungen steht Ihnen gerne Herr Ing. Nicolas Putzlager unter der Mobilnummer +43 660 302 61 70und per E-Mail unter putzlager@decus.at persönlich zur Verfügung.
www.decus.at | office@decus.at
Wichtige Informationen
Bitte beachten Sie, dass per 13.06.2014 eine neue Richtlinie für Fernabsatz- und Auswärtsgeschäfte in Kraft getreten ist.
Ab 1.4.2024 entfallen die Grundbuchs- und Pfandrechtseintragungsgebühren vorübergehend für Eigenheime bis zu einer Bemessungsgrundlage von EUR 500.000,-. Voraussetzung ist das dringende Wohnbedürfnis, ausgenommen davon sind vererbte oder geschenkte Immobilien. Die Befreiung ist jedoch für den Einzelfall zu prüfen, DECUS Immobilien übernimmt hierzu keine Haftung.
Ab 01.07.2023 gilt das Erstauftraggeber-Prinzip bei Wohnungsmietverträgen, ausgenommen davon sind Dienst-/Natural-/Werkswohnungen. Wir dürfen gem. § 17 Maklergesetz darauf hinweisen, dass wir auf die Doppelmaklertätigkeit gem. § 5 Maklergesetz bei Wohnungsmietverträgen verzichten und nur noch einseitig tätig sind (bei den restlichen Vermittlungsarten nicht) und ein wirtschaftliches Naheverhältnis zu unseren Auftraggebern besteht.
Im Falle eines Abschlusses mit Ihnen oder einem von Ihnen namhaft gemachten Dritten bzw. bei beidseitiger Willensübereinstimmung beträgt unser Honorar (lt. Honorarverordnung für Immobilienmakler) 2 Bruttomonatsmieten (BMM) bei Dienst-/Natural-/Werkwohnungen sowie Suchaufträgen, 3 BMM bei Gewerbe-, PKW-, Keller- und Lagermietverträgen sowie bei Kaufobjekten 3 % des Kaufpreises, zuzüglich der gesetzlichen Umsatzsteuer.
Dieses Objekt wird Ihnen unverbindlich und freibleibend angeboten. Oben angeführte Angaben basieren auf Informationen und Unterlagen des Eigentümers und sind unsererseits ohne Gewähr.
Nähere Informationen sowie unsere AGBs und die Nebenkostenübersichtsblatt finden Sie auf unserer Homepage www.decus.at unter "Service" - "Rechtliches zum FAGG" sowie im Anhang der zugesendeten Objekt-Exposés!
Infrastruktur / Entfernungen
Gesundheit
Arzt <2.000m
Apotheke <2.250m
Klinik <8.500m
Kinder & Schulen
Schule <2.000m
Kindergarten <1.750m
Nahversorgung
Supermarkt <2.000m
Bäckerei <2.000m
Einkaufszentrum <10.000m
Sonstige
Bank <1.750m
Geldautomat <1.750m
Post <2.250m
Polizei <2.500m
Verkehr
Bus <750m
Autobahnanschluss <6.500m
Bahnhof <2.250m
Angaben Entfernung Luftlinie / Quelle: OpenStreetMap
Eckdaten
| Kaufpreis: | 625.000,00 € |
| Fläche: | 183,43 m² |
| Zimmer: | 5 |
Basisdaten zur Immobilie
| Objektnr: | 1152433 |
| Art: | Haus - Einfamilienhaus |
| Land: | Österreich |
| Baujahr: | 2006 |
| Alter: | Neubau |
| Kaufpreis: | 625.000,00 € |
| Provision: | 3% des Kaufpreises zzgl. 20% USt. |
| Wohnfläche: | 183,43 m² |
| Nutzfläche: | 283,08 m² |
| Zimmer: | 5 |
| WC: | 2 |
| Balkone: | 1 |
| Terrassen: | 1 |
| Garten: | 1.009,00 m² |
| Heizwärmebedarf: | C 63,20 kWh/m²a |
| fGEE: | B 0,94 |
Internet und TV
Information zur Internet und TV Versorgung hier
Ihre persönliche Beratung
Ing. Nicolas Putzlager
DECUS Immobilien GmbH
putzlager@decus.at
+43 660 302 61 70
+43 660 302 61 70
F +43 1 35 600 10
