NEU! • 6 Zimmer • Familienhaus • Garten + Terrasse • Luftwärmepumpe • 1220 Wien
Haus
- Doppelhaushälfte,
1220
Wien
Lage der Immobilie
LOBAUBeschreibung der Immobilie
- PERFEKT FÜR FAMILIEN UND HOME OFFICE:
Wir haben die bisherigen Wünsche unserer zahlreichen Kunden genau analysiert und diese sorgfältig in unser neuestes Projekt integriert.
Das Ergebnis ist ein auch für junge Familien gut leistbares Haus, das ausreichend Platz für Kinder, Homeoffice sowie zusätzlichen Stauraum bietet.
Das Grundstück steht im Eigentum, sodass keine monatlichen, inflationsindexierten Pacht- oder Baurechtsgebühren anfallen, die eine zukünftige Vermietung oder einen Weiterverkauf erschweren könnten.
Um das Hausbudget nach dem Kauf langfristig zu entlasten, wird eine energieeffiziente Luftwärmepumpe mit Fußbodenheizung und -kühlung installiert, ergänzt durch eine Photovoltaikanlage am Dach.
- GARTEN / ERDGESCHOSS / OBERGESCHOSS / DACHGESCHOSS:
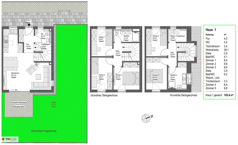
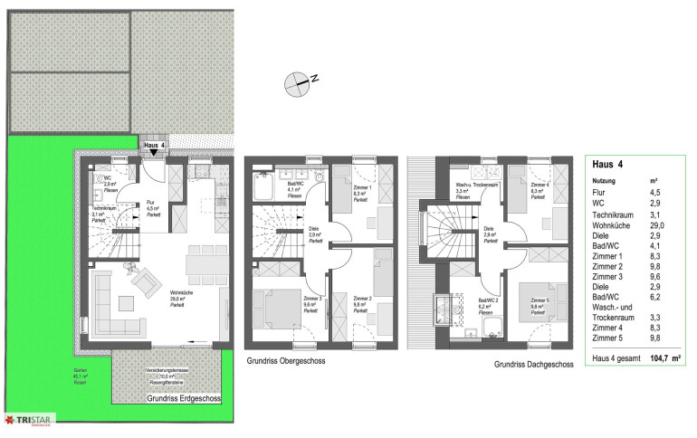
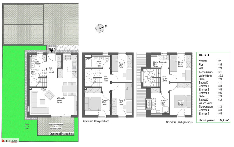
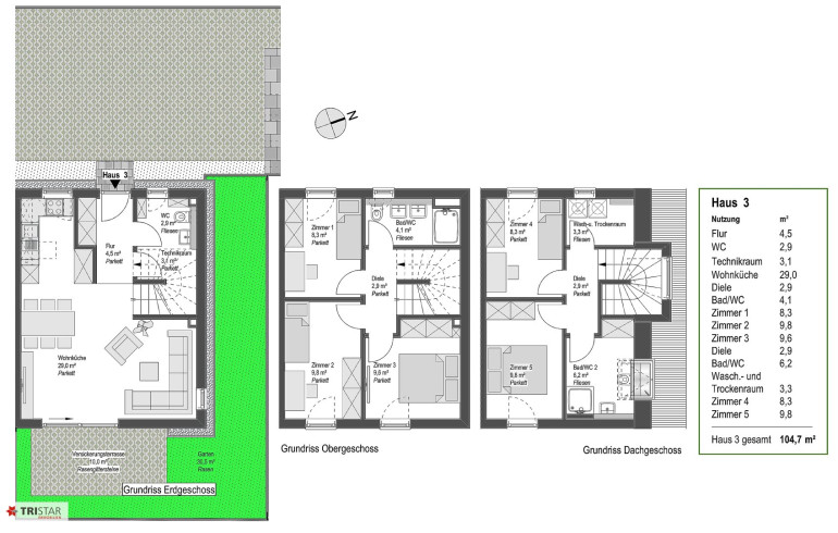
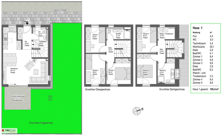
6 Zimmer, (WNFL ca. 105,40 m²), Eigengarten (ca. 83 m²), Terrasse, PKW-Stellplatz.
Erdgeschoss: Helle Wohnküche (ca. 29 m²) mit direktem Zugang zur Terrasse und in den Garten, WC, Technikraum, Flur.
Obergeschoss: 3 Schlafzimmer, Badezimmer, Flur.
Dachgeschoss: 2 Schlafzimmer, Badezimmer, Abstellraum, Diele.
- KAUFPREIS / ZUSTAND:
Um die größtmögliche individuelle Gestaltungsfreiheit zu gewährleisten, werden die Häuser vorerst belagsfertig zu einem Preis von EUR 549.000 angeboten.
Der Käufer kann die Fertigstellung entweder in Eigenregie durchführen oder gegen einen Aufpreis von rund EUR 50.000 direkt vom Bauträger bis zum schlüsselfertigen Zustand beauftragen – inklusive Materialien und Farbgestaltung nach eigenem Geschmack.
- FOTOS:
Die Fotos sind Symbolfotos (Referenzprojekt) aus einem bereits realisierten und verkauften Projekt des Bauträgers und dienen dazu, den schlüsselfertigen Zustand (ohne Küche) besser einschätzen zu können.
- LOBAU (Nationalpark Donau-Auen, Teilbereich Lobau):
Der Nationalpark Donau-Auen, Teilbereich Lobau, ist in etwa sechs Minuten mit dem Fahrrad erreichbar – somit wird jeder Ausflug mit der Familie zu einem unvergesslichen Naturerlebnis. Das weitläufige Erholungsgebiet eignet sich ideal für Spaziergänge, Radtouren sowie Ausflüge mit dem Kinderwagen.
- ENERGIEEFFIZIENT UND NACHHALTIG:
Luft-Wärmepumpe für Heizen und Kühlen über den Fußboden
3-fach isolierverglaste Fenster
Außenliegender Sonnenschutz
Sorgt für niedrige Betriebskosten und hohen Wohnkomfort.
- LAGE UND INFRASTRUKTUR / VERKEHRSANBINDUNG:
Ein detailliertes Lageexposé (48 Seiten) steht nach Anfrage zum Download bereit.
NEU! • 6 Zimmer • Familienhaus • Garten + Terrasse • Luftwärmepumpe • 1220 Wien
Wir weisen darauf hin, dass zwischen dem Vermittler und dem zu vermittelnden Dritten ein familiäres oder wirtschaftliches Naheverhältnis besteht.
Der Vermittler ist als Doppelmakler tätig.
Eckdaten
| Kaufpreis: | 549.000,00 € |
| Fläche: | 104,40 m² |
| Zimmer: | 6 |
Basisdaten zur Immobilie
| Objektnr: | 28446 |
| Art: | Haus - Doppelhaushälfte |
| Land: | Österreich |
| Baujahr: | 2026 |
| Zustand: | Erstbezug |
| Kaufpreis: | 549.000,00 € |
| Kaufpreis / m²: | auf Anfrage |
| Provision: | 3% des Kaufpreises zzgl. 20% USt. |
| Wohnfläche: | 104,40 m² |
| Zimmer: | 6 |
| WC: | 3 |
| Terrassen: | 1 |
| Stellplätze: | 1 |
| Garten: | 50,40 m² |
| Heizwärmebedarf: | B 37,80 kWh/m²a |
| fGEE: | A+ 0,68 |
Ausstattung
Parkett, Fliesen, Fußbodenheizung, Bad mit Fenster, Dusche, Parkplatz
Internet und TV
Information zur Internet und TV Versorgung hier
Ihre persönliche Beratung
TRISTAR Immobilien
TRISTAR Immobilien
tristar@tristar.at
+43 676 901 73 74
