Lage der Immobilie
U2 SEESTADT / LOBAUBeschreibung der Immobilie
- WOHNUNG:
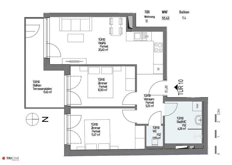
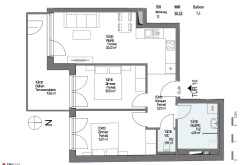
Zum Verkauf gelangt eine wunderschöne, hofseitige (Südausrichtung) 3-Zimmer-Neubauwohnung (Baujahr 2025) mit Balkon.
Die Wohnung wurde soeben fertiggestellt und es handelt sich somit um einen Erstbezug.
Die Wohnfläche beträgt ca. 55,50 m² zuzüglich eines Balkons mit ca. 9,50 m², der sowohl von der Wohnküche als auch vom Schlafzimmer aus begehbar ist.
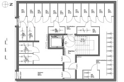
Alle Räume sind separat begehbar und vom Vorraum aus erreichbar.
- AUSSTATTUNG:
Die Wohnung ist mit Fußbodenheizung ausgestattet.
Die Beheizung erfolgt über eine hauseigene Luftwärmepumpe, die am Dach installiert ist und durch eine Photovoltaikanlage mit Südausrichtung unterstützt wird.
Die Heizkosten werden verbrauchsabhängig abgerechnet.
Alle Zimmer sowie der Vorraum sind mit einem hochwertigen Echt-Holzparkettboden (Eiche) ausgestattet.
Das Badezimmer sowie das WC sind mit modernen, hochwertigen Fliesen ausgestattet.
Die Fenster sowie die Terrassentür sind dreifach verglast und verfügen über einen entsprechenden Sonnenschutz (Außenrollos), der elektrisch bedienbar ist.
Die Wohnung befindet sich im 1. Liftstock und ist bequem über einen Personenaufzug (8 Personen) erreichbar.
Vom Balkon aus genießt man einen schönen Blick in den südseitigen Innenhof.
- HAUS:
Das Neubauhaus wurde gerade fertiggestellt.
Der Großteil der Wohnungen ist bereits verkauft, einige Einheiten sind bereits bewohnt.
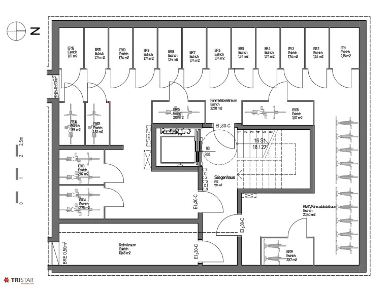
Das Haus verfügt über Kellerabteile für die einzelnen Wohnungen, einen Fahrradabstellraum im Keller, einen Stromzählerraum, einen Technikraum mit Heizungsanlage sowie eine allgemeine Gartenfläche im Innenhof.
- ANLEGER / EIGENNUTZER:
Die Wohnung verfügt über eine sehr attraktive und universelle Größe und eignet sich daher sowohl für Eigennutzer als auch für Anleger.
Dank der 3-Zimmer-Aufteilung bietet die Wohnung ausreichend Platz für Paare, kleine Familien oder eine Kombination aus Wohnen und Homeoffice.
Kaufpreis für Anleger: EUR 326.000,- zzgl. 20 % USt.
Kaufpreis für Eigennutzer: EUR 339.000,-
- INDIVIDUELL ANGEPASSTE FINANZIERUNG:
Unsere ausgewählten und erfahrenen Finanzierungspartner unterstützen Sie gerne bei der Entwicklung einer optimal auf Ihre Bedürfnisse abgestimmten Finanzierungslösung.
Top-Finanzierungskonzepte sowohl für Eigennutzer als auch für Anleger stehen bereit und warten auf Ihre Anfrage. Weitere Informationen erhalten Sie beim Besichtigungstermin!
- LAGE:
Diverse Einkaufsmöglichkeiten für den täglichen Lebensbedarf sowie öffentliche Verkehrsmittel sind in Gehweite vorhanden.
Ein detailliertes Lageexposé (65 Seiten) ist vorhanden und wird umgehend nach Anfrage übermittelt!
-
VERMITTLUNGSPROVISION / DOPPELMAKLERTÄTIGKEIT:
Der Ordnung halber wird darauf hingewiesen, dass die Vermittlungsprovision 3 % des Kaufpreises zuzüglich 20 % USt. (insgesamt 3,6 %) beträgt und mit Zustandekommen des vermittelten Rechtsgeschäfts (Annahme des Kaufanbots ohne aufschiebende Bedingungen durch den Verkäufer) fällig wird. Der Makler ist als Doppelmakler tätig.
NEU! • Erstbezug • 3 Zimmer • Balkon Südlage • 1220 Wien
Wir weisen darauf hin, dass zwischen dem Vermittler und dem zu vermittelnden Dritten ein familiäres oder wirtschaftliches Naheverhältnis besteht.
Der Vermittler ist als Doppelmakler tätig.
Eckdaten
| Kaufpreis: | 339.000,00 € |
| Fläche: | 55,50 m² |
| Zimmer: | 3 |
Basisdaten zur Immobilie
| Objektnr: | 28445 |
| Art: | Wohnung |
| Land: | Österreich |
| Baujahr: | 2025 |
| Zustand: | Erstbezug |
| Alter: | Neubau |
| Kaufpreis: | 339.000,00 € |
| Kaufpreis / m²: | auf Anfrage |
| Provision: | 3% des Kaufpreises zzgl. 20% USt. |
| Wohnfläche: | 55,50 m² |
| Gesamtfläche: | 64,83 m² |
| Zimmer: | 3 |
| Bäder: | 1 |
| WC: | 1 |
| Balkone: | 1 |
| Keller: | 1,74 m² |
| Heizwärmebedarf: | 45,10 kWh/m²a |
| fGEE: | 0,70 |
Ausstattung
Parkett, Fliesen, Fußbodenheizung, Personenaufzug, Südbalkon, Dusche
Internet und TV
Information zur Internet und TV Versorgung hier
Ihre persönliche Beratung
TRISTAR Immobilien
TRISTAR Immobilien
tristar@tristar.at
+43 676 901 73 74
