Lage der Immobilie
U6 - PerfekterstraßeBeschreibung der Immobilie
- HAUS:
Zum Verkauf gelangt ein wunderschönes Haus mit Garten und PKW-Stellplatz in Südlage in 1230 Wien, das bereits fertiggestellt wurde und somit ab sofort bezugsfertig ist.
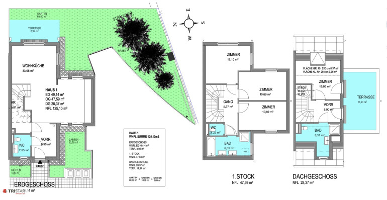
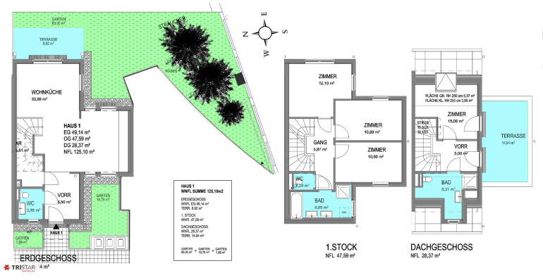
Das Haus ist ost-, süd- und westseitig ausgerichtet und verfügt über ca. 125 m² Wohnfläche, einen Garten mit ca. 73 m² sowie zwei Terrassen mit insgesamt ca. 24 m².
Das Haus bietet 5 Zimmer und gliedert sich wie folgt:
- Erdgeschoss:
Wohnküche (eine neue Küche wurde soeben eingebaut und ist im Kaufpreis inkludiert), Technikraum, Toilette, Terrasse sowie eine eigene Gartenfläche.
- 1. Obergeschoss:
3 Schlafzimmer, Badezimmer mit Badewanne, Fenster und Waschmaschinenanschluss sowie eine getrennte Toilette.
- Dachgeschoss:
Zimmer, Badezimmer mit Dusche, Fenster und Toilette sowie eine Terrasse mit schönem Weitblick.
- ÖFFENTLICH UNTERWEGS:
Die Lage ist so gut positioniert, dass man in ca. 5–10 Minuten zu Fuß jede Menge öffentliche Verkehrsanbindungen erreichen kann: U6, Badner Bahn sowie diverse Bus- und Straßenbahnstationen ermöglichen es endlich, ein Haus zu besitzen, ohne unbedingt zwei Autos haben zu müssen!
Somit kann man in der Früh oder am Nachmittag, während andere im Stau stecken, entspannt und schnell die Schule oder den Kindergarten erreichen, umweltfreundlich zum Arbeitsplatz fahren oder am Abend auch ohne Taxi nach Hause kommen.
- AUSSTATTUNG:
Das Haus wird über eine eigene Luftwärmepumpe beheizt, die durch eine Photovoltaikanlage am Dach unterstützt wird. Die Beheizung erfolgt mittels Fußbodenheizung, über die im Sommer auch eine Kühlung möglich ist.
Alle Zimmer, der Vorraum sowie die Treppen sind mit hochwertigem Echtholzparkettboden (Eiche, Landhausdiele)ausgestattet. Der Vorraum, der Technikraum sowie die Badezimmer und Toiletten wurden mit modernen, hochwertigen Fliesen ausgestattet.
Die Fenster und Terrassentüren sind dreifach verglast und verfügen über eine Außenbeschattung.
Eine maßgefertigte Tischlerküche wurde bereits eingebaut und ist mit sämtlichen Geräten ausgestattet.
Ein PKW-Stellplatz ist ebenfalls im Kaufpreis inkludiert.
- KEIN BAURECHT / KEINE PACHT:
Das Haus wurde auf Eigengrund errichtet. Es fallen daher keine Baurechts- oder Pachtgebühren an.
-
Top Lage:
DETAILLIERTES LAGEEXPOSÉ (68 Seiten!) vorhanden und erfolgt umgehend nach Anfrage.
-
Moderne und maßgeschneiderte Finanzierung:
„Hausbank war gestern“!
Heutzutage haben wir für Sie online und sofortigen Zugang zu den besten und neuesten Finanzprodukten von über 120 Kreditinstituten in Österreich und Deutschland.
Genau wie beim Immobilienvergleich, ermöglichen wir Ihnen, alle relevante Bankangebote zu vergleichen, um das beste für Sie zu finden!
Auch Angebote ohne Eigenmittel, mit festen Zinssätzen und einer beeindruckenden Laufzeit von bis zu 45 Jahren sind verfügbar!
So sparen Sie Zeit, Geld und Nerven!
NEU! • Erstbezug • Haus mit Garten • Terrasse • Nähe U6 • 1230 Wien
Wir weisen darauf hin, dass zwischen dem Vermittler und dem zu vermittelnden Dritten ein familiäres oder wirtschaftliches Naheverhältnis besteht.
Der Vermittler ist als Doppelmakler tätig.
Eckdaten
| Kaufpreis: | 699.000,00 € |
| Fläche: | 125,00 m² |
| Zimmer: | 5 |
Basisdaten zur Immobilie
| Objektnr: | 28447 |
| Art: | Haus - Reihenendhaus |
| Land: | Österreich |
| Baujahr: | 2024 |
| Zustand: | Erstbezug |
| Alter: | Neubau |
| Kaufpreis: | 699.000,00 € |
| Kaufpreis / m²: | auf Anfrage |
| Provision: | 3% des Kaufpreises zzgl. 20% USt. |
| Wohnfläche: | 125,00 m² |
| Zimmer: | 5 |
| Bäder: | 2 |
| WC: | 3 |
| Terrassen: | 2 |
| Stellplätze: | 1 |
| Garten: | 73,00 m² |
| Heizwärmebedarf: | B 43,10 kWh/m²a |
| fGEE: | A+ 0,65 |
Ausstattung
Fliesen, Parkett, Fußbodenheizung, Einbauküche, Wohnküche / offene Küche, Südbalkon, Bad mit Fenster, Badewanne, Dusche, Parkplatz
Internet und TV
Information zur Internet und TV Versorgung hier
Ihre persönliche Beratung
TRISTAR Immobilien
TRISTAR Immobilien
tristar@tristar.at
+43 676 901 73 74
