Immobilie merken

1180 Wien | Helle 3-Zimmer WOHNUNG ca. 76 m²| Ideal für Familien oder WGs | Nähe AKH | Vermietet bis 05/2027

Wohnung - Erdgeschoß, 1180 Wien

Lage der Immobilie

Die Wohnung befindet sich in einer ruhigen Gasse in einem Altbau in beliebter Wohnlage im Übergangsbereich der Wiener Bezirke Hernals und Währing. Hier wir das Beste aus zwei Welten vereint: eine ruhige, gewachsene Wohnumgebung und gleichzeitig eine hervorragende Anbindung an die Wiener Innenstadt. Das AKH, die U6 Stationen "Michelbeuern" und "Alser Straße" sind fußläufig leicht erreichbar. Eine optimale Infrastruktur unterstreicht auch die Nähe zu Einkaufsgelegenheiten, Kinderbetreuung, Schulen, Universitäten, Gesundheitseinrichtungen und Freizeitangeboten. Die Kombination aus ruhiger Wohnlage und guter Infrastruktur macht diese Adresse zu einem besonders attraktiven Lebensmittelpunkt in Wien.

Beschreibung der Immobilie

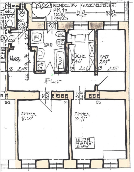
Zum Verkauf gelangt eine gepflegte Altbauwohnung, die bis 31.05.2027 befristet an einen verlässlichen Mieter vergeben ist. Die monatlichen Netto-Mieteinnahmen inkl. Möbelmiete belaufen sich auf € 690,00. Die Wohnung befindet sich im Hochparterre und hat einen idealen Grundriss. Vom Vorzimmer und dem weiterführenden Flur sind alle Räume zentral begehbar. Die beiden großen Zimmer sind durch die südseitige Ausrichtung schön hell. Das Kabinett, Küche und Bad sind hofseitig angeordnet. Die Küche ist komplett ausgestattet, das Bad verfügt über Wanne, Dusche, Waschtisch, Bidet, WC, Waschmaschinenanschluss und ein großes Fenster. Zusätzlich gibt es auch im Vorzimmer ein extra WC. Im Rücklagenfond des Hauses sind € 38.000,00 (per April 2025) angespart, für 2026 sind keine größeren Ausgaben geplant. Die Wohnung wurde 2022 renoviert, Heizung und Warmwasser werden von einer Gasetagenheizung aufbereitet. Durch die gute Raumaufteilung und die ausgezeichnete Infrastruktur eignet sich die Wohnung ideal sowohl für Familien als auch für Wohngemeinschaften.

Eckdaten

Kaufpreis: 300.000,00 €
Fläche: 75,63 m²
Zimmer: 3

Basisdaten zur Immobilie

Objektnr: PI-00967
Art: Wohnung - Erdgeschoß
Land: Österreich
Baujahr: 1900
Zustand: Gepflegt
Kaufpreis: 300.000,00
Provision: 3%
Wohnfläche: 75,63 m²
Nutzfläche: 75,63 m²
Zimmer: 3
Bäder: 1
WC: 2
Heizwärmebedarf: 94,30 kWh/m²a

Ausstattung

Gas, Etagenheizung, Einbauküche, Bad mit Fenster, Badewanne, Dusche



Internet und TV

Information zur Internet und TV Versorgung hier




Immobilie anfragen




Ihre persönliche Beratung

PLENUS Immobilien GmbH

Anita Zauder

PLENUS Immobilien GmbH

az@plenus-immobilien.at

004369911736176

004369911736176


PLENUS Immobilien GmbH - Immobilen Makler

Tuchlauben 7a, 1010 Wien, AUSTRIA

+43 1 423 00 40