Gemütliches Zweifamilienhaus mit riesigem Baugrundstück in Leonding - teilbar & mit Projektoption
Grundstück
- Baugrund Eigenheim,
4060
Bergham
,
Forsthausstraße 54
Lage der Immobilie
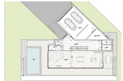
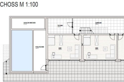
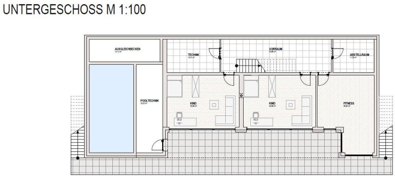
Zweifamilienhaus sofort bezugsbereit inkl. Heizung, und zweite Parzelle für Neubau, insgesamt 2156 m² WohnbauwidmungBeschreibung der Immobilie
In attraktiver Lage von Leonding gelangt dieses außergewöhnliche Anwesen mit großzügigem Baugrundstück zum Verkauf - eine Gelegenheit für Eigennutzer, Investoren und Bauherren gleichermaßen.
Das Grundstück bietet durch seine beeindruckende Größe die Möglichkeit, es in zwei eigenständige Baugrundstücke zu teilen und eröffnet somit sowohl für private Bauherren als auch für Projektentwickler ein enormes Potenzial.
Auf dem Grundstück befindet sich derzeit ein Haus, welches entweder weiter genutzt, saniert oder durch einen Neubau ersetzt werden kann.
Zusätzlich besteht die Möglichkeit, das wir für Sie ein neues Haus gemäß beiliegendem Entwurf planen und realisieren - individuell angepasst auf Ihre Wünsche und Bedürfnisse.
Highlights:
-
Top Lage in Leonding mit Weitsicht bis in die Berge
-
Großes Baugrundstück, teilbar in 2 Parzellen
-
Ideal für Eigennutzer, Familien, Bauträger & Investoren
Ob als großzügiges Eigenheim oder Investment - diese Liegenschaft bietet Ihnen maximale Flexibilität und Zukunftssicherheit.
Vereinbaren Sie noch heute einen Besichtigungstermin und überzeugen Sie sich selbst von den Vorzügen dieser Immobilie. Wir freuen uns auf Ihre Kontaktaufnahme!
Der Vermittler ist als Doppelmakler tätig.
Infrastruktur / Entfernungen
Gesundheit
Arzt <1.050m
Apotheke <1.375m
Klinik <1.475m
Krankenhaus <4.500m
Kinder & Schulen
Schule <1.175m
Kindergarten <1.050m
Universität <2.975m
Höhere Schule <4.950m
Nahversorgung
Supermarkt <1.225m
Bäckerei <1.275m
Einkaufszentrum <4.500m
Sonstige
Bank <1.275m
Geldautomat <1.275m
Post <2.900m
Polizei <1.975m
Verkehr
Bus <825m
Straßenbahn <3.000m
Bahnhof <1.075m
Autobahnanschluss <3.275m
Flughafen <6.100m
Angaben Entfernung Luftlinie / Quelle: OpenStreetMap
Eckdaten
| Kaufpreis: | 1.400.000,00 € |
| Fläche: | 2.156,00 m² |
Basisdaten zur Immobilie
| Objektnr: | 4417/1638 |
| Art: | Grundstück - Baugrund Eigenheim |
| Land: | Österreich |
| Kaufpreis: | 1.400.000,00 € |
| Provision: | 3% des Kaufpreises zzgl. 20% USt. |
| Wohnfläche: | 356,35 m² |
| Grundstücksfl.: | 2.156,00 m² |
| Balkone: | 1 |
| Terrassen: | 2 |
Ausstattung
Südbalkon
Internet und TV
Information zur Internet und TV Versorgung hier
Ihre persönliche Beratung
Thomas Eiber
NEUWOG Immobilientreuhand und Liegenschaftserrichtungs GmbH
info@neuwog.at
+43 7227 2005311
+43 664 3011131
