Spessart: Perfekte Location für Partys & Events: Gastgewerbe mit Discothek samt Dachgeschosswohnungen in Neuhofen
Gastgewerbe
,
4501
Neuhofen an der Krems
,
Lining 34
Lage der Immobilie
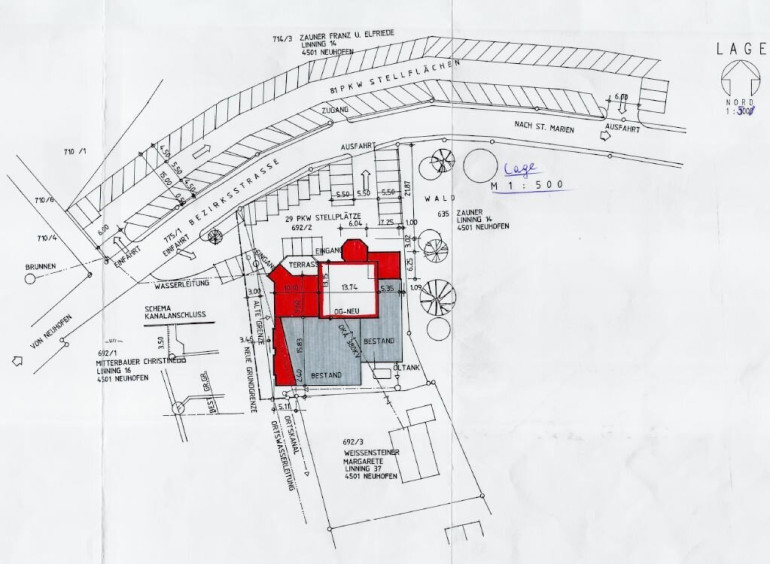
Die Immobilie befindet sich in der Gemeinde Neuhofen an der Krems in Oberösterreich, genauer gesagt liegt sie im Ortsteil Lining am Hochpunkt von Neuhofen/Krems.Beschreibung der Immobilie
Willkommen in Ihrer neuen Gastgewerbe-Immobilie in 4501 Neuhofen an der Krems, Oberösterreich! Diese einzigartige Discothek Spessart im Erdgeschoss bietet Ihnen auf 639,40m² alles, was Sie für einen erfolgreichen Start in die Gastronomie-Branche benötigen. Mit seiner attraktiven Lage und der außergewöhnlichen Architektur wird dieses Objekt zu einem wahren Juwel für jeden, der von einer eigenen Discothek träumt.
Die teilweise sanierte Immobilie verfügt über 3 Dachgeschosswohnungen mit 2 großzügige Dachterrassen. Genießen Sie den atemberaubenden Fernblick und den idyllischen Grünblick, während Sie Ihren Gästen eine unvergessliche Zeit bieten. Die 28 Stellplätze und die Garage sorgen für ausreichend Parkmöglichkeiten für Ihre Besucher.
Das Highlight dieser Immobilie ist im Erdgeschoss die angrenzende Bar, die unmittelbar zum Tanzen und Feiern einlädt. Hier können Sie Ihre Gäste mit leckeren Cocktails und Getränken verwöhnen und für eine ausgelassene Stimmung sorgen.
Die Verkehrsanbindung ist optimal. Eine Bushaltestelle befindet sich in unmittelbarer Nähe und der Bahnhof ist ebenfalls in wenigen Minuten erreichbar.
Nutzen Sie die Chance, in die spannende Welt des Gastgewerbes einzutauchen und sich mit dieser Discothek einen lang gehegten Traum zu erfüllen. Der Markt für Unterhaltungsangebote ist stetig wachsend und bietet Ihnen somit beste Voraussetzungen für eine erfolgreiche Geschäftsentwicklung.
Zögern Sie nicht und vereinbaren Sie noch heute einen Besichtigungstermin für diese einzigartige Immobilie. Wir stehen Ihnen jederzeit gerne zur Verfügung und freuen uns darauf, Sie bei Ihrem neuen gastronomischen Projekt zu unterstützen. Lassen Sie sich von der Atmosphäre dieser Discothek verzaubern und werden Sie Teil einer pulsierenden und aufregenden Branche.
Wir weisen darauf hin, dass zwischen dem Vermittler und dem zu vermittelnden Dritten ein familiäres oder wirtschaftliches Naheverhältnis besteht.
Der Vermittler ist als Doppelmakler tätig.
Infrastruktur / Entfernungen
Gesundheit
Arzt <1.000m
Apotheke <1.325m
Klinik <1.000m
Kinder & Schulen
Kindergarten <1.175m
Schule <1.250m
Nahversorgung
Supermarkt <1.275m
Bäckerei <625m
Einkaufszentrum <6.525m
Sonstige
Bank <1.150m
Geldautomat <1.150m
Post <600m
Polizei <1.375m
Verkehr
Bus <550m
Autobahnanschluss <6.200m
Bahnhof <625m
Straßenbahn <9.075m
Flughafen <6.625m
Angaben Entfernung Luftlinie / Quelle: OpenStreetMap
Eckdaten
| Kaufpreis: | auf Anfrage |
| Fläche: | 161,90 m² |
Basisdaten zur Immobilie
| Objektnr: | 4417/1631 |
| Art: | Gastgewerbe |
| Land: | Österreich |
| Baujahr: | 1958 |
| Zustand: | Teil_vollsaniert |
| Alter: | Altbau |
| Kaufpreis: | auf Anfrage |
| Kaufpreis / m²: | auf Anfrage |
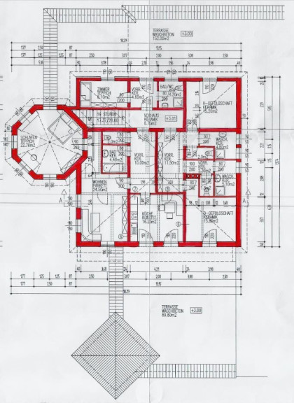
| Wohnfläche: | 161,90 m² |
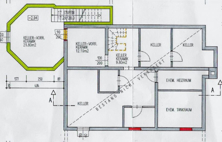
| Nutzfläche: | 639,40 m² |
| Grundstücksfl.: | 2.167,00 m² |
| Bäder: | 4 |
| WC: | 13 |
| Terrassen: | 3 |
| Stellplätze: | 28 |
| Keller: | 122,14 m² |
| Heizwärmebedarf: | D 108,00 kWh/m²a |
| fGEE: | C 1,19 |
Ausstattung
Parkett, Fliesen, Steinboden, Öl, Zentralheizung, Angeschl. Bar, Bad mit Fenster, Dusche, Parkplatz, Garage, Gastterrasse
Internet und TV
Information zur Internet und TV Versorgung hier
Ihre persönliche Beratung
Bmstr. Georg Altmüller
NEUWOG Immobilientreuhand und Liegenschaftserrichtungs GmbH
info@neuwog.at
+43 7227 2005340
+43 676 3388238
