Neues Wohnbauprojekt in Aschach an der Steyr - jetzt informieren!
Wohnung
,
4421
Aschach an der Steyr
,
Gärtnerstraße 1
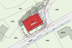
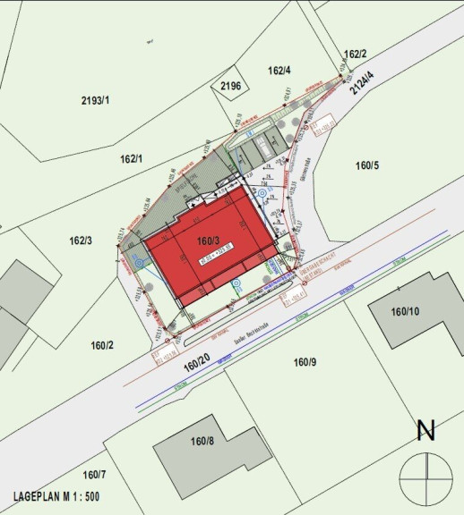
Lage der Immobilie
Die Immobilie in der Gärtnerstraße 4421 in Aschach an der Steyr überzeugt durch ihre zentrale Lage in Oberösterreich. Umgeben von idyllischer Natur und einer charmanten Gemeinde, profitieren Sie von einer hervorragenden Anbindung. Bus- und Bahnhaltestellen befinden sich in unmittelbarer Nähe, was den täglichen Pendelverkehr erleichtert. Genießen Sie die perfekte Kombination aus Ruhe und urbanem Leben – ideal für Familien und Berufstätige oder Senioren!Beschreibung der Immobilie
Entdecken Sie Ihr neues Zuhause in der charmanten Gemeinde Aschach an der Steyr, im malerischen Oberösterreich. Diese exklusive Wohnung im ersten Dachgeschoss bietet Ihnen nicht nur eine erstklassige Lage, sondern auch ein modernes und stilvolles Wohnambiente, das keine Wünsche offenlässt.
Mit einer großzügigen Fläche von 74,33 m² und drei hellen, einladenden Zimmern ist diese Wohnung ideal für Paare, kleine Familien oder alle, die den Komfort und die Annehmlichkeiten eines Erstbezugs genießen möchten. Der Kaufpreis von 329.000,00 € macht dieses Angebot besonders attraktiv und bietet Ihnen die Möglichkeit, in eine hochwertige Immobilie zu investieren.
Die Wohnung besticht durch ihre durchdachte Raumaufteilung und hochwertige Ausstattung. Im großzügigen Wohnbereich können Sie entspannte Stunden verbringen und Ihre Gäste empfangen. Die moderne Küche fügt sich harmonisch in das Gesamtbild ein und bietet Ihnen genügend Platz für kulinarische Kreationen.
Die Loggia ist ein besonderes Highlight dieser Immobilie. Hier können Sie die Sonne genießen und den Ausblick auf die malerische Umgebung der Steyrer Berge bewundern. Ob für ein gemütliches Frühstück im Freien oder entspannte Abende mit Freunden – dieser Außenbereich wird schnell zu Ihrem Lieblingsplatz.
Die Ausstattung der Wohnung lässt keine Wünsche offen. Hochwertige Fliesen und Parkettböden, eine Fußbodenheizung sowie ein modernes Bad mit Fenster, Badewanne und Dusche sorgen für ein behagliches Wohngefühl. Beide Stellplätze, die zur Wohnung gehören, bieten Ihnen zusätzlichen Komfort und Sicherheit.
Lassen Sie sich diese Gelegenheit nicht entgehen! Vereinbaren Sie noch heute einen Besichtigungstermin und erleben Sie selbst, wie Ihr neues Zuhause in Aschach an der Steyr aussieht. Ihre Traumwohnung wartet auf Sie!
Infrastruktur / Entfernungen
Gesundheit
Arzt <2.725m
Apotheke <2.775m
Klinik <3.225m
Krankenhaus <2.725m
Kinder & Schulen
Schule <1.425m
Kindergarten <1.225m
Universität <7.225m
Höhere Schule <6.675m
Nahversorgung
Supermarkt <1.825m
Bäckerei <1.200m
Einkaufszentrum <5.300m
Sonstige
Bank <1.425m
Geldautomat <1.425m
Post <1.350m
Polizei <2.550m
Verkehr
Bus <75m
Bahnhof <200m
Flughafen <4.575m
Angaben Entfernung Luftlinie / Quelle: OpenStreetMap
Eckdaten
| Kaufpreis: | 329.000,00 € |
| Fläche: | 74,33 m² |
| Zimmer: | 3 |
Basisdaten zur Immobilie
| Objektnr: | 4417/1630 |
| Art: | Wohnung |
| Land: | Österreich |
| Baujahr: | 2027 |
| Zustand: | Erstbezug |
| Alter: | Neubau |
| Kaufpreis: | 329.000,00 € |
| Wohnfläche: | 74,33 m² |
| Zimmer: | 3 |
| Bäder: | 1 |
| WC: | 1 |
| Stellplätze: | 1 |
| Keller: | 3,65 m² |
| Heizwärmebedarf: | B 44,60 kWh/m²a |
| fGEE: | A+ 0,75 |
Ausstattung
Parkett, Fliesen, Fußbodenheizung, Südbalkon, Dusche, Bad mit Fenster, Badewanne, Carport, Parkplatz, Wasch/Trockenraum
Internet und TV
Information zur Internet und TV Versorgung hier
Ihre persönliche Beratung
Bmstr. Georg Altmüller
NEUWOG Immobilientreuhand und Liegenschaftserrichtungs GmbH
info@neuwog.at
+43 7227 2005340
+43 676 3388238
