St. Georgen MITTE - ein Standort - viele Möglichkeiten
Wohnung
,
4880
St. Georgen im Attergau
,
Attergauer Straße
Lage der Immobilie
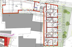
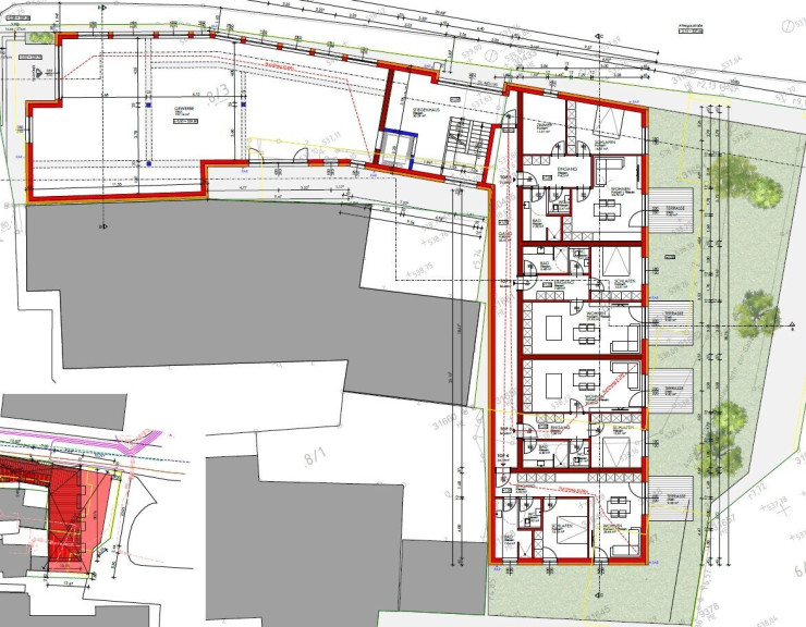
Wir, die Firma Neuwog errichten in Zusammenarbeit mit dem regionalen Partner Atticon in der Attergauer Straße Nr 13 und 15 in 4880 St. Georgen im Attergau eine Immobile in hervorragender Lage. Mitten im Zentrum nur wenige Gehminuten vom Bahnhof entfernt, genießen Sie eine optimale Anbindung an den öffentlichen Verkehr. Die Lage des Projektes besticht durch seine Nähe zum Attersee ( in 5 Autominuten erreichbar) und auch mit Ihrer sehr guten Autobahnanbindung nach Salzburg. Wir als Bauträger, sind bemüht in den Gewerbeflächen des Objektes Ärzte für eine optimale Gesundheitsvorsorge unterzubringen. Hier wohnen oder arbeiten Sie zentral und komfortabel!Beschreibung der Immobilie
Willkommen in Ihrem neuen Zuhause inmitten der malerischen Umgebung von St. Georgen im Attergau! Diese charmante Wohnung im 2. Obergeschoss bietet Ihnen nicht nur eine ausgezeichnete Lage, sondern auch modernen Wohnkomfort, den Sie sich schon immer gewünscht haben.
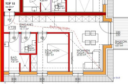
Mit einer großzügigen Fläche von 54,03 m² und zwei hellen Zimmern ist diese Immobilie der perfekte Ort für Singles, Paare oder kleine Familien. Der Erstbezug garantiert Ihnen ein frisches, unberührtes Wohngefühl, während Sie die Vorzüge des modernen Lebens genießen.
Der großzügige Südbalkon lädt dazu ein, die warmen Sonnenstrahlen zu genießen und entspannte Stunden im Freien zu verbringen. Stellen Sie sich vor, wie Sie an einem lauen Sommerabend mit einem Glas Wein auf Ihrer Terrasse sitzen und den Blick über die idyllische Umgebung schweifen lassen.
Die Wohnung ist mit hochwertigen Materialien ausgestattet. Edle Fliesen und Parkettböden sorgen für ein stilvolles Ambiente und eine angenehme Wohnatmosphäre. Das Badezimmer, ausgestattet mit einem Fenster und einer praktischen Dusche, bietet Ihnen den Komfort, den Sie verdienen. Ein zusätzlicher Wasch- und Trockenraum sorgt dafür, dass der Alltag noch einfacher wird.
Ein besonderes Highlight ist der Personenaufzug, der Ihnen den Zugang zur Wohnung erleichtert und für zusätzlichen Komfort sorgt. Ihre Fahrzeuge finden in der zugehörigen Garage einen sicheren Platz, sodass Sie sich um nichts weiter kümmern müssen.
Nutzen Sie die Gelegenheit, Teil dieser lebenswerten Gemeinde zu werden! Diese Wohnung in St. Georgen im Attergau ist nicht nur ein Ort zum Wohnen, sondern ein Ort, an dem Sie sich endlich zu Hause fühlen können. Lassen Sie sich von der Kombination aus modernem Wohnkomfort und der idyllischen Lage überzeugen und vereinbaren Sie noch heute einen Besichtigungstermin. Ihr neues Zuhause wartet auf Sie!
Hinweis gemäß Energieausweisvorlagegesetz: Ein Energieausweis wurde vom Eigentümer bzw. Verkäufer, nach unserer Aufklärung über die generell geltende Vorlagepflicht, sowie Aufforderung zu seiner Erstellung noch nicht vorgelegt. Daher gilt zumindest eine dem Alter und der Art des Gebäudes entsprechende Gesamtenergieeffizienz als vereinbart. Wir übernehmen keinerlei Gewähr oder Haftung für die tatsächliche Energieeffizienz der angebotenen Immobilie.
Infrastruktur / Entfernungen
Gesundheit
Arzt <475m
Apotheke <100m
Klinik <2.075m
Kinder & Schulen
Schule <325m
Kindergarten <425m
Nahversorgung
Supermarkt <250m
Bäckerei <700m
Sonstige
Bank <250m
Geldautomat <250m
Post <325m
Polizei <475m
Verkehr
Bus <225m
Bahnhof <300m
Autobahnanschluss <1.550m
Angaben Entfernung Luftlinie / Quelle: OpenStreetMap
Eckdaten
| Kaufpreis: | 280.000,00 € |
| Fläche: | 54,03 m² |
| Zimmer: | 2 |
Basisdaten zur Immobilie
| Objektnr: | 4417/1618 |
| Art: | Wohnung |
| Land: | Österreich |
| Zustand: | Erstbezug |
| Alter: | Neubau |
| Kaufpreis: | 280.000,00 € |
| Wohnfläche: | 54,03 m² |
| Grundstücksfl.: | 1.357,20 m² |
| Zimmer: | 2 |
| Bäder: | 1 |
| WC: | 1 |
| Balkone: | 1 |
| Keller: | 4,11 m² |
Ausstattung
Fliesen, Parkett, Personenaufzug, Südbalkon, Bad mit Fenster, Dusche, Garage, Wasch/Trockenraum
Internet und TV
Information zur Internet und TV Versorgung hier
Ihre persönliche Beratung
Bmstr. Georg Altmüller
NEUWOG Immobilientreuhand und Liegenschaftserrichtungs GmbH
info@neuwog.at
+43 7227 2005340
+43 676 3388238
