St. Georgen MITTE - ein Standort - viele Möglichkeiten
Wohnung
,
4880
St. Georgen im Attergau
,
Attergauer Straße
Lage der Immobilie
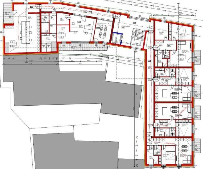
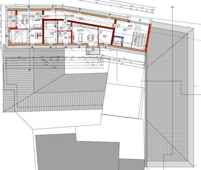
Wir, die Firma Neuwog errichten in Zusammenarbeit mit dem regionalen Partner Atticon in der Attergauer Straße Nr 13 und 15 in 4880 St. Georgen im Attergau eine Immobile in hervorragender Lage. Mitten im Zentrum nur wenige Gehminuten vom Bahnhof entfernt, genießen Sie eine optimale Anbindung an den öffentlichen Verkehr. Die Lage des Projektes besticht durch seine Nähe zum Attersee ( in 5 Autominuten erreichbar) und auch mit Ihrer sehr guten Autobahnanbindung nach Salzburg. Wir als Bauträger, sind bemüht in den Gewerbeflächen des Objektes Ärzte für eine optimale Gesundheitsvorsorge unterzubringen. Hier wohnen oder arbeiten Sie zentral und komfortabel!Beschreibung der Immobilie
Willkommen in Ihrem neuen Zuhause in der malerischen Gemeinde St. Georgen im Attergau, Oberösterreich! Diese charmante Wohnung im Erstbezug in der 2. Etage bietet Ihnen eine perfekte Kombination aus modernem Wohnkomfort und idyllischer Lage – ideal für Singles, Paare oder kleine Familien.
Mit einer großzügigen Fläche von 55,89 m² und zwei lichtdurchfluteten Zimmern ist diese Wohnung nicht nur funktional, sondern auch einladend. Der offene Grundriss sorgt für ein angenehmes Raumgefühl und ermöglicht Ihnen, Ihre individuellen Wohnideen zu verwirklichen. Der Balkon, der nach Süden ausgerichtet ist, lädt dazu ein, die Sonne und die frische Luft in vollen Zügen zu genießen – perfekt für entspannte Stunden im Freien.
Die hochwertige Ausstattung dieser Wohnung wird Sie begeistern. Elegant verlegte Fliesen und warmes Parkett sorgen für ein harmonisches Ambiente und eine angenehme Wohlfühlatmosphäre. Zudem ist die Wohnung mit modernen Annehmlichkeiten wie einer Dusche, einem Personenaufzug und einem praktischen Wasch- und Trockenraum ausgestattet. Für Ihre Fahrräder steht ein sicherer Fahrradraum zur Verfügung.
Hier haben Sie die Möglichkeit, in einer lebenswerten Umgebung zu wohnen, die nicht nur Ruhe und Erholung, sondern auch alle Annehmlichkeiten des täglichen Lebens bietet. Lassen Sie sich von der einzigartigen Kombination aus modernem Wohnkomfort und der Schönheit der Natur begeistern.
Nutzen Sie diese Chance und vereinbaren Sie einen Besichtigungstermin – Ihr neues Zuhause in St. Georgen im Attergau wartet auf Sie!
Hinweis gemäß Energieausweisvorlagegesetz: Ein Energieausweis wurde vom Eigentümer bzw. Verkäufer, nach unserer Aufklärung über die generell geltende Vorlagepflicht, sowie Aufforderung zu seiner Erstellung noch nicht vorgelegt. Daher gilt zumindest eine dem Alter und der Art des Gebäudes entsprechende Gesamtenergieeffizienz als vereinbart. Wir übernehmen keinerlei Gewähr oder Haftung für die tatsächliche Energieeffizienz der angebotenen Immobilie.
Infrastruktur / Entfernungen
Gesundheit
Arzt <475m
Apotheke <100m
Klinik <2.075m
Kinder & Schulen
Schule <325m
Kindergarten <425m
Nahversorgung
Supermarkt <250m
Bäckerei <700m
Sonstige
Bank <250m
Geldautomat <250m
Post <325m
Polizei <475m
Verkehr
Bus <225m
Bahnhof <300m
Autobahnanschluss <1.550m
Angaben Entfernung Luftlinie / Quelle: OpenStreetMap
Eckdaten
| Kaufpreis: | 270.000,00 € |
| Fläche: | 55,89 m² |
| Zimmer: | 2 |
Basisdaten zur Immobilie
| Objektnr: | 4417/1617 |
| Art: | Wohnung |
| Land: | Österreich |
| Zustand: | Erstbezug |
| Alter: | Neubau |
| Kaufpreis: | 270.000,00 € |
| Wohnfläche: | 55,89 m² |
| Zimmer: | 2 |
| Bäder: | 1 |
| WC: | 1 |
| Balkone: | 1 |
| Keller: | 4,48 m² |
Ausstattung
Fliesen, Parkett, Personenaufzug, Südbalkon, Dusche, Garage, Wasch/Trockenraum
Internet und TV
Information zur Internet und TV Versorgung hier
Ihre persönliche Beratung
Bmstr. Georg Altmüller
NEUWOG Immobilientreuhand und Liegenschaftserrichtungs GmbH
info@neuwog.at
+43 7227 2005340
+43 676 3388238
