St. Georgen MITTE - ein Standort - viele Möglichkeiten
Wohnung
,
4880
St. Georgen im Attergau
,
Attergauer Straße
Lage der Immobilie
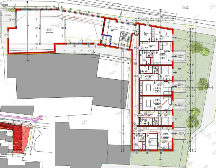
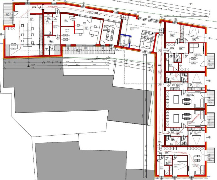
Wir, die Firma Neuwog errichten in Zusammenarbeit mit dem regionalen Partner Atticon in der Attergauer Straße Nr 13 und 15 in 4880 St. Georgen im Attergau eine Immobile in hervorragender Lage. Mitten im Zentrum nur wenige Gehminuten vom Bahnhof entfernt, genießen Sie eine optimale Anbindung an den öffentlichen Verkehr. Die Lage des Projektes besticht durch seine Nähe zum Attersee ( in 5 Autominuten erreichbar) und auch mit Ihrer sehr guten Autobahnanbindung nach Salzburg. Wir als Bauträger, sind bemüht in den Gewerbeflächen des Objektes Ärzte für eine optimale Gesundheitsvorsorge unterzubringen. Hier wohnen oder arbeiten Sie zentral und komfortabel!Beschreibung der Immobilie
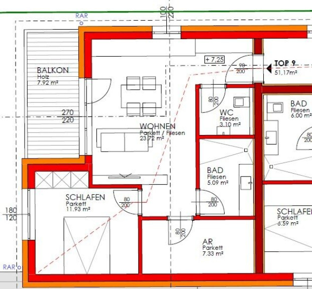
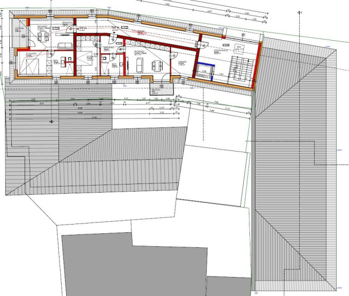
Willkommen in Ihrem neuen Zuhause in der malerischen Gemeinde St. Georgen im Attergau! Diese charmante 2-Zimmer-Wohnung in der 2. Etage bietet Ihnen nicht nur modernen Wohnkomfort, sondern auch eine hervorragende Lebensqualität in einer der schönsten Regionen Oberösterreichs.
Mit einer großzügigen Fläche von 51,17 m² ist diese Wohnung ideal für Singles, Paare oder kleine Familien. Der Erstbezug garantiert Ihnen, dass Sie in ein frisches, neues Zuhause einziehen, in dem alles auf Ihre Bedürfnisse abgestimmt ist.
Der lichtdurchflutete Wohnbereich lädt dazu ein, entspannte Abende zu verbringen oder Freunde zu bewirten. Die hochwertige Ausstattung mit Fliesen und Parkett sorgt für ein stilvolles Ambiente und ein angenehmes Wohngefühl. Der offene Grundriss ermöglicht Ihnen vielfältige Einrichtungsmöglichkeiten, sodass Sie Ihre persönliche Note einbringen können.
Ein besonderes Highlight dieser Wohnung ist der Nordwestbalkon, auf dem Sie nach einem langen Tag die Sonne genießen oder einfach nur die frische Luft und den Blick ins Grüne erleben können. Hier können Sie entspannen und die Ruhe der Umgebung auf sich wirken lassen.
Zusätzlich zur Wohnung profitieren Sie von einer Garage, die Ihnen nicht nur einen geschützten Stellplatz für Ihr Fahrzeug bietet, sondern auch zusätzlichen Stauraum. Ein Wasch- und Trockenraum sowie ein Fahrradraum stehen Ihnen ebenfalls zur Verfügung. Der moderne Personenaufzug macht den Zugang zu Ihrer Wohnung besonders komfortabel.
St. Georgen im Attergau ist nicht nur ein Ort mit einer ausgezeichneten Infrastruktur, sondern auch ein Platz, der durch seine natürliche Schönheit und die Nähe zum Attersee besticht. Genießen Sie die vielfältigen Freizeitmöglichkeiten in der Region, sei es beim Wandern, Radfahren oder Schwimmen im kühlen Nass.
Zusammenfassend lässt sich sagen, dass diese Wohnung in St. Georgen im Attergau nicht nur ein Ort zum Wohnen, sondern ein Ort zum Leben ist. Lassen Sie sich diese einmalige Gelegenheit nicht entgehen und vereinbaren Sie noch heute einen Besichtigungstermin. Ihr neues Zuhause wartet auf Sie!
Hinweis gemäß Energieausweisvorlagegesetz: Ein Energieausweis wurde vom Eigentümer bzw. Verkäufer, nach unserer Aufklärung über die generell geltende Vorlagepflicht, sowie Aufforderung zu seiner Erstellung noch nicht vorgelegt. Daher gilt zumindest eine dem Alter und der Art des Gebäudes entsprechende Gesamtenergieeffizienz als vereinbart. Wir übernehmen keinerlei Gewähr oder Haftung für die tatsächliche Energieeffizienz der angebotenen Immobilie.
Infrastruktur / Entfernungen
Gesundheit
Arzt <475m
Apotheke <100m
Klinik <2.075m
Kinder & Schulen
Schule <325m
Kindergarten <425m
Nahversorgung
Supermarkt <250m
Bäckerei <700m
Sonstige
Bank <250m
Geldautomat <250m
Post <325m
Polizei <475m
Verkehr
Bus <225m
Bahnhof <300m
Autobahnanschluss <1.550m
Angaben Entfernung Luftlinie / Quelle: OpenStreetMap
Eckdaten
| Kaufpreis: | 240.000,00 € |
| Fläche: | 51,17 m² |
| Zimmer: | 2,50 |
Basisdaten zur Immobilie
| Objektnr: | 4417/1612 |
| Art: | Wohnung |
| Land: | Österreich |
| Zustand: | Erstbezug |
| Alter: | Neubau |
| Kaufpreis: | 240.000,00 € |
| Wohnfläche: | 51,17 m² |
| Grundstücksfl.: | 1.357,20 m² |
| Zimmer: | 2,50 |
| Bäder: | 1 |
| WC: | 1 |
| Balkone: | 1 |
| Keller: | 3,25 m² |
Ausstattung
Fliesen, Parkett, Personenaufzug, Dusche, Garage, Wasch/Trockenraum
Internet und TV
Information zur Internet und TV Versorgung hier
Ihre persönliche Beratung
Bmstr. Georg Altmüller
NEUWOG Immobilientreuhand und Liegenschaftserrichtungs GmbH
info@neuwog.at
+43 7227 2005340
+43 676 3388238
