St. Georgen MITTE - ein Standort - viele Möglichkeiten
Wohnung
,
4880
St. Georgen im Attergau
,
Attergauer Straße
Lage der Immobilie
Wir, die Firma Neuwog errichten in Zusammenarbeit mit dem regionalen Partner Atticon in der Attergauer Straße Nr 13 und 15 in 4880 St. Georgen im Attergau eine Immobile in hervorragender Lage. Mitten im Zentrum nur wenige Gehminuten vom Bahnhof entfernt, genießen Sie eine optimale Anbindung an den öffentlichen Verkehr. Die Lage des Projektes besticht durch seine Nähe zum Attersee ( in 5 Autominuten erreichbar) und auch mit Ihrer sehr guten Autobahnanbindung nach Salzburg. Wir als Bauträger, sind bemüht in den Gewerbeflächen des Objektes Ärzte für eine optimale Gesundheitsvorsorge unterzubringen. Hier wohnen oder arbeiten Sie zentral und komfortabel!Beschreibung der Immobilie
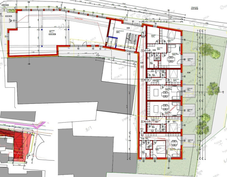
Willkommen in Ihrem neuen Zuhause in 4880 St. Georgen im Attergau, Oberösterreich! Diese traumhafte 2-Zimmer-Wohnung im Erstbezug bietet Ihnen nicht nur ein modernes Wohnambiente, sondern auch die Möglichkeit, Ihre individuelle Lebensqualität zu gestalten.
Mit einer großzügigen Fläche von 55,63 m² erwartet Sie eine durchdachte Raumaufteilung, die sowohl Funktionalität als auch Gemütlichkeit vereint. Die Wohnung befindet sich in der 1. Etage und besticht durch einen hellen, einladenden Wohnbereich, der Ihnen viel Raum für Ihre persönlichen Gestaltungsideen lässt.
Ein Highlight dieser Immobilie ist der charmante Südbalkon, auf dem Sie sonnige Stunden genießen und den Blick auf die umliegende Natur schweifen lassen können. Hier können Sie entspannen, Ihre Freizeit im Freien verbringen oder einfach die Seele baumeln lassen.
Die hochwertige Ausstattung mit Fliesen und Parkett sorgt dafür, dass Sie sich gleich wohlfühlen. In der modernen Küche können Sie kulinarische Köstlichkeiten zaubern und die gesellige Atmosphäre mit Freunden und Familie genießen. Das Badezimmer ist mit einer praktischen Dusche ausgestattet, die Ihnen den täglichen Komfort bietet, den Sie verdienen.
Ein weiterer Pluspunkt dieser Wohnung ist die Garage, die Ihnen nicht nur einen sicheren Stellplatz für Ihr Fahrzeug bietet, sondern auch zusätzlichen Stauraum. Für Fahrräder steht ein separater Fahrradraum zur Verfügung, sodass Sie auch in Ihrer Freizeit mobil bleiben können.
Die Liegenschaft ist optimal an das öffentliche Verkehrsnetz angebunden. In unmittelbarer Nähe finden Sie Haltestellen für Bus und Bahn, sodass Sie schnell und unkompliziert in die umliegenden Städte gelangen.
Ihr Traum vom Eigenheim wird hier Wirklichkeit – vereinbaren Sie noch heute einen Besichtigungstermin und entdecken Sie die Vorzüge dieser wunderbaren Immobilie!
Hinweis gemäß Energieausweisvorlagegesetz: Ein Energieausweis wurde vom Eigentümer bzw. Verkäufer, nach unserer Aufklärung über die generell geltende Vorlagepflicht, sowie Aufforderung zu seiner Erstellung noch nicht vorgelegt. Daher gilt zumindest eine dem Alter und der Art des Gebäudes entsprechende Gesamtenergieeffizienz als vereinbart. Wir übernehmen keinerlei Gewähr oder Haftung für die tatsächliche Energieeffizienz der angebotenen Immobilie.
Infrastruktur / Entfernungen
Gesundheit
Arzt <475m
Apotheke <100m
Klinik <2.075m
Kinder & Schulen
Schule <325m
Kindergarten <425m
Nahversorgung
Supermarkt <250m
Bäckerei <700m
Sonstige
Bank <250m
Geldautomat <250m
Post <325m
Polizei <475m
Verkehr
Bus <225m
Bahnhof <300m
Autobahnanschluss <1.550m
Angaben Entfernung Luftlinie / Quelle: OpenStreetMap
Eckdaten
| Kaufpreis: | 260.000,00 € |
| Fläche: | 55,63 m² |
| Zimmer: | 2 |
Basisdaten zur Immobilie
| Objektnr: | 4417/1610 |
| Art: | Wohnung |
| Land: | Österreich |
| Zustand: | Erstbezug |
| Alter: | Neubau |
| Kaufpreis: | 260.000,00 € |
| Wohnfläche: | 55,63 m² |
| Grundstücksfl.: | 1.357,20 m² |
| Zimmer: | 2 |
| Bäder: | 1 |
| WC: | 1 |
| Balkone: | 1 |
| Keller: | 3,25 m² |
Ausstattung
Parkett, Fliesen, Personenaufzug, Südbalkon, Dusche, Garage, Wasch/Trockenraum
Internet und TV
Information zur Internet und TV Versorgung hier
Ihre persönliche Beratung
Bmstr. Georg Altmüller
NEUWOG Immobilientreuhand und Liegenschaftserrichtungs GmbH
info@neuwog.at
+43 7227 2005340
+43 676 3388238
