Lage der Immobilie
Diese schöne Wohnung in 4020 Linz besticht durch ihre zentrale Lage mit bester Infrastruktur. Arzt, Apotheke, Klinik und Krankenhaus sind schnell erreichbar. Kindergarten, Schulen, Universität und Höhere Schulen befinden sich in unmittelbarer Nähe. Supermärkte, Bäckerei, Einkaufszentrum, Bank, Post und Polizei sind bequem zu Fuß erreichbar. Öffentliche Verkehrsmittel wie Bus, Straßenbahn und Bahnhof garantieren optimale Anbindung. Ideal für urbanes Wohnen mit allem Komfort.Beschreibung der Immobilie
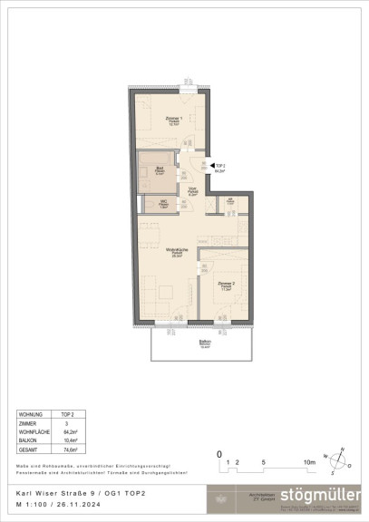
Willkommen in Ihrem neuen Zuhause im Herzen von Linz! Diese attraktive Wohnung befindet sich in der begehrten 1. Etage eines gepflegten Mehrfamilienhauses in der beliebten Adresse 4020 Linz. Mit einer Gesamtfläche von 64,2 m² bietet diese Wohnung ausreichend Platz für Singles, Paare oder kleine Familien, die Wert auf Komfort und eine zentrale Lage legen.
Die Wohnung verfügt über drei gut geschnittene Zimmer, die Ihnen vielseitige Gestaltungsmöglichkeiten bieten – ob als Wohnzimmer, Schlafzimmer oder Arbeitsbereich. Ein besonderes Highlight ist der Balkon, der Ihnen einen angenehmen Rückzugsort im Freien bietet, ideal für entspannte Stunden an der frischen Luft oder gesellige Abende mit Freunden.
Die Lage überzeugt durch eine hervorragende Verkehrsanbindung: Bus, Straßenbahn und Bahnhof sind in unmittelbarer Nähe und ermöglichen Ihnen eine schnelle und bequeme Mobilität, egal ob für den Arbeitsweg oder Freizeitaktivitäten.
Die Infrastruktur rund um die Wohnung lässt keine Wünsche offen. In direkter Umgebung finden Sie alles, was Sie zum täglichen Leben benötigen: Ärzte, Apotheke, Klinik und Krankenhaus sorgen für Ihre gesundheitliche Versorgung. Für Familien mit Kindern sind Kindergarten, Schule, höhere Schule und Universität bestens erreichbar. Einkaufsmöglichkeiten wie Supermärkte, Bäckereien und ein Einkaufszentrum liegen ebenfalls praktisch vor der Haustür und erleichtern Ihren Alltag erheblich.
Nutzen Sie die Chance, in einer der lebenswertesten Städte Österreichs zu wohnen und genießen Sie den Komfort und die Lebensqualität, die diese Wohnung bietet.
Der dazugehörige Parplatz wird zusätzlich mit monatlich Euro 168,18 zzgl. 20 % Ust vorgeschrieben.
Vereinbaren Sie noch heute einen Besichtigungstermin und lassen Sie sich von dieser wunderbaren Wohnung in Linz begeistern! Ihr neues Zuhause wartet auf Sie.
Wir weisen darauf hin, dass zwischen dem Vermittler und dem zu vermittelnden Dritten ein familiäres oder wirtschaftliches Naheverhältnis besteht.
Der Immobilienmakler erklärt, dass er – entgegen dem in der Immobilienwirtschaft üblichen Geschäftsgebrauch des Doppelmaklers – einseitig nur für den Vermieter tätig ist.
Infrastruktur / Entfernungen
Gesundheit
Arzt <175m
Apotheke <125m
Klinik <400m
Krankenhaus <350m
Kinder & Schulen
Kindergarten <300m
Schule <225m
Universität <900m
Höhere Schule <850m
Nahversorgung
Supermarkt <150m
Bäckerei <125m
Einkaufszentrum <700m
Sonstige
Bank <150m
Geldautomat <150m
Post <450m
Polizei <675m
Verkehr
Bus <100m
Straßenbahn <300m
Bahnhof <500m
Autobahnanschluss <1.775m
Flughafen <3.450m
Angaben Entfernung Luftlinie / Quelle: OpenStreetMap
Eckdaten
| Gesamtmiete: | 1.176,37 € |
| Fläche: | 64,20 m² |
| Zimmer: | 3 |
Basisdaten zur Immobilie
| Objektnr: | 1937/7646051 |
| Art: | Wohnung |
| Land: | Österreich |
| Gesamtmiete: | 1.176,37 € |
| Kaltmiete (netto): | 834,60 € |
| Kaltmiete: | 1.069,43 € |
| Provision: | Gemäß Erstauftraggeberprinzip bezahlt der Abgeber die Provision. |
| Betriebskosten: | 234,83 € |
| MwSt Gesamt: | 106,94 € |
| Wohnfläche: | 64,20 m² |
| Zimmer: | 3 |
| Bäder: | 1 |
| WC: | 1 |
| Balkone: | 1 |
| Stellplätze: | 1 |
Internet und TV
Information zur Internet und TV Versorgung hier
Ihre persönliche Beratung
Christa Sinzinger
AREV Immobilien GmbH
christa.sinzinger@arev.at
+43 732 605533 361
+43 664 8185361
