Repräsentatives Zinshaus in ruhiger & zentraler Lage von 1050 Wien - BESTANDSFREI!
Zinshaus Renditeobjekt
,
1050
Wien
Beschreibung der Immobilie
Zum Verkauf gelangt ein parifiziertes Zinshaus aufgeteilt auf zwei Stiegen mit derzeit insgesamt 39 Einheiten. Bis auf eine Dachgeschosswohnung, die im Zuge des Verkaufes aufgegeben werden kann, sind die Einheiten unvermietet/unbewohnt.
Bauklasse III (max. 14 m) geschlossene Bauweise, Wohnzone, Innenhof gärtnerisch auszugestalten.
Die Liegenschaft ist voll aufgeschlossen, alle Ver- und Entsorgungsleitungen sind vorhanden (Strom, Gas, Wasser, Abwasser).
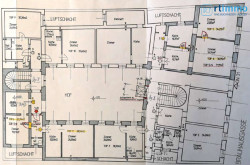
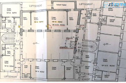
Die Liegenschaft ist mit einem Gründerzeithaus (Zinshaus) der Jahrhundertwende des vorigen Jahrhunderts bebaut. Das Gebäude ist über 2 Stiegen erschlossen und rund um
einen Innenhof angeordnet. Der Straßenzugang erfolgt ausschließlich über die Bräuhausgasse. Das Haus verfügt über ein Kellergeschoß, 3 Obergeschoße und ein
Dachgeschoß. Das Dachgeschoß wurde im Jahr 1992 ausgebaut. Es sind aktuell, unter Berücksichtigung der zusammengelegten Wohnungen, 39 Einheiten im Haus
untergebracht. Die Pläne entsprechen, auf Grund von Zusammenlegungen, nicht exakt dem Bestand.
Kurzbeschreibung
- Wohnhaus
- Massivbauweise, verputzt
- Zwischenwände aus Beton, Ziegel oder Gipsständerwände
- Unterkellert
- Ziegeldacheindeckung
- Erdgeschoss, drei Obergeschosse und ausgebautes Dachgeschoss
- Versorgungsleitungen wie Wasser-, Gas, Elektroleitungen vorhanden.
- Fenster: tw. Holz und tw. Kunststofffenster
- dzt. Kein Personenlift vorhanden
Laut Kostenschätzung sieht eine vollwertige Sanierung des Zinshauses und aller Einheiten ca. mit 4,4 Mio € inkl. MwSt. inkl. Kostentrichter vor, der anschließende Abverkauf aller Einheiten bei einem durchschnittlichen Verkaufspreis von ca. 6.700€/m² erwirtschaften.
Das Objekt ist bestandsfrei.
Wir wurden für die Vermarktung vom Insolvenzverwalter beauftragt.
Wir weisen darauf hin, dass zwischen dem Vermittler und dem zu vermittelnden Dritten ein familiäres oder wirtschaftliches Naheverhältnis besteht.
Der Vermittler ist als Doppelmakler tätig.
BITTE HABEN SIE DAFÜR VERSTÄNDNIS, DASS WIR NUR VOLLSTÄNDIG AUSGEFÜLLTE ANFRAGEN (NAME, PLZ, ANSCHRIFT, TEL.NR.) BEARBEITEN KÖNNEN!
Infrastruktur / Entfernungen
Gesundheit
Arzt <500m
Apotheke <500m
Klinik <500m
Krankenhaus <1.000m
Kinder & Schulen
Schule <500m
Kindergarten <500m
Universität <1.000m
Höhere Schule <1.000m
Nahversorgung
Supermarkt <500m
Bäckerei <500m
Einkaufszentrum <1.000m
Sonstige
Geldautomat <500m
Bank <500m
Post <500m
Polizei <500m
Verkehr
Bus <500m
U-Bahn <500m
Straßenbahn <1.000m
Bahnhof <500m
Autobahnanschluss <4.000m
Angaben Entfernung Luftlinie / Quelle: OpenStreetMap
Eckdaten
| Kaufpreis: | 6.240.000,00 € |
| Fläche: | 1.974,00 m² |
Basisdaten zur Immobilie
| Objektnr: | 4621 |
| Art: | Zinshaus Renditeobjekt |
| Land: | Österreich |
| Zustand: | Sanierungsbeduerftig |
| Alter: | Altbau |
| Kaufpreis: | 6.240.000,00 € |
| Kaufpreis / m²: | auf Anfrage |
| Provision: | 3% des Kaufpreises zzgl. 20% USt. |
| Nutzfläche: | 1.974,00 m² |
| Grundstücksfl.: | 769,00 m² |
Internet und TV
Information zur Internet und TV Versorgung hier
Ihre persönliche Beratung
Mag. Wolfgang Buchwieser
RT Immobilien Mag. Buchwieser & Kofler GmbH
buchwieser@rtimmo.at
+43 1 470 39 55
+43 660 651 38 29
F +43 1 470 39 55 89
