Sanierte Wohnung in Feldkirchen – provisionsfrei, modern & haustierfreundlich
Wohnung
,
8073
Feldkirchen bei Graz
,
Warnhauserstraße 36
Beschreibung der Immobilie
Suchen Sie nach einer pflegeleichten Erstbezug-Wohnung mit einem ausgezeichneten Raumkonzept?
Diese kürzlich komplett sanierte, sofort beziehbare 2-Zimmer-Wohnung befindet sich im 2. Stockwerk eines gepflegten Wohnhauses nahe der Grazer Stadtgrenze, welches im Jahr 1993 umfassend saniert und modernisiert wurde. Durch die ausgezeichnete Raumaufteilung und die großzügige, begrünte Wohnanlage ist diese helle Erstbezug-Wohnung ideal für Paare oder Singles, die bei der Wahl des Wohnraums auf Qualität legen.
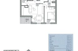
Die ca. 57,86 m² große Wohnung besticht durch die Möglichkeit, den Wohnbereich vom Schlafbereich zu trennen. Über den Vorraum (ca. 3,37 m²) sind das Wohnzimmer (ca. 24,81 m²) und das WC (ca. 2,47 m²) zugänglich. Von dem großzügigen Wohnzimmer aus haben Sie dann den Zugang auf den Balkon (ca. 4,57 m²) und in die Küche (ca. 5,79 m²). Anschließend gelangen Sie das Schlafzimmer (ca. 11,77 m²) und das Badezimmer (ca. 4,08 m²) über einen separaten Gang (ca. 3,25 m²), sodass Ihre Privatsphäre gut geschützt wird, wenn Sie Besuch bekommen. Ein Abstellraum (ca. 2,32 m²) rundet das Raumangebot ab.
Das vom WC getrennte Badezimmer ist mit einer Badewanne ausgestattet und lädt zum Entspannen und Abschalten ein. Außerdem bietet das Badezimmer ausreichend Platz und die Anschlüsse für die Waschmaschine. Weiters sind die neuwertige, voll ausgestattete Einbauküche und ein der Wohnung zugeordneter Parkplatz der im Kaufpreis inbegriffen ist.
LAGE und INFRASTRUKTUR:
Durch die absolute Nähe zu Graz und die zentrale Lage in Feldkirchen bei Graz steht Ihnen hier die ganze Infrastruktur, die die Stadt und die Marktgemeinde anzubieten haben, zur Verfügung. Dennoch genießen Sie hier dank großzügiger Grün- und Freifläche der Siedlung viel Lebensraum.
In der unmittelbaren Nähe finden Sie alles, was Sie für den täglichen Bedarf benötigen. Supermärkte, Bäckerei und Einrichtungen für medizinische Versorgung sind nur einige Beispiele für die vielfältigen Einkaufsmöglichkeiten und Dienstleistungen in der Umgebung. Auch für Familien mit Kindern ist die Lage ideal, da sich in fußläufiger Nähe mehrere Schulen und Kindergärten befinden.
Die Lage der Wohnung ist ideal für Sie, wenn Sie
- nicht unbedingt vom Auto abhängig sein wollen und eine gute Verkehrsanbindung schätzen: Eine Bushaltestelle befindet sich in fußläufiger Nähe und der Autobahnanschluss ist nur wenige Minuten entfernt. Auch der Bahnhof Feldkirchen-Seiersberg ist in kurzer Zeit zu erreichen, sodass Sie auch ohne Auto flexibel unterwegs sein können.
- von der Infrastruktur der Stadt Graz und der Gemeinde Feldkirchen bei Graz profitieren möchten: Die Grazer Stadtgrenze befindet sich in nur 550 Meter Entfernung. Grazer Bezirke Liebenau und Puntigam sind fußläufig bzw. mit dem Fahrrad bequem zu erreichen. Auch das beliebte Einkaufszentrum Shoppingcity Seiersberg ist nur 3,5 km entfernt und bietet das beste Einkaufserlebnis offen.
- in einer Wohngegend mit viel Grün- und Freifläche und in der Nähe vom Naherholungsgebiet leben wollen: In der Siedlung stehen großzügige Freiflächen und ein Kinderspielplatz zur Verfügung. Mehrere Parkanlagen der Gemeinde Feldkirchen, das Grazer Naherholungsgebiet Auwiesen und der Golfclub Graz MurAuen sorgen für gute Erholung und vielfältige Freizeitgestaltung.
Überzeugen Sie sich selbst von dieser einzigartigen Wohnung und vereinbaren Sie noch heute einen Besichtigungstermin. Wir freuen uns darauf, Ihnen Ihr neues Zuhause zeigen zu dürfen!
Die Wohnung wird ohne Möbel, jedoch mit Küche verkauft. Ideal für Singles, Paare oder Hundebesitzer, die sich ein individuelles Zuhause schaffen möchten.
Wir weisen darauf hin, dass zwischen dem Vermittler und dem zu vermittelnden Dritten ein familiäres oder wirtschaftliches Naheverhältnis besteht.
Der Vermittler ist als Doppelmakler tätig.
Infrastruktur / Entfernungen
Gesundheit
Arzt <650m
Apotheke <625m
Klinik <5.775m
Krankenhaus <3.700m
Kinder & Schulen
Schule <500m
Kindergarten <1.525m
Universität <4.925m
Höhere Schule <5.600m
Nahversorgung
Supermarkt <700m
Bäckerei <600m
Einkaufszentrum <2.100m
Sonstige
Geldautomat <600m
Bank <600m
Post <650m
Polizei <650m
Verkehr
Bus <300m
Straßenbahn <2.475m
Autobahnanschluss <825m
Bahnhof <825m
Flughafen <2.950m
Angaben Entfernung Luftlinie / Quelle: OpenStreetMap
Eckdaten
| Kaufpreis: | 168.000,00 € |
| Fläche: | 57,86 m² |
| Zimmer: | 2 |
Basisdaten zur Immobilie
| Objektnr: | 6133/620 |
| Art: | Wohnung |
| Land: | Österreich |
| Zustand: | Erstbezug |
| Kaufpreis: | 168.000,00 € |
| Betriebskosten: | 143,49 € |
| MwSt Gesamt: | 14,35 € |
| Wohnfläche: | 57,86 m² |
| Zimmer: | 2 |
| Bäder: | 1 |
| WC: | 1 |
| Balkone: | 1 |
| Stellplätze: | 1 |
| Heizwärmebedarf: | C 93,60 kWh/m²a |
| fGEE: | C 1,31 |
Ausstattung
Fliesen, Parkett, Fernwärme, Zentralheizung, Einbauküche, Badewanne, Parkplatz
Internet und TV
Information zur Internet und TV Versorgung hier
Ihre persönliche Beratung
Michaela Schweiger
Wesiak GmbH
michaela.schweiger@wesiak.com
+43 664 5414047
