Ihr Wohntraum in Ohlsdorf (Top 12) - „Picknick am Bauplatz“ am 10.April
Wohnung
,
4694
Ohlsdorf
Beschreibung der Immobilie
Zentral. Zeitgemäß. Zuhause. – 12 Neubauwohnungen in Ohlsdorf, Angerweg 2
Einladung zum „Picknick am Bauplatz“
Bevor die Bagger rollen und das Fundament für Ihr neues Zuhause in Ohlsdorf gelegt wird, laden wir Sie herzlich zu einem Infotag ein. Besuchen Sie uns direkt auf der grünen Wiese – dort, wo bald modernes Wohnen entsteht.
- WANN: Freitag, 10. April 2026
- ZEIT: 15:00 bis 17:00 Uhr
- WO: Bauplatz-Wiese (Zufahrt über den Angerweg 2, 4694 Ohlsdorf)
Wir sind persönlich für Sie da: Haben Sie Fragen zum Projekt, zu den Grundrissen oder zum Bauablauf? Wir beantworten sie Ihnen gerne am 10.4. direkt vor Ort in ungezwungener Atmosphäre.
Zur Wohnung:
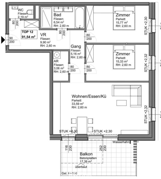
Top 12 bietet eine großzügige 3-Zimmer-Wohnung mit einem geräumigen Wohnbereich und einem schönen Balkon, der zusätzlichen Platz im Freien schafft. Die großzügigen Schlafzimmer bieten viel Komfort, während das Badezimmer sowohl mit einer Dusche als auch einer Badewanne ausgestattet ist – perfekt für Entspannung und Wohlfühlen. Diese Wohnung kombiniert viel Raum mit hochwertiger Ausstattung und idealer Wohnatmosphäre.
Zum Projekt:
Wer zeitgemäßes Wohnen in Gehweite zum Ohlsdorfer Zentrum sucht, wird am Angerweg fündig. Das Projekt umfasst 12 hochwertige Wohnungen, die durch ihre intelligente Raumaufteilung und die ruhige, aber dennoch zentrale Lage überzeugen. Ein ideales Zuhause für alle, die kurze Wege im Alltag lieben.
Was Sie erwartet:
• Zentrale Lage: In wenigen Gehminuten mitten im Ortskern – Einkauf, Schule, Nahversorger direkt ums Eck
• Moderne Ausstattung: Edle Parkettböden, stilvolle Fliesen
• Fußbodenheizung & energieeffiziente Luftwärmepumpe
• Wohnkomfort für jeden Anspruch: Von 42 m² bis 110 m² – ideal für Singles, Paare oder Familien
• Großzügige Terrassen oder Eigengärten für entspannte Stunden im Grünen
• Komfortabel & barrierefrei: Lift in alle Etagen, Tiefgarage für stressfreies Parken
• Gestaltungsfreiraum: Jetzt noch mitplanen und Ihre Wünsche einbringen
• Baustart bei 50 % Verkaufsquote – jetzt vor Baustart sichern und noch mitgestalten!
Lebenswert wohnen – mitten in Ohlsdorf
Wohnen Sie naturnah und dennoch bestens angebunden: Die Autobahn erreichen Sie in wenigen Minuten, Erholung bieten Traunsee, Traunstein und zahlreiche Freizeitangebote der Region.
Direkt vom Bauträger – provisionsfrei für Käufer
Jetzt informieren und Wohntraum sichern:
📞 Persönlich berät Sie Sabine Wenzel (0676 300 40 62) und Christian Sammer (0650 31 71 003)
🌐 Alle Details unter: www.angerweg-zwei.at
Zuhause ankommen. Im Herzen von Ohlsdorf.
Infrastruktur / Entfernungen
Gesundheit
Arzt <500m
Apotheke <2.500m
Krankenhaus <5.500m
Klinik <3.000m
Kinder & Schulen
Schule <500m
Kindergarten <500m
Nahversorgung
Supermarkt <500m
Bäckerei <500m
Einkaufszentrum <4.500m
Sonstige
Bank <500m
Geldautomat <500m
Post <500m
Polizei <3.000m
Verkehr
Bus <500m
Straßenbahn <4.500m
Bahnhof <4.000m
Autobahnanschluss <4.000m
Flughafen <5.500m
Angaben Entfernung Luftlinie / Quelle: OpenStreetMap
Eckdaten
| Kaufpreis: | 454.960,00 € |
| Fläche: | 91,54 m² |
| Zimmer: | 3 |
Basisdaten zur Immobilie
| Objektnr: | 1068/4967 |
| Art: | Wohnung |
| Land: | Österreich |
| Baujahr: | 2025 |
| Zustand: | Erstbezug |
| Kaufpreis: | 454.960,00 € |
| Wohnfläche: | 91,54 m² |
| Zimmer: | 3 |
| Bäder: | 1 |
| WC: | 1 |
| Balkone: | 1 |
| Keller: | 3,45 m² |
| Heizwärmebedarf: | 40,00 kWh/m²a |
Ausstattung
Erdwärme, Personenaufzug
Internet und TV
Information zur Internet und TV Versorgung hier
Ihre persönliche Beratung
Christian Sammer
Traunsee Immobilien
c.sammer@remax-traunsee.at
+43 7612 89 232
+43 650 31 71 003
F +43 7612 89 232-30
