Anlegerwohnung im Neubauprojekt (Top 12) - „Picknick am Bauplatz“ am 10. April
Wohnung
,
4694
Ohlsdorf
Beschreibung der Immobilie
Zentral. Zeitgemäß. Zuhause. – 12 Neubauwohnungen in Ohlsdorf, Angerweg 2
Einladung zum „Picknick am Bauplatz“
Bevor die Bagger rollen und das Fundament für Ihr neues Zuhause in Ohlsdorf gelegt wird, laden wir Sie herzlich zu einem Infotag ein. Besuchen Sie uns direkt auf der grünen Wiese – dort, wo bald modernes Wohnen entsteht.
- WANN: Freitag, 10. April 2026
- ZEIT: 15:00 bis 17:00 Uhr
- WO: Bauplatz-Wiese (Zufahrt über den Angerweg 2, 4694 Ohlsdorf)
Wir sind persönlich für Sie da: Haben Sie Fragen zum Projekt, zu den Grundrissen oder zum Bauablauf? Wir beantworten sie Ihnen gerne am 10.4. direkt vor Ort in ungezwungener Atmosphäre.
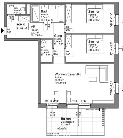
Top 12 bietet eine großzügige 3-Zimmer-Wohnung mit einem geräumigen Wohnbereich und einem schönen Balkon, der zusätzlichen Platz im Freien schafft. Die großzügigen Schlafzimmer bieten viel Komfort, während das Badezimmer sowohl mit einer Dusche als auch einer Badewanne ausgestattet ist – perfekt für Entspannung und Wohlfühlen. Diese Wohnung kombiniert viel Raum mit hochwertiger Ausstattung und idealer Wohnatmosphäre.
Kaufpreis netto: € 398.405,92
zuzüglich 20 % Ust = € 478.087,10
Kaufpreis für Eigennutzer: € 454.960,00
Attraktive Anlegerwohnungen in Ohlsdorf – Ihr Investment mit kostenloser Erstvermietung
Sichern Sie sich eine von 12 Wohnungen in bester Lage von Ohlsdorf am Angerweg! Diese hochwertigen Wohneinheiten mit Wohnflächen von 42 m² bis 110 m² bieten nicht nur erstklassige Ausstattung, sondern auch eine perfekte Investitionsmöglichkeit.
Ihr Investment-Vorteil:
🔹 Kostenlose Erstvermietung auf Wunsch – sorgenfreier Start für Anleger
🔹 Nettopreise zzgl. 20 % USt. – ideal für umsatzsteuerpflichtige Käufer
🔹 Hohe Wohn- und Vermietungsqualität – durchdachte Raumaufteilung und moderne Ausstattung
Attraktive Features für Mieter & Kapitalanleger:
✔ Großzügige Terrassen oder Eigengärten für höchsten Wohnkomfort
✔ Energieeffiziente Luftwärmepumpe & Fußbodenheizung für geringe Betriebskosten
✔ Barrierefreier Zugang mit Lift für nachhaltige Vermietbarkeit
✔ Tiefgaragenplätze für stressfreies Parken
✔ Schöne Parkettböden & stilvolle Fliesen – wertige Materialien für langfristige Qualität
✔ Individuelle Planung noch möglich – gestalten Sie nach Ihren Anforderungen
Perfekte Lage für stabile Mieteinnahmen:
📍 Zentrale & ruhige Wohnsiedlung – wenige Gehminuten ins Ortszentrum
🛍 Top-Infrastruktur – Nahversorger, Einkaufsmöglichkeiten & Schulen in direkter Umgebung
🌿 Freizeitparadies – Nähe zu Traunsee, Traunstein & zahlreichen Erholungsgebieten
🚗 Beste Verkehrsanbindung – schnelle Erreichbarkeit durch Autobahnnähe
🔑 Jetzt provisionsfrei direkt vom Bauträger investieren!
Nutzen Sie diese Gelegenheit für ein sicheres & wertbeständiges Immobilieninvestment. Kontaktieren Sie uns für weitere Informationen oder einen Beratungstermin.
Besuchen Sie unsere Projektseite und erfahren Sie mehr: www.angerweg-zwei.at
Infrastruktur / Entfernungen
Gesundheit
Arzt <500m
Apotheke <2.500m
Krankenhaus <5.500m
Klinik <3.000m
Kinder & Schulen
Schule <500m
Kindergarten <500m
Nahversorgung
Supermarkt <500m
Bäckerei <500m
Einkaufszentrum <4.500m
Sonstige
Bank <500m
Geldautomat <500m
Post <500m
Polizei <3.000m
Verkehr
Bus <500m
Straßenbahn <4.500m
Bahnhof <4.000m
Autobahnanschluss <4.000m
Flughafen <5.500m
Angaben Entfernung Luftlinie / Quelle: OpenStreetMap
Eckdaten
| Kaufpreis: | 398.405,92 € |
| Fläche: | 91,54 m² |
| Zimmer: | 3 |
Basisdaten zur Immobilie
| Objektnr: | 1068/4968 |
| Art: | Wohnung |
| Land: | Österreich |
| Baujahr: | 2025 |
| Zustand: | Erstbezug |
| Kaufpreis: | 398.405,92 € |
| Wohnfläche: | 91,54 m² |
| Zimmer: | 3 |
| Bäder: | 1 |
| WC: | 1 |
| Balkone: | 1 |
| Keller: | 3,45 m² |
| Heizwärmebedarf: | 40,00 kWh/m²a |
Ausstattung
Erdwärme, Personenaufzug
Internet und TV
Information zur Internet und TV Versorgung hier
Ihre persönliche Beratung
Christian Sammer
Traunsee Immobilien
c.sammer@remax-traunsee.at
+43 7612 89 232
+43 650 31 71 003
F +43 7612 89 232-30
