Viel Raum für Ideen – Ihr Zuhause wartet!
Haus
- Einfamilienhaus,
4694
Ohlsdorf
Beschreibung der Immobilie
Das Gebäude wurde ursprünglich zirka um das Jahr 1904 errichtet und in den 1970er Jahren umfassend umgebaut und saniert. Seitdem wurden wenige umfangreiche Sanierungen vorgenommen, weshalb sich das Haus heute in einem renovierungsbedürftigen Zustand befindet. Teilweise sind feuchte Stellen an den Wänden sichtbar, was bei der Planung zukünftiger Sanierungsmaßnahmen berücksichtigt werden sollte.
Das Dach wurde in den 1990er Jahren neu gedeckt, ebenso wurden die Fenster Mitte der 90er Jahre durch Kunststofffenster ersetzt. Ein Großteil des Hauses ist an das öffentliche Kanalnetz angeschlossen.
Besonders hervorzuheben ist der schöne und gemütliche Garten, der sich ideal für naturbegeisterte Menschen eignet und zukünftig eine grüne Oase der Ruhe darstellen wird.
Zum Haus gehören außerdem eine Garage sowie drei mögliche Außenstellplätze.
Die Nähe zur Autobahnauffahrt sorgt für eine gute Verkehrsanbindung, der Nahe gelegene Spazierweg entlang der Traun zum Traunfall bietet herrliche Entspannung in der Natur.
Diese Liegenschaft bietet nicht nur Raum zur Entfaltung, sondern auch die Möglichkeit, ein individuelles Wohnkonzept zu verwirklichen.
Ideal für Handwerker, Sanierungsprofis oder kreative Köpfe mit einem Faible für Altbestand.
Infrastruktur / Entfernungen
Gesundheit
Arzt <1.500m
Apotheke <2.000m
Krankenhaus <8.500m
Klinik <2.000m
Kinder & Schulen
Schule <2.000m
Kindergarten <1.500m
Nahversorgung
Supermarkt <1.500m
Bäckerei <1.500m
Einkaufszentrum <7.000m
Sonstige
Bank <500m
Geldautomat <500m
Post <2.500m
Polizei <2.000m
Verkehr
Bus <500m
Straßenbahn <7.000m
Bahnhof <4.500m
Autobahnanschluss <1.500m
Flughafen <7.000m
Angaben Entfernung Luftlinie / Quelle: OpenStreetMap
Eckdaten
| Kaufpreis: | 249.000,00 € |
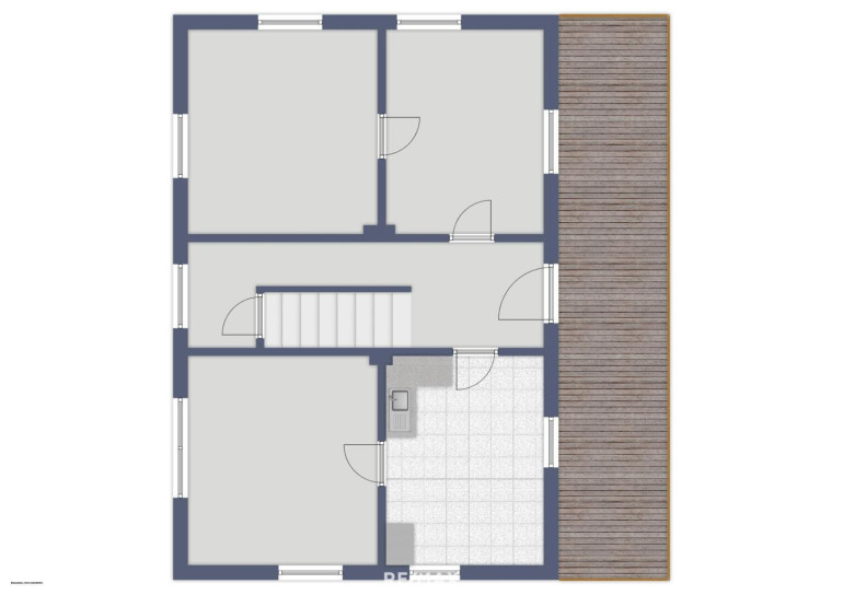
| Fläche: | 149,00 m² |
| Zimmer: | 5 |
Basisdaten zur Immobilie
| Objektnr: | 1068/5147 |
| Art: | Haus - Einfamilienhaus |
| Land: | Österreich |
| Baujahr: | 1904 |
| Kaufpreis: | 249.000,00 € |
| Provision: | 3% des Kaufpreises zzgl. 20% USt. |
| Wohnfläche: | 149,00 m² |
| Grundstücksfl.: | 681,00 m² |
| Zimmer: | 5 |
| Bäder: | 1 |
| WC: | 1 |
| Balkone: | 1 |
| Stellplätze: | 3 |
| Heizwärmebedarf: | 246,00 kWh/m²a |
Ausstattung
Öl, Zentralheizung
Internet und TV
Information zur Internet und TV Versorgung hier
Ihre persönliche Beratung
Christian Sammer
Traunsee Immobilien
c.sammer@remax-traunsee.at
+43 7612 89 232
+43 650 31 71 003
F +43 7612 89 232-30
