Immobilie merken

Großzügige Bürofläche oder Geschäftslokal im "Mödlhammerhaus"

Sonstige - Sonstige, 4550 Kremsmünster

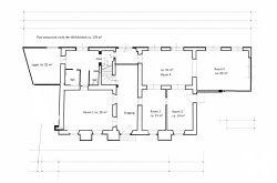
Beschreibung der Immobilie

  • Sehr hochwertige Fliesenböden
  • Fußbodenheizung
  • Zwei getrennte Toiletten
  • Nutzbar als Büro, Praxis, etc.
  • Barrierefrei
  • Zwei Parkplätze
  • Ausreichend Kundenparkplätze (Kurzparkzone) direkt vor dem Lokal
  • Sofort verfügbar
  • Möglichkeit zur Teilung vorhanden

Eckdaten

Gesamtmiete: 1.530,00 €
Fläche: 179,00 m²
Zimmer: 6

Basisdaten zur Immobilie

Objektnr: 0004006997
Art: Sonstige - Sonstige
Land: Österreich
Gesamtmiete: 1.530,00
Kaltmiete (netto): 1.200,00 €
Kaltmiete: 1.500,00 €
Betriebskosten: 300,00 €
Nutzfläche: 179,00 m²
Zimmer: 6
WC: 2
Heizwärmebedarf:  E  177,00 kWh/m²a
fGEE:  D  2,25

Ausstattung

Rampe



Internet und TV

Information zur Internet und TV Versorgung hier




Immobilie anfragen




Ihre persönliche Beratung

Real-Treuhand Immobilien Vertriebs GmbH

Ursula Mizelli

Real-Treuhand Immobilien

mizelli@raiffeisen-immobilien.at

+43 50 6596 8002

+43 676 8142 82862