++PERFEKTE RAUMAUFTEILUNG++Schöne 1-Zimmer-Wohnung, mit extra Küche, in Weiz
Wohnung
,
8160
Weiz
,
Birkfelder Straße
Beschreibung der Immobilie
Die 1-Zimmer-Wohnung + extra Küche punktetmit einer sehr lichtdurchfluteten Atmosphäre.
Sie besticht durch eine sehr gute Raumaufteilung und der tollen Lage - ein ideales Zuhause für Singles oder Pärchen.
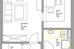
Die rd. 36 m² Wohnfläche teilen sich wie folgt auf:
- Vorraum;
- Abstellraum;
- Wohn-/Schlafzimmer;
- extra Küche;
- Badezimmer:
- WC.
Wir konnten Ihr Interesse wecken? Gerne vereinbaren wir einen Termin um mit Ihnen die Wohnung zu besichtigen und Ihnen weitere Details zu erzählen.
Wir freuen uns auf Ihre Kontaktaufnahme!
Wir weisen darauf hin, dass zwischen dem Vermittler und dem zu vermittelnden Dritten ein familiäres oder wirtschaftliches Naheverhältnis besteht.
Der Immobilienmakler erklärt, dass er – entgegen dem in der Immobilienwirtschaft üblichen Geschäftsgebrauch des Doppelmaklers – einseitig nur für den Vermieter tätig ist.
Infrastruktur / Entfernungen
Gesundheit
Arzt <250m
Apotheke <250m
Krankenhaus <1.000m
Kinder & Schulen
Schule <250m
Kindergarten <250m
Nahversorgung
Supermarkt <250m
Bäckerei <250m
Einkaufszentrum <250m
Sonstige
Bank <250m
Geldautomat <250m
Polizei <500m
Post <500m
Verkehr
Bus <250m
Bahnhof <250m
Flughafen <6.000m
Angaben Entfernung Luftlinie / Quelle: OpenStreetMap
Eckdaten
| Gesamtmiete: | 506,28 € |
| Fläche: | 35,57 m² |
| Zimmer: | 1 |
Basisdaten zur Immobilie
| Objektnr: | 3296 |
| Art: | Wohnung |
| Land: | Österreich |
| Baujahr: | 1997 |
| Zustand: | Gepflegt |
| Gesamtmiete: | 506,28 € |
| Kaltmiete (netto): | 362,92 € |
| Kaltmiete: | 423,39 € |
| Provision: | Gemäß Erstauftraggeberprinzip bezahlt der Abgeber die Provision. |
| Betriebskosten: | 60,47 € |
| Heizkosten: | 33,79 € |
| MwSt Gesamt: | 49,10 € |
| Wohnfläche: | 35,57 m² |
| Zimmer: | 1 |
| Bäder: | 1 |
| WC: | 1 |
| Heizwärmebedarf: | B 49,00 kWh/m²a |
| fGEE: | C 1,11 |
Ausstattung
Fliesen, Parkettboden, Fernwärme, Einbauküche, Dusche, Kabel/Satelliten-TV
Internet und TV
Information zur Internet und TV Versorgung hier
Ihre persönliche Beratung
Anna Baranova
Immo Circle GesBR
a.baranova@immo-circle.at
+43 660 7662289
+43 660 7662289
