Lage der Immobilie
Die Liegenschaft befindet sich in Nußdorf, einem der begehrtesten und charmantesten Ortsteile des 19. Wiener Gemeindebezirks, der für seine hohe Lebensqualität und besondere Wohnatmosphäre bekannt ist. Die Lage verbindet auf ideale Weise urbanen Komfort mit naturnahem Wohnen. Alle Einkaufsmöglichkeiten des täglichen Bedarfs befinden sich in unmittelbarer Umgebung und sind bequem erreichbar. Darüber hinaus bietet die Umgebung eine sehr gute Verkehrsanbindung: Öffentliche Verkehrsmittel ermöglichen eine rasche und unkomplizierte Verbindung in die Wiener Innenstadt sowie in andere Stadtteile, während auch die Anbindung an das übergeordnete Straßennetz optimal gegeben ist. Gleichzeitig liegt die Natur sprichwörtlich vor der Haustüre. Die nahegelegenen Grün- und Erholungsgebiete, Weinberge und Spazierwege laden zu ausgedehnten Spaziergängen, sportlichen Aktivitäten und entspannten Stunden im Freien ein und machen die Lage besonders attraktiv für Naturliebhaber. Ein weiterer großer Pluspunkt dieser Wohnlage ist das vielfältige gastronomische Angebot. Nußdorf ist bekannt für seine traditionellen Wiener Heurigen, ausgezeichnete Wirtshäuser sowie eine Auswahl an sehr guten Restaurants, die fußläufig oder in kurzer Distanz erreichbar sind und kulinarische Vielfalt auf hohem Niveau bieten. Diese Lage vereint somit exzellente Infrastruktur, hervorragende Verkehrsanbindung, Naturverbundenheit und kulinarische Lebensqualität und zählt nicht ohne Grund zu den gefragtesten Wohngegenden Wiens.Beschreibung der Immobilie
Dieses großzügige Reihenhaus in begehrter Nußdorfer Wohnlage bietet mit rund 160 m² Wohnfläche, verteilt auf drei Ebenen, ein durchdachtes Raumkonzept mit hohem Wohnkomfort. Die Immobilie entstand aus der Zusammenlegung zweier Wohneinheiten und überzeugt dadurch mit einer Großzügigkeit sowie vielseitigen Nutzungsmöglichkeiten. Sie eignet sich ideal für Familien, anspruchsvolle Paare oder all jene, die ein ruhiges Zuhause im Grünen mit urbaner Nähe suchen.
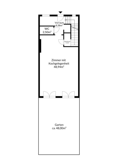
Das Erdgeschoss bildet das Herzstück des Hauses. Hier befindet sich der offen gestaltete Wohn und Essbereich, der durch seine großzügige Raumwirkung und große Fensterflächen besticht. Von hier aus gelangt man direkt in den privaten, liebevoll begrünten Garten mit ca. 48 m², der als Rückzugsort im Freien dient und sowohl Platz für Entspannung als auch für geselliges Beisammensein bietet.
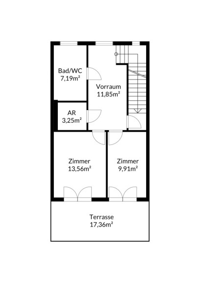
Im 1. Obergeschoss stehen zwei helle Zimmer zur Verfügung, die bei Bedarf wieder zu einem großzügigen Raum zusammengelegt werden können. Ergänzt wird diese Ebene durch ein großzügiges Badezimmer mit WC sowie einen praktischen Abstellraum. Besonders hervorzuheben ist der ca. 17 m² große Balkon, der von dieser Ebene aus zugänglich ist und dank seiner Größe und Ausrichtung für viel Tageslicht und ein angenehmes Wohnambiente sorgt.
Das 2. Obergeschoss verfügt ebenfalls über zwei separat begehbare Zimmer sowie ein weiteres Badezimmer mit WC. Diese Ebene eignet sich ideal als Schlaf und Rückzugsbereich oder auch für Homeoffice und Gästeräume. Alle Räume im Haus sind getrennt begehbar, gut proportioniert und durch große Fensterflächen ausgesprochen hell.
Das Haus wurde kürzlich umfassend gedämmt und isoliert, was in Kombination mit den dreifach verglasten Fenstern zu einer sehr guten Energieeffizienz und einem angenehmen Raumklima beiträgt. Das begrünte Flachdach unterstreicht den nachhaltigen Charakter der Immobilie. Die Wohnanlage selbst wurde 1968 errichtet und präsentiert sich in einem gepflegten Zustand.
Zusätzlichen Stauraum bieten zwei großzügige Kellerabteile. Ein Garagenstellplatz innerhalb der Anlage ist bereits im Kaufpreis enthalten und rundet dieses attraktive Angebot ab.
Diese Immobilie bietet eine Kombination aus großzügigem Wohnraum, privaten Freiflächen und einer begehrten Wohnlagen Wiens. Nußdorf im 19. Bezirk steht für hohe Lebensqualität, Nähe zur Natur und gleichzeitig hervorragende Anbindung an die Wiener Innenstadt.
Der Vermittler ist als Doppelmakler tätig.
Infrastruktur / Entfernungen
Gesundheit
Arzt <500m
Apotheke <1.000m
Klinik <1.500m
Krankenhaus <2.500m
Kinder & Schulen
Schule <500m
Kindergarten <500m
Universität <1.000m
Höhere Schule <1.500m
Nahversorgung
Supermarkt <500m
Bäckerei <500m
Einkaufszentrum <1.000m
Sonstige
Geldautomat <500m
Bank <500m
Post <500m
Polizei <500m
Verkehr
Bus <500m
U-Bahn <1.500m
Straßenbahn <500m
Bahnhof <500m
Autobahnanschluss <1.000m
Angaben Entfernung Luftlinie / Quelle: OpenStreetMap
Eckdaten
| Kaufpreis: | 1.100.000,00 € |
| Fläche: | 160,59 m² |
| Zimmer: | 5 |
Basisdaten zur Immobilie
| Objektnr: | 3345 |
| Art: | Wohnung |
| Land: | Österreich |
| Baujahr: | 1968 |
| Zustand: | Modernisiert |
| Möbliert: | Teil |
| Alter: | Neubau |
| Kaufpreis: | 1.100.000,00 € |
| Provision: | 3% des Kaufpreises zzgl. 20% USt. |
| Betriebskosten: | 619,14 € |
| Heizkosten: | 163,00 € |
| Wohnfläche: | 160,59 m² |
| Nutzfläche: | 160,59 m² |
| Zimmer: | 5 |
| Bäder: | 2 |
| WC: | 3 |
| Balkone: | 1 |
| Garten: | 48,00 m² |
| Heizwärmebedarf: | C 68,00 kWh/m²a |
| fGEE: | E 2,60 |
Ausstattung
Parkett, Fliesen, Gas, Einbauküche, Bad mit Fenster, Badewanne, Dusche, Garage
Internet und TV
Information zur Internet und TV Versorgung hier
Ihre persönliche Beratung
Samuel de Sousa Webber
TOPCALL Immobilientreuhand GmbH
s.webber@topcall.immo
+43 6769419328
+43 6769419328
