Großzügige 3-Zimmer-Wohnung mit Ess-Veranda in 4030 Linz | 88,61 m² | beziehbar ab 01.03.2026
Wohnung
,
4030
Linz
,
Erich-Fried-Weg 18
Lage der Immobilie
Die Wohnung befindet sich in einer angenehmen Wohnlage im Süden von Linz. Nahversorger, öffentliche Verkehrsmittel sowie Schulen und Kinderbetreuungseinrichtungen sind gut erreichbar. Die Umgebung bietet eine gute Kombination aus ruhigem Wohnen und städtischer Infrastruktur.Beschreibung der Immobilie
Linz / Ebelsberg / Ennsfeld / Erich-Fried-Weg 18 :
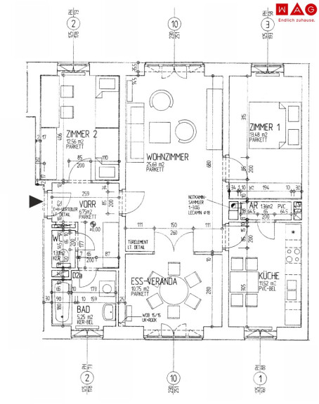
Am Erich-Fried-Weg 18 in 4030 Linz gelangt diese attraktive 3-Zimmer-Wohnung im 2. Obergeschoss (Top 4) zur Vermietung. Mit einer Wohnfläche von 88,61 m² bietet die Wohnung eine durchdachte Raumaufteilung und ein angenehmes Wohnambiente.
Der großzügige Wohnbereich mit angrenzender Ess-Veranda schafft eine helle und freundliche Atmosphäre. Zwei getrennt begehbare Schlafzimmer bieten ausreichend Platz für Paare oder Familien. Eine separate Küche, ein Abstellraum sowie ein getrenntes WC sorgen für zusätzlichen Komfort im Alltag.
Raumaufteilung & Highlights
Raumaufteilung
- Vorraum: 6,75 m²
- WC (separat): 1,31 m²
- Badezimmer: 5,25 m²
- Wohnzimmer: 25,63 m²
- Ess-Veranda: 10,75 m²
- Küche: 11,52 m²
- Schlafzimmer: 12,56 m²
- Kinderzimmer: 13,48 m²
- Abstellraum: 1,36 m²
Gesamtwohnfläche: 88,61 m²
Highlights
- Großzügige 3-Zimmer-Aufteilung
- Heller Wohnbereich mit Ess-Veranda
- Separate Küche
- Zwei Schlafzimmer
- Getrenntes WC
- Praktischer Abstellraum
- Familienfreundliche Wohnungsgröße
Mietkonditionen
- Miete inkl. Betriebskosten und MwSt.: € 953,23
(exkl. Strom, Heizung und Warmwasser) - Kaution/Baukostenzuschuss: € 3.812,92
Verfügbarkeit
Die Wohnung steht 01.03.2026 zur Verfügung.
Sanierung (Februar 2026)
- Boden wird erneuert (Küche)
- Türzargen werden neu lackiert
- Wohnung wird komplett ausgemalt
- Badezimmer – neue Badewanne
Sie sind an weiteren Wohnungs- bzw. Gewerbeangeboten interessiert? Ein vielfältiges Angebot finden Sie auf unserer Website.
Zur WAG-Immobiliensuche: SUCHE
Zur WAG-Wohnungsanmeldung: Wohnungsanmeldung
Gerne beraten wir Sie persönlich über unser vielfältiges Angebot, rufen Sie uns einfach an! Und das natürlich ohne Vermittlungsgebühren und provisionsfrei!
Angaben sind ohne Gewähr auf Richtigkeit und Vollständigkeit. Druckfehler vorbehalten.
Infrastruktur / Entfernungen
Gesundheit
Arzt <325m
Apotheke <300m
Krankenhaus <5.050m
Klinik <3.075m
Kinder & Schulen
Kindergarten <350m
Schule <150m
Universität <5.875m
Höhere Schule <7.400m
Nahversorgung
Supermarkt <175m
Bäckerei <500m
Einkaufszentrum <3.850m
Sonstige
Bank <450m
Geldautomat <1.975m
Post <1.975m
Polizei <2.000m
Verkehr
Bus <125m
Straßenbahn <225m
Bahnhof <1.450m
Autobahnanschluss <2.700m
Flughafen <6.150m
Angaben Entfernung Luftlinie / Quelle: OpenStreetMap
Eckdaten
| Gesamtmiete: | 953,23 € |
| Fläche: | 88,61 m² |
| Zimmer: | 3 |
Basisdaten zur Immobilie
| Objektnr: | 6650/16611 |
| Art: | Wohnung |
| Land: | Österreich |
| Zustand: | Gepflegt |
| Gesamtmiete: | 953,23 € |
| Kaltmiete (netto): | 583,80 € |
| Kaltmiete: | 866,61 € |
| Betriebskosten: | 282,44 € |
| MwSt Gesamt: | 86,62 € |
| Wohnfläche: | 88,61 m² |
| Zimmer: | 3 |
| Bäder: | 1 |
| WC: | 1 |
| Stellplätze: | 1 |
| Heizwärmebedarf: | C 59,00 kWh/m²a |
| fGEE: | C 1,11 |
Ausstattung
Parkett, Fliesen, Zentralheizung, Personenaufzug, Badewanne, Kabel/Satelliten-TV, Parkplatz, Wasch/Trockenraum
Internet und TV
Information zur Internet und TV Versorgung hier
Ihre persönliche Beratung
Team Vermietung 3
WAG Wohnungsanlagen Gesellschaft m.b.H.
team.vermietung3@wag.at
+43 (0)50 338 6010
