NEU (maßgeschneidert) sanierte Geschäfts-/Büro-/Ordinationsfläche mit XL-Schaufenstern - 1A Preis-/Leistung, direkt neben dem (Vital-)Zentrum Muldenstraße!
Einzelhandel
,
4020
Linz
Beschreibung der Immobilie
BILDER WERDEN IN KÜRZE (NACH SANIERUNG) DEM INSERAT BEIGEFÜGT!
Linz / Spallerhof / Muldenstraße 9 / EG : (Provisionsfrei)
Neu, nach Ihren Wünschen und Vorgaben, sanierte Geschäftsfläche, in topfrequentierter Lage eingebettet in den dicht bewohnten Stadtteil Spallerhof - MIT GROSSEN SCHAUFENSTERFLÄCHEN! In der Fläche wird aktuell ein Schuhservice /Schuster betrieben. Hervorragende Anbindung an den öffentlichen Verkehr, nähe Autobahnauffahrt A7.
In der Nähe befinden sich Lebensmittelgeschäfte, Wochenmarkt, Friseur, Tiefgarage, Vitalzentrum, Ärzte, Senioren-Wohnheim, Schulen, Kindergärten, Pfarrzentrum, Einkaufszentrum Muldenstraße und O-Bus...
Alles auf einen Blick:
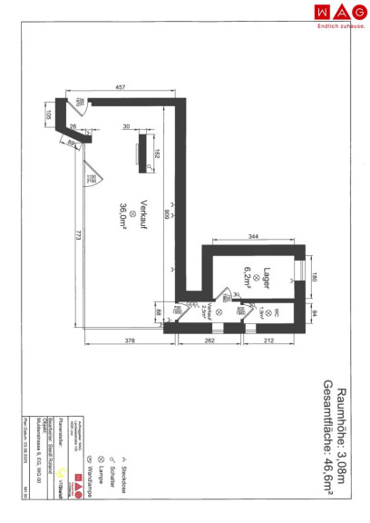
- Neu (maßgeschneidert) sanierte Gewerbefläche mit 44,00 m² auf einer Ebene
- öffentliche Verkehrsanbindung
- Optional Einzelgarage (nutzbar als zusätzlicher Lagerraum), € 92,-- (exkl. MwSt.)
- Neu saniertes Objekt - 2018
- Gute Kundenfrequenz auch dank hoher Bewohnerdichte im direkten Umfeld
- Größtmöglicher Mit-Planungs- und Gestaltungsfreiraum
- ein ausgeprägtes Gesundheitsumfeld (Vitalzentrum Muldenstraße) bietet zusätzliche Umsatzchancen
- Neues modernes Schaufensterportal wird verbaut
Die Fläche mit XL-Schaufenstern eignet sich zum Beispiel für folgende Nutzungen:
Büro, Ordination, Dienstleistungsbranche, Handel (Sport, Fahrrad, Drogerie/Parfümerie, E-Bike...), Agentur...
Seitens der Bewohner im Umfeld wurde mehrfach der Wunsch nach einem
- Handyshop/Reparatur
- Reformhaus
- Tierarzt
- (E-)Bike/Fahrradfachhandel mit Werkstatt
geäußert.
Miete inkl. Betriebskosten: € 777,94 (exkl. MwSt.)
Kaution: 3 - 4 Bruttomonatsmieten (auch in Form einer unwiderruflichen wertgesicherten Bankgarantie möglich)
Sie sind an weiteren Wohnungs- bzw. Gewerbeangeboten interessiert? Ein vielfältiges Angebot finden Sie auf unserer Website.
Zur WAG-Immobiliensuche: SUCHE
Zur WAG-Wohnungsanmeldung: Wohnungsanmeldung
Gerne beraten wir Sie persönlich über unser vielfältiges Angebot, rufen Sie uns einfach an! Und das natürlich ohne Vermittlungsgebühren und provisionsfrei!
Angaben sind ohne Gewähr auf Richtigkeit und Vollständigkeit. Druckfehler vorbehalten.
Infrastruktur / Entfernungen
Gesundheit
Arzt <500m
Apotheke <500m
Klinik <2.000m
Krankenhaus <1.000m
Kinder & Schulen
Kindergarten <500m
Schule <500m
Universität <3.000m
Höhere Schule <3.500m
Nahversorgung
Supermarkt <500m
Bäckerei <500m
Einkaufszentrum <500m
Sonstige
Bank <500m
Geldautomat <500m
Post <500m
Polizei <2.000m
Verkehr
Bus <500m
Straßenbahn <1.000m
Bahnhof <1.500m
Autobahnanschluss <1.000m
Flughafen <3.500m
Angaben Entfernung Luftlinie / Quelle: OpenStreetMap
Eckdaten
| Kaltmiete (netto): | 637,42 € |
| Fläche: | 44,00 m² |
Basisdaten zur Immobilie
| Objektnr: | 6650/28396 |
| Art: | Einzelhandel |
| Land: | Österreich |
| Kaltmiete (netto): | 637,42 € |
| Kaltmiete: | 757,36 € |
| Miete / m²: | 14,49 € |
| Betriebskosten: | 119,94 € |
| MwSt Gesamt: | 151,47 € |
| Nutzfläche: | 44,00 m² |
| WC: | 1 |
| Stellplätze: | 1 |
| Heizwärmebedarf: | C 68,00 kWh/m²a |
| fGEE: | C 1,17 |
Ausstattung
Zentralheizung, Personenaufzug, Kabel/Satelliten-TV
Internet und TV
Information zur Internet und TV Versorgung hier
Ihre persönliche Beratung
Christoph Bachhuber
WAG Wohnungsanlagen Gesellschaft m.b.H.
christoph.bachhuber@wag.at
+43 (0)50 338 1334
+4366488129958
