Unbefristeter Mietvertrag, 4-Zimmer-Wohnung mit Terrasse und großem Garten
Wohnung
,
5020
Salzburg
Lage der Immobilie
Der elegante Baukörper mit 9 Mietwohnungen befindet sich im beliebten Stadtteil Josefiau. Die sehr gute und nachgefragte Wohngegend bietet alles, was das Herz begehrt. Sie ist sehr grün und zentrumsnah mit vielen kommunalen Angeboten.Beschreibung der Immobilie
Eckdaten
| Gesamtmiete: | 2.285,81 € |
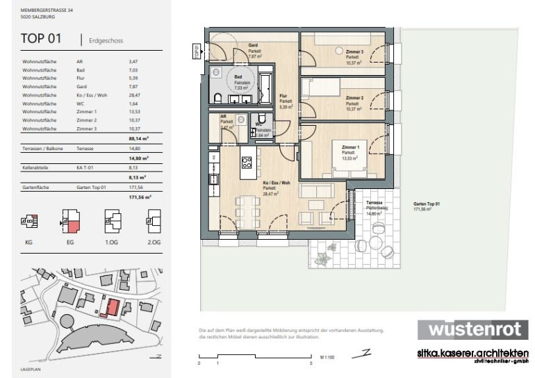
| Fläche: | 88,14 m² |
| Zimmer: | 4 |
Basisdaten zur Immobilie
| Objektnr: | 50504612 |
| Art: | Wohnung |
| Land: | Österreich |
| Baujahr: | 2024 |
| Zustand: | Erstbezug |
| Gesamtmiete: | 2.285,81 € |
| Kaltmiete (netto): | 1.831,22 € |
| Kaltmiete: | 2.285,81 € |
| Provision: | provisionsfrei für den Mieter |
| Betriebskosten: | 246,79 € |
| Wohnfläche: | 88,14 m² |
| Zimmer: | 4 |
| Bäder: | 1 |
| WC: | 1 |
| Terrassen: | 1 |
| Garten: | 171,56 m² |
| Keller: | 8,13 m² |
| Heizwärmebedarf: | B 27,70 kWh/m²a |
| fGEE: | A+ 0,69 |
Ausstattung
Fernwärme, Zentralheizung, Einbauküche, Personenaufzug, Badewanne, Kabel/Satelliten-TV
Internet und TV
Information zur Internet und TV Versorgung hier
Ihre persönliche Beratung
Martin Ziak
ÖRAG Immobilien Vermittlung GmbH
martin.ziak@oerag.at
004366287766626
004366287766626
