Gepflegtes Einfamilienhaus mit großem Garten/Eigengrund, kein Baurecht
Haus
- Einfamilienhaus,
1210
Wien
Lage der Immobilie
Regionalpark DreiAnger- im Nordwesten WiensBeschreibung der Immobilie
Das Haus und der Garten
Das im Jahr 1962 in Ziegelmassivbauweise errichtete Einfamilienhaus präsentiert sich in gepflegtem, aber renovierungsbedürftigem Zustand. Es wurde über die Jahre erweitert, so sind Wintergarten, Garage und zwei Nebengebäude sowie Glashäuser dazu gebaut worden. Das Haus ist zum Großteil unterkellert. Der Keller ist zum Teil als Kellerstüberl, zum Teil als Technikraum ausgestaltet. In der aktuellen Grundrissgestaltung bietet das Haus einen großen Wohnbereich und Wintergarten, zwei Schlafzimmer, eine separate Küche, zwei WCs und zwei Bäder, und mehrere Abstellräume.
Das Grundstück weist eine Größe von insgesamt 648 m² auf. Es handelt sich dabei um Eigentum, nicht um Baurecht.
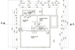
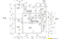
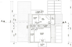
Die gesamte nutzbare Fläche des Hauses beträgt etwa 185 m², davon ca. 112 m² Wohnnutzfläche und teilt sich auf wie folgt:
- Kellergeschoss: ca. 50 m² (Hobbyraum/Kellerstüberl, Heizraum, Technikraum)
- Erdgeschoss: ca. 71 m² (Veranda, Flur, Wintergarten, Küche, Badezimmer, WC, Wohnzimmer)
plus ca. 23 m² Garage, plus 2 gemauerte Nebengebäude (eines davon beheizt) - Obergeschoss: ca. 41 m² plus 3 m² Balkon (Vorraum, Zimmer mit Balkon, Schrankraum, Badezimmer, Abstellraum)
Die Lage, Umgebung und Verkehrsanbindung
Das haus liegt in einer ruhigen Wohnsiedlung. Der nächstgelegene Supermarkt (Billa) befindet sich etwa 900 m entfernt in der Lavantgasse. Drei Kindergärten, die Volksschule Lavantgasse 35 und die Nordrandapotheke in der Gerasdorfer Straße 332 sind zu Fuß erreichbar. Zwei Praxen für Allgemeine Medizin befinden sich im Umfeld.
Die Anbindung an den öffentlichen Verkehr erfolgt über die Autobuslinie 32A (Haltestelle Dahliengasse, ca. 200 m). Damit erreichen Sie in ca. 7 Minuten Fahrzeit die U1-Station Leopoldau. Mit dem Auto erreichen Sie in ca. 25 Minuten das Zentrum Wiens (Stephansplatz) und in knapp über einer halben Stunde den Flughafen Wien-Schwechat.
Resümee: ein gepflegtes Haus in Ruhelage, mit großem Garten und viel Entfaltungsmöglichkeiten. Fairer Preis. Machen Sie sich selbst ein Bild.
Noch nichts gefunden? Wir informieren Sie über geeignete Immobilienangebote noch vor allen anderen.
Legen Sie jetzt Ihren individuellen Suchagenten unter folgendem Link an. Wir schicken Ihnen passende Immobilien exklusiv vorab zu.
Suchagent anlegen - https://funk.service.immo/registrieren/de
Der Vermittler ist als Doppelmakler tätig.
Informationen und Besichtigungen
Herr Prok. Walter Mitterstöger, MA steht Ihnen gerne telefonisch unter +43 1 533 46 44-1 oder per E-Mail unter walter.mitterstoeger@funk.at zur Verfügung.
Immobilien Funk.success in real estate
Infrastruktur / Entfernungen
Gesundheit
Arzt <2.000m
Apotheke <500m
Klinik <3.500m
Krankenhaus <2.500m
Kinder & Schulen
Schule <500m
Kindergarten <500m
Universität <1.500m
Höhere Schule <4.000m
Nahversorgung
Supermarkt <500m
Bäckerei <1.000m
Einkaufszentrum <1.500m
Sonstige
Bank <1.500m
Geldautomat <1.500m
Post <1.500m
Polizei <1.500m
Verkehr
Bus <500m
U-Bahn <1.000m
Straßenbahn <2.500m
Bahnhof <1.000m
Autobahnanschluss <3.500m
Angaben Entfernung Luftlinie / Quelle: OpenStreetMap
Eckdaten
| Kaufpreis: | 545.000,00 € |
| Fläche: | 112,00 m² |
Basisdaten zur Immobilie
| Objektnr: | 4398 |
| Art: | Haus - Einfamilienhaus |
| Land: | Österreich |
| Baujahr: | 1962 |
| Zustand: | Gepflegt |
| Alter: | Neubau |
| Kaufpreis: | 545.000,00 € |
| Provision: | 3% des Kaufpreises zzgl. 20% USt. |
| Wohnfläche: | 112,00 m² |
| Nutzfläche: | 112,00 m² |
| Grundstücksfl.: | 648,00 m² |
| Bäder: | 2 |
| WC: | 2 |
| Terrassen: | 1 |
| Keller: | 50,00 m² |
| Heizwärmebedarf: | G 267,80 kWh/m²a |
| fGEE: | E 2,93 |
Ausstattung
Fliesen, Kunststoffboden, Parkettboden, Gas, Etagenheizung, Einbauküche, Badewanne, Dusche
Internet und TV
Information zur Internet und TV Versorgung hier
Ihre persönliche Beratung
Prok. Walter Mitterstöger
Dr. Funk Immobilien GmbH & Co KG
walter.mitterstoeger@funk.at
+43 1 533 46 44-1
+43 664 88 73 99 35
F +43 1 533 46 44-4
