Sonniges Wohnjuwel im Dachgeschoß – Maisonette mit Terrassen nahe Kutschkermarkt
Wohnung
- Dachgeschoß,
1180
Wien
Beschreibung der Immobilie
Sonniges Wohnjuwel im Dachgeschoß – Maisonette mit Terrassen nahe Kutschkermarkt
Zum Verkauf gelangt eine gepflegte 4-Zimmer-Dachgeschoß-Maisonette in einem stilvollen Althaus in guter Lage des 18. Bezirks, angrenzend zum 9.Bezirk. Die Wohnung befindet sich in unmittelbarer Nähe zur U6-Station Währinger Straße/Volksoper und bietet eine ausgezeichnete Anbindung an den öffentlichen Verkehr.
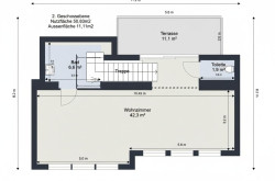
Raumaufteilung / Maisonette:
UG ( = 4.Stock):
- offener Vorraum übergehend in
- Küche mit Esstischbereich
- zwei Schlafzimmer
- ein Badezimmer mit Badewanne
- WC
- Abstellraum mit Waschmaschinenanschluss
- Terrasse (11 m²)
OG ( = 5.Stock)
- Wohnsalon mit Weitblick
- (es besteht die Möglichkeit hier ein drittes Schlafzimmer mit en suite Bad vom Wohnzimmer abzutrennen)
- Badezimmer mit Dusche
- WC
- Terrasse (11 m²)
Beschreibung: Beim Betreten der Wohnung gelangt man in einen offenen Vorraum, der direkt in die rund 30 m² große, hofseitig gelegene Wohnküche führt. Große Fensterflächen sorgen für eine angenehme Belichtung des Raumes. Von der Wohnküche aus besteht Zugang zu einer etwa 11 m² großen Terrasse mit südseitiger Ausrichtung zum Innenhof.
Auf dieser Ebene befinden sich außerdem zwei Schlafzimmer mit ca. 9 m² und ca. 12 m², ein Badezimmer sowie ein separates WC.
Über eine interne Treppe erreicht man die obere Ebene der Wohnung. Hier befindet sich ein rund 42 m² großes Wohnzimmer mit großzügiger Fensterfront über die gesamte Raumhöhe, wodurch ein heller und offener Wohnbereich entsteht. Vom Vorzimmer aus gelangt man auf eine weitere Terrasse mit etwa 11 m², ebenfalls hof- und südseitig ausgerichtet. Derzeit ist das Wohnzimmer oben vom Stiegenhaus mittels Holzriegelwand getrennt, diese kann jederzeit entfernt werden.
Die Wohnung verfügt über eine Fußbodenheizung, eine Klimaanlage sowie eine elektrische Außenbeschattung. Die Steuerung der technischen Ausstattung erfolgt über ein zentrales Smart-Home-System.
Die gesamte monatliche Vorschreibung beträgt EUR 560,27,-- und setzt sich zusammen aus:
- Betriebskostenakonto: EUR 280,95
- Liftkostenakonto: EUR 135,80
- Instandhaltungsrücklage: EUR 143,52
Highlights:
-
Großzügige Fensterfront mit Weitblick im Wohnzimmer
-
zwei Terrassen mit südseitiger Ausrichtung in den ruhigen Innenhof
-
funktionale Raumaufteilung über zwei Ebenen
-
derzeit bestehen zwei Schlafzimmer, ein drittes Schlafzimmer kann einfach verbaut werden
-
Fußbodenheizung
-
Klimaanlage
-
elektrische Außenbeschattung
-
Personenaufzug im Stiegenhaus ( kann barrierefrei vom Innenhof erreicht werden)
Lage und Infrastruktur:
Urban und lebendig: Die Wohnung profitiert von umgebenden, pulsierenden Grätzln Wiens und genießt ein unverwechselbares Flair. Diverse Theater ( wie. z.B. das Volkstheater), Galerien und das WUK bieten eine umfassende Kulturvielfalt. Eine erhebliche Anzahl an Gastronomieangebot kann binnen wenigen Gehminuten erreicht werden, von hippen Brunchlokalen bis authentischer Küche ist alles erreichbar!
-
Gute Anbindung an die U6-Station Währinger Straße/Volksoper sowie die Straßenbahnlinien 40, 41, 42 und die Buslinie 40A
-
Nähe zur Währinger Straße mit zahlreichen Einkaufsmöglichkeiten
-
Der Kutschkermarkt befindet sich in kurzer Distanz ( 5 Gehminuten)
-
Gute Erreichbarkeit des AKH sowie des Evangelischen Krankenhauses
-
Anschluss an das Wiener Radwegenetz (Gürtelradweg)
-
WIFI in unmittlelbarer Nähe
Diese Wohnung eignet sich besonders für Pärchen und (Klein-)Familien, die sonnige Freiflächen und eine ruhige, private Wohnatmosphäre bei gleichzeitig ausgezeichneter Anbindung schätzen.
Bitte beachten Sie, dass die Möblierung auf diversen Bildern mithilfe künstlicher Intelligenz ( KI) entfernt wurden und neue Möbel hinzuvisualisiert wurden.
Infrastruktur / Entfernungen
Gesundheit
Arzt <500m
Apotheke <500m
Klinik <500m
Krankenhaus <500m
Kinder & Schulen
Schule <500m
Kindergarten <500m
Universität <500m
Höhere Schule <500m
Nahversorgung
Supermarkt <500m
Bäckerei <500m
Einkaufszentrum <1.500m
Sonstige
Geldautomat <500m
Bank <500m
Post <500m
Polizei <1.000m
Verkehr
Bus <500m
U-Bahn <500m
Straßenbahn <500m
Bahnhof <500m
Autobahnanschluss <2.000m
Angaben Entfernung Luftlinie / Quelle: OpenStreetMap
Eckdaten
| Kaufpreis: | 890.000,00 € |
| Fläche: | 113,00 m² |
| Zimmer: | 4 |
Basisdaten zur Immobilie
| Objektnr: | 7401 |
| Art: | Wohnung - Dachgeschoß |
| Land: | Österreich |
| Baujahr: | 2012 |
| Zustand: | Gepflegt |
| Alter: | Neubau |
| Kaufpreis: | 890.000,00 € |
| Provision: | 3% des Kaufpreises zzgl. 20% USt. |
| Betriebskosten: | 268,86 € |
| MwSt Gesamt: | 41,13 € |
| Wohnfläche: | 113,00 m² |
| Zimmer: | 4 |
| Bäder: | 2 |
| WC: | 2 |
| Terrassen: | 2 |
| Heizwärmebedarf: | B 48,70 kWh/m²a |
| fGEE: | B 0,87 |
Ausstattung
Fußbodenheizung, Einbauküche, Wohnküche / offene Küche, Personenaufzug, Südbalkon, Badewanne, Dusche, Kabel/Satelliten-TV
Internet und TV
Information zur Internet und TV Versorgung hier
Ihre persönliche Beratung
Sabrina Ritter
Spiegelfeld Immobilien GmbH
sabrina.ritter@spiegelfeld.eu
+43 1 5132313-20
