Jetzt mit Küchen-Gutschein - Einzigartige Atmosphäre und viel Platz: Grünruhelage mit Nähe zu Wien. ERSTBEZUG.
Wohnung
,
2481
Achau
Lage der Immobilie
Schloß LaxenburgBeschreibung der Immobilie
Sie wollen in absoluter Grünruhelage wohnen und schätzen gleichzeitig die Nähe zu Wien? Sie suchen Ruhe und Erholung genauso wie attraktive Freizeitmöglichkeiten und eine familiengerechte Infrastruktur? Sie lieben unaufgeregtes, klares Design ebenso wie traumhafte Terrassen und großzügige Freiflächen? Dann werden Sie die Premium Garden Suits in Achau/Bezirk Mödling begeistern.
- Einzigartig wohnen: Insgesamt wurden 32 Wohnungen von 55 - 141 m² mit offenen, durchdachten und barrierefreien Raumkonzepten errichtet.
- Top Design und Aussttattung: Jede Wohnung besticht durch faszinierendes Design und eine hochwertige Ausstattung inklusive eigenem Garten oder eigener Terrasse.
- Ruhelage in Citynähe: Mitten in der Natur – und doch ist der Wiener Hauptbahnhof nur 15 Minuten vom neuen Bahnhof Achau entfernt.
- Bestes Preis-Leistungs-Verhältnis: Die Traumwohnungen sind durch die qualitativ hochwertige Umsetzung durch renommierte Fachbetriebe auch ein sicheres Investment.
Die Fotos sind Musterfotos von diversen Tops der exklusiven Premium Suites.
--------------------------------------------------------------------------------
Einige Tops von 54 m² bis 143 m² jeweils mit Balkon, Terrasse, Loggia bzw. im EG Garten - Kaufpreis von € 399.000 bis € 1.200.000 sind noch verfügbar.
FRÜHJAHRS-AKTION: "Jetzt mit Küchen-Gutschein im Wert von € 10.000 bei einem Ankauf bis zu 31.3.2026!"
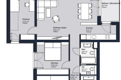
Das gegenständliche 4-Zimmer-Domizil im 2.OG mit 104,39 m² gewichtete Nutzfläche bietet
- 98,54 m² Wohnfläche mit 4 Zimmern und 2 Bädern
- 11,94 m² Balkon
- 6,97 m² Balkon
- 2,07 m² Einlagerungsraum (oberirdisch)
- 1 Stellplatz inkl. E-Vorbereitung kann um € 8.000 zusätzlich erworben werden.
Weitere exklusive Premium Suites finden Sie auf anobis.at ....
---------------------------------------------------------------------
TOP-Qulität in Bauweise und Ausstattung.
Alle Premium Suites beeindrucken durch großzügige Freiflächen - Loggia, Balkon, Terrasse oder Gärten. In den privaten Outdoor-Oasen können Sie entspannt zur Ruhe kommen und die Seele baumeln lassen. Mit stylische Sitzgruppen versehen, sind diese wie geschaffen für gemütliche Stunden mit der ganzen Familie. Zusätzlich dazu bietet der große allgemeine, von einem Garten-Architekten gestaltete Outdoorbereich ein harmonisches Farbenspiel von Pflanzen strahlt eine tiefe Ruhe und Enspannung aus.
- Persönlicher Freiraum: Die Wohndichte ist durch wenige Einheiten pro Baukörper gering. Die verschiedenen Wohnungstypen lassen keine Wünsche offen und verfügen zu 80% über einen Masterbedroom, also ein Schlafzimmer mit angeschlossenem Bad und eigener Garderobe.
- Naturnah geplant: Großzügige Terrassen und Gärten erweitern den Wohnraum ins Freie und holen die Natur direkt ins eigene Wohnzimmer.
- Die 3 Wohnhäuser sind in Ziegelmassivbauweise mit teilweisen Stahlbetonwänden und einer hinterlüfteten Fassade errichtet worden -> BESTES WOHNKLIMA.
- Durchdachte Grundrisse schaffen großzßgigen Wohnraum für die ganze Familie.
- Die lichte Höhe der Wohnbereiche beträgt ca. 2,70 m und entspricht damit einer Wohnimmobilie der gehobenen Klasse.
- Einbau von hochwertigen Holz-Alu-Fenstern mit Wärmeschutzverglasung (3-fach Verglasung) des Markenherstellers KATZBECK.
- Alle Fenster und Fenstertüren der Wohnungen erhalten elektrisch bedienbaren Sonnenschutz.
- Die zentrale Heizanlage in Form einer Luftwärmepumpe mit Fußbodenheizung und Deckenkühlung.
- Nachhaltig gebaut: Höchste Wärme- und Energieeffizienz sorgen für geringe laufende Kosten.
Verkehrsgünstige Lage - Perfekte Verbindung von Stadt und Land.
Eingebettet zwischen idyllischen Wiesen und Wäldern liegt der kleine Ort Achau in der Nähe von Schloss Laxenburg. Vielleicht werden Sie das viele Grün und die angenehme Ruhe so schätzen lernen, dass Sie gar nicht mehr weg wollen. Wenn doch – etwa aus beruflichen Gründen oder wenn Sie verreisen möchten – wird Sie die verkehrsgünstige Lage überzeugen.
- 0,60 km Neuer Bahnhof Achau - Richtung Wien sind an Werktagen (Montag bis Freitag) im 30 Min. Takt von 05:28 Uhr bis 08:28 Uhr und von 14:28 Uhr bis 20:28 Uhr.
- 5 km A2 Autobahn
- 9,80 km U1 Oberlaa
- 17,70 km Flughafen
- Nachhaltige Mobilität mit dem Auto: Ihnen steht selbstverständlich auch E-Ladestation zur Verfügung.
- Öffentlicher Nahverkehr: 3 Busse: 215, 216, 217
Hinweis: Bei den möblierten Bildern handelt es sich um KI-Homestageing.
Überzeugen Sie sich selbst, vereinbaren Sie einen Besichtigungstermin und lassen Sie die einzigartige Atmosphäre auf sich wirken!
Ihr persönlicher Kontakt:
Mag. Alexandra Wagner, MSc
+43 664 601 05 165
a.wagner@anobis.at
www.anobis.at
Weitere Top-Immobilien finden Sie unter anobis.at
Wir weisen darauf hin, dass zwischen dem Vermittler und dem zu vermittelnden Dritten ein familiäres oder wirtschaftliches Naheverhältnis besteht.
Der Vermittler ist als Doppelmakler tätig.
Infrastruktur / Entfernungen
Gesundheit
Arzt <3.000m
Apotheke <2.500m
Klinik <7.000m
Krankenhaus <7.000m
Kinder & Schulen
Kindergarten <3.000m
Schule <500m
Universität <9.000m
Höhere Schule <7.500m
Nahversorgung
Supermarkt <500m
Bäckerei <1.000m
Einkaufszentrum <4.500m
Sonstige
Bank <500m
Geldautomat <500m
Polizei <3.500m
Post <3.000m
Verkehr
Bus <500m
U-Bahn <7.000m
Bahnhof <1.000m
Straßenbahn <7.000m
Autobahnanschluss <4.000m
Angaben Entfernung Luftlinie / Quelle: OpenStreetMap
Eckdaten
| Kaufpreis: | 598.000,00 € |
| Fläche: | 98,54 m² |
| Zimmer: | 4 |
Basisdaten zur Immobilie
| Objektnr: | 3971 |
| Art: | Wohnung |
| Land: | Österreich |
| Baujahr: | 2023 |
| Zustand: | Erstbezug |
| Alter: | Neubau |
| Kaufpreis: | 598.000,00 € |
| Provision: | 21.528,00 € inkl. 20% USt. |
| Wohnfläche: | 98,54 m² |
| Zimmer: | 4 |
| Bäder: | 2 |
| WC: | 2 |
| Balkone: | 2 |
| Stellplätze: | 1 |
| Keller: | 2,07 m² |
| Heizwärmebedarf: | B 29,00 kWh/m²a |
| fGEE: | A++ 0,64 |
Ausstattung
Parkett, Fliesen, Fußbodenheizung, Wohnküche / offene Küche, Personenaufzug, Ostbalkon, Badewanne, Dusche, Kabel/Satelliten-TV, Parkplatz
Internet und TV
Information zur Internet und TV Versorgung hier
Ihre persönliche Beratung
Mag. Alexandra Wagner, MSc.
ANOBIS IMMOBILIEN GmbH
a.wagner@anobis.at
+43 1 356 00 21
+43 664 601 05 165
