TOPLAGE in Purkersdorf! Einfamilienhaus mit 708 m2 Garten sowie 287 m2 Nutzfläche am Sagberg!
Haus
- Einfamilienhaus,
3011
Purkersdorf
Lage der Immobilie
Purkersdorf / Sagberg SiedlungBeschreibung der Immobilie
Verkauft wird ein geräumiges Einfamilienhaus mit einem zirka 708 m2 großen Garten. Das Haus verfügt über zirka 287 m2 Nutzfläche sowie zwei Terrassen mit einer Fläche von 36,20 m2 und einer 23,75 m2 großen Garage. Das Objekt befindet sich in einer traumhaften und absoluten Toplage im Grünen in der Sagberg Siedlung in Purkersdorf.
Die Substanz des Hauses ist als gut einzustufen und bietet viel Potential für individuelle Gestaltung. Das Haus wurde im Jahr 1983 gebaut und verfügt über insgesamt vier Etagen und kann in zwei bzw. drei separate Wohneinheiten getrennt werden. Das Haus kann vielseitig genutzt werden.
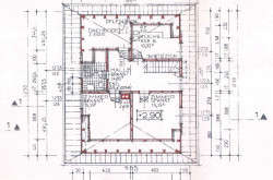
Das Haus gliedert sich in Kellergeschoss, Erdgeschoss und Obergeschoss und Dachgeschoss.
Das erste Kellergeschoss ist wie folgt aufgeteilt:
- ein Vorraum von dem man in das Obergeschoss gelangt
- eine geräumige 23,75 m2 große Garage
Das zweite Kellergeschoss kann als Wohnkeller adaptiert werden und ist wie folgt aufgeteilt:
- ein großzügiger Vorraum mit Zugang zur zirka 20 m2 großen Terrasse
- ein zirka 22 m2 großes Zimmer
- ein weiteres zirka 12 m2 großes Zimmer
- zwei weitere Kellerräume
- ein 13,77 m2 großer Heizraum
Das Obergeschoss (laut Plan Erdgeschoss) teilt sich wie folgt auf:
- ein 16,38 m2 großes Schlafzimmer
- ein weiteres 13,65 m2 großes Zimmer
- ein Badezimmer mit Badewanne und Fenster
- ein 34,44 m2 großes Wohnzimmer mit Zugang zur 16,20 m2 Terrasse
- eine separate 8,05 m2 große Küche
- eine separate Toilette
- ein Abstellraum
Das Dachgeschoss des Hauses verfügt über eine Wohnfläche von 61,91 m2 und besteht aus:
- drei zirka 15 m2 große separate begehbare Zimmer
- ein Badezimmer mit Badewanne, Dusche, Toilette und Fenster
- eine separate 10,32 m2 große Küche
Infrastruktur:
Die Haus befindet sich in einer sehr ruhigen Einfamilienhaussiedlung mit angrenzender öffentlicher Anbindung. Ein Kindergarten befindet sich wenige Autominuten entfernt. Schulen, Supermärkte, sowie Ärzte und Apotheken befinden sich in der Ortschaft in Purkersdorf. Der Bahnhof Untertullnerbach befindet sich in 4 Autominuten entfernt, Purkersdorf Zentrum in 5 Autominuten.
Kaufpreis: 749.000,-
Provision: 3 % zzgl. USt
Kontakt und Besichtigungstermine
Für weitere Fragen oder einen unverbindlichen und kostenlosen Besichtigungstermin kontaktieren Sie gleich Herr Bigus unter 0699/12471592 oder per E-Mail bigus@immobilienquartier.at!
Aufgrund der Nachweispflicht gegenüber dem Eigentümer können nur schriftliche Anfragen mit vollständigen Kontaktdaten (Name, Anschrift, Tel.-Nr., E-Mail) beantwortet werden.
Irrtum und Änderungen vorbehalten. Oben angeführte Angaben basieren auf Informationen und Unterlagen des Eigentümers und sind unsererseits ohne Gewähr.
Wir weisen darauf hin, dass zwischen dem Vermittler und dem Auftraggeber ein familiäres oder wirtschaftliches Naheverhältnis besteht. Der Vermittler ist als Doppelmakler tätig.
Hinweis gemäß Energieausweisvorlagegesetz: Ein Energieausweis wurde vom Eigentümer bzw. Verkäufer, nach unserer Aufklärung über die generell geltende Vorlagepflicht, sowie Aufforderung zu seiner Erstellung noch nicht vorgelegt. Daher gilt zumindest eine dem Alter und der Art des Gebäudes entsprechende Gesamtenergieeffizienz als vereinbart. Wir übernehmen keinerlei Gewähr oder Haftung für die tatsächliche Energieeffizienz der angebotenen Immobilie.
Infrastruktur / Entfernungen
Gesundheit
Arzt <3.000m
Apotheke <3.000m
Klinik <5.500m
Krankenhaus <9.500m
Kinder & Schulen
Schule <3.000m
Kindergarten <3.000m
Universität <8.000m
Nahversorgung
Supermarkt <2.000m
Bäckerei <3.000m
Einkaufszentrum <6.000m
Sonstige
Bank <3.000m
Geldautomat <3.000m
Post <3.000m
Polizei <3.500m
Verkehr
Bus <500m
U-Bahn <9.000m
Straßenbahn <9.000m
Bahnhof <1.500m
Autobahnanschluss <6.000m
Angaben Entfernung Luftlinie / Quelle: OpenStreetMap
Eckdaten
| Kaufpreis: | 749.000,00 € |
| Fläche: | 287,71 m² |
| Zimmer: | 8,50 |
Basisdaten zur Immobilie
| Objektnr: | 5562 |
| Art: | Haus - Einfamilienhaus |
| Land: | Österreich |
| Baujahr: | 1983 |
| Alter: | Neubau |
| Kaufpreis: | 749.000,00 € |
| Provision: | 3% des Kaufpreises zzgl. 20% USt. |
| Betriebskosten: | 90,00 € |
| Nutzfläche: | 287,71 m² |
| Grundstücksfl.: | 873,00 m² |
| Zimmer: | 8,50 |
| Bäder: | 3 |
| WC: | 3 |
| Terrassen: | 2 |
| Stellplätze: | 1 |
| Garten: | 708,00 m² |
Ausstattung
Bad mit Fenster, Badewanne, Sauna
Internet und TV
Information zur Internet und TV Versorgung hier
Ihre persönliche Beratung
Peter Bigus
Immobilienquartier
bigus@immobilienquartier.at
+43699 124 715 92
