Charmante Altbauwohnung mitten im vierten Bezirk, 6 Zimmer, 3 Bäder
Wohnung
,
1040
Wien
Lage der Immobilie
In unmittelbarerer Nähe zum Karlsplatz und der Wiener Staatsoper erwartet Sie diese wunderschöne Altetage. Die Lage bietet Ihnen hervorragende Einkaufsmöglichkeiten: Sowohl die Wiedner Hauptstraße als auch die Schleifmühlgasse und der Naschmarkt gewährleisten eine optimale Infrastruktur für Ihren täglichen Bedarf und zahlreiche Optionen zum Ausgehen. Der Karlsplatz, nur wenige Minuten entfernt, ist zudem eine zentrale U-Bahnstation, die Sie mit den Linien U1, U2 und U4 verbindet. Der nächste Supermarkt befindet sich in unmittelbarer Nähe, was Ihnen zusätzlichen Komfort bietet.Beschreibung der Immobilie
Eckdaten
| Gesamtmiete: | 4.695,00 € |
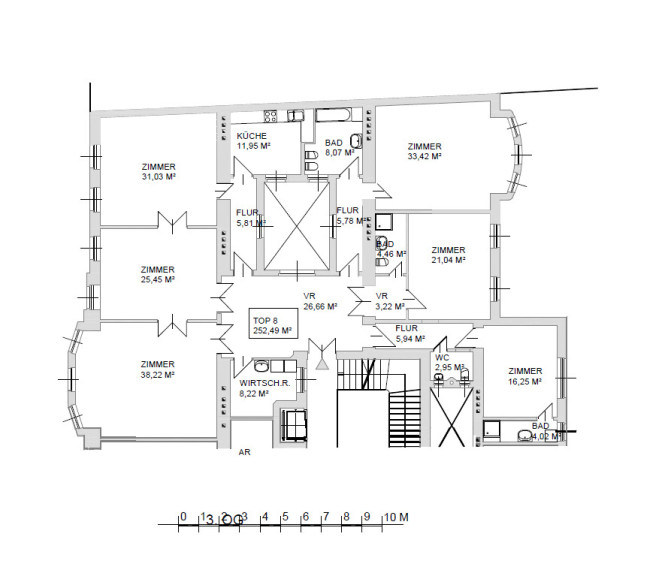
| Fläche: | 252,69 m² |
| Zimmer: | 6 |
Basisdaten zur Immobilie
| Objektnr: | IVW-M-26-13168 |
| Art: | Wohnung |
| Land: | Österreich |
| Baujahr: | 1892 |
| Zustand: | Gepflegt |
| Gesamtmiete: | 4.695,00 € |
| Kaltmiete (netto): | 3.561,21 € |
| Kaltmiete: | 3.917,33 € |
| Betriebskosten: | 706,97 € |
| Wohnfläche: | 252,69 m² |
| Zimmer: | 6 |
| Bäder: | 3 |
| WC: | 3 |
Ausstattung
Gas, Etagenheizung
Internet und TV
Information zur Internet und TV Versorgung hier
Ihre persönliche Beratung
Mag. Theresa Rojko
OTTO Immobilien GmbH
t.rojko@otto.at
00436766164144
00436766164144
F 004315137778
