Langfristig verpachtetes Serviced-Apartment-Projekt nahe Siemens City
Wohnung
,
1210
Wien
,
Ruthnergasse
Beschreibung der Immobilie
Serviced Apartments. Investieren. Zukunft sichern.
In der Ruthnergasse 18 in Wien-Floridsdorf entsteht ein modernes Neubauprojekt, das urbanes Wohnen, nachhaltige Bauweise und attraktive Investmentchancen vereint. Das Projekt verbindet zeitgemäße Architektur mit effizienter Energietechnik und schafft damit eine zukunftssichere Anlageform in einer gefragten Wiener Wohnlage.
Das Gebäude umfasst 38 moderne Serviced Apartments, die schlüsselfertig ausgeführt werden und überwiegend über attraktive Freiflächen wie Balkon, Loggia oder Terrasse verfügen. Durch die Kombination aus effizienter Grundrissgestaltung, moderner Ausstattung und nachhaltiger Gebäudetechnik entsteht ein Investment mit langfristigem Potenzial.
Das digitale Betriebskonzept ermöglicht einen Check-in der Kunden über Terminals vor Ort und en 24/7 erreichbares Servicecenter gewährleistet eine rundum Betreuung.
Das Projekt - Investment mit Zukunft
- 38 Serviced Apartments mit durchdachten Grundrissen
- Großteils mit Balkon, Loggia oder Terrasse ausgestattet
- Nachhaltige Energieversorgung durch Luftwärmepumpe und Photovoltaikanlage
- Fußbodenheizung mit zusätzlicher Kühlfunktion in den Regelgeschossen
- Klimaanlagen in den Dachgeschossen für optimalen Wohnkomfort
- Moderne 3-fach verglaste Kunststofffenster für hohe Energieeffizienz
- Liftanlage, begrünter Innenhof und attraktive Allgemeinflächen
Hochwertige Ausstattung mit Komfort
Die Apartments überzeugen durch eine moderne Ausstattung und eine langlebige Bauqualität.
- Vinylböden in Holzoptik in Wohn- und Schlafräumen
- Großformatige Fliesen (60×60 bzw. 30×60) in Bad und WC
- Bodenebene Duschen mit Glasabtrennung
- Marken-Sanitärausstattung (u. a. Laufen, Hansgrohe)
- Sicherheitseingangstüren mit einbruchhemmender Ausführung
- Fußbodenheizung mit Einzelraumregelung
- Video-Gegensprechanlage und moderne Elektroausstattung
- Beschattungssysteme und hochwertige Fensterlösungen
- Begrünter Innenhof und moderne Außenanlagen
Die Kombination aus moderner Gebäudetechnik, energieeffizienter Bauweise und funktionalen Grundrissen sorgt für geringe Betriebs- und Energiekosten und macht das Projekt zu einer langfristig attraktiven Anlage.
Perfekte Lage in Floridsdorf
Die Ruthnergasse im 21. Wiener Gemeindebezirk verbindet ruhiges Wohnen mit guter Infrastruktur. Die S-Bahn-Station Wien Siemensstraße sowie der Verkehrsknoten Floridsdorf mit U6 und S-Bahn sorgen für eine schnelle Anbindung in die Wiener Innenstadt. Einkaufsmöglichkeiten, Gastronomie und Freizeitangebote befinden sich im direkten Umfeld, während nahegelegene Grünflächen zusätzliche Erholungsmöglichkeiten bieten. Dadurch entsteht eine attraktive Wohnlage mit hoher Lebensqualität und nachhaltigem Vermietungspotenzial.
Kaufpreise der Vorsorgewohnungen
von EUR 270.000, - bis EUR 712.800, - netto zzgl. 20% USt.
Zu erwartender Mietrendite p.a.
3,6% - 3,8%
Provisionsfrei für den Käufer!
Fertigstellung: voraussichtlich Q1/2028
Bei diesem Angebot handelt es sich um eine Vorsorgewohnung, die zu Vermietungszwecken erworben wird. Der angegebene Kaufpreis versteht sich daher zzgl. 20% USt. Diese Daten sind vorbehaltlich möglicher Änderungen.
Wir weisen darauf hin, dass zwischen dem Vermittler und dem zu vermittelnden Dritten ein familiäres oder wirtschaftliches Naheverhältnis besteht.
Der Vermittler ist als Doppelmakler tätig.
Infrastruktur / Entfernungen
Gesundheit
Arzt <750m
Apotheke <1.000m
Klinik <1.000m
Krankenhaus <1.000m
Kinder & Schulen
Schule <1.000m
Kindergarten <750m
Universität <2.250m
Höhere Schule <2.250m
Nahversorgung
Supermarkt <500m
Bäckerei <750m
Einkaufszentrum <1.000m
Sonstige
Geldautomat <1.000m
Bank <1.000m
Post <1.000m
Polizei <1.000m
Verkehr
Bus <500m
U-Bahn <1.750m
Straßenbahn <1.000m
Bahnhof <500m
Autobahnanschluss <1.500m
Angaben Entfernung Luftlinie / Quelle: OpenStreetMap
Eckdaten
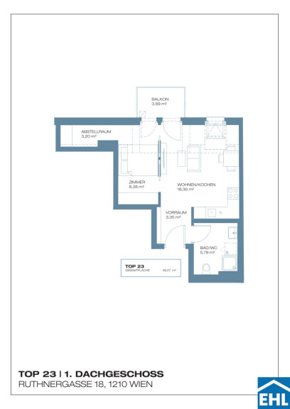
| Kaufpreis: | 376.800,00 € |
| Fläche: | 39,07 m² |
| Zimmer: | 2 |
Basisdaten zur Immobilie
| Objektnr: | 95374 |
| Art: | Wohnung |
| Land: | Österreich |
| Zustand: | Voll_saniert |
| Alter: | Neubau |
| Kaufpreis: | 376.800,00 € |
| Kaufpreis / m²: | auf Anfrage |
| Provision: | Provision bezahlt der Abgeber. |
| Sonstige Kosten: | 44,15 € |
| Wohnfläche: | 39,07 m² |
| Zimmer: | 2 |
| Bäder: | 1 |
| WC: | 1 |
| Balkone: | 1 |
| Heizwärmebedarf: | B 25,80 kWh/m²a |
| fGEE: | A 0,72 |
Ausstattung
Fliesen, Kunststoffboden, Fußbodenheizung, Einbauküche, Wohnküche / offene Küche, Personenaufzug, Dusche
Internet und TV
Information zur Internet und TV Versorgung hier
Ihre persönliche Beratung
Andrea PÖCHHACKER; MSc
EHL Immobilien GmbH
a.poechhacker@ehl.at
+4315127690 DW 411
+43664 83 73 481
