Lage der Immobilie
KAISER EBERSDORF/ETRICHGASSEBeschreibung der Immobilie
CHARMANTES 2 ZIMMER APARTENT
Bitte schriftliche Anfragen mit ausgefüllter Mieterselbstauskunft: https://storage.justimmo.at/file/1Chj7A5Zm6IhicsFv6iX9c.pdf den 3 letzten Einkommensnachweise, einer Reisepass- und Meldezettel Kopie an: molnar@imsimmo.at.
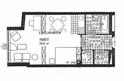
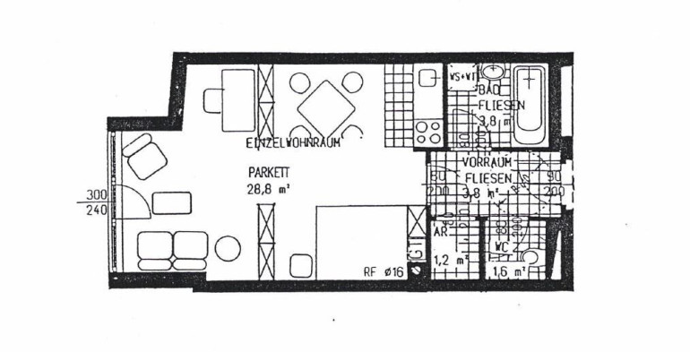
- ca. 49m² bestehend aus: Zimmer mit offener Wohn-Einbau-Küche, SchlafzimmerVorraum, Abstellraum, Badezimmer mit Badewanne und Waschmaschine, WC separataus1 Kellerabteil 2m²
- Ausstattung: Gasetagenheizung mit Gastherme im Abstellraum, Parketten, französisches Fenster, Einbauküche
- Ablöse WM 250,—
- 1. Liftstock
- die Wohnung ist derzeit noch vermietet und wird unmöbliert übergeben, Einbauküche bleibt
- Miete 750,— exkl. Gas & Strom je nach Verbrauch
- Mietdauer 5 Jahre
- Kaution: 3.000,—
- gerne vereinbare ich einen Besichtigungstermin für Sie!
- das Anbot ist unverbindlich und freibleibend, Objektinformationen lt. Angaben des Abgebers
BITTE BEACHTEN SIE, DASS WIR AUFGRUND DES FAGG FERN- AUSWÄRTSGESCHÄFTEGESETZES UND DER NACHWEISPFLICHT GEGENÜBER DEM EIGENTÜMER NUR ANFRAGEN MIT VOLLSTÄNDIGER ANGABE DES NAMENS, DER ANSCHRIFT UND DER TELEFONNUMMER BEARBEITEN KÖNNEN.
Hinweis gemäß Energieausweisvorlagegesetz: Ein Energieausweis wurde vom Eigentümer bzw. Verkäufer, nach Aufklärung
über die ab 1.12.2012 geltende generelle Vorlagepflicht, noch nicht vorgelegt. Daher gilt zumindest eine dem Alter und der Art des Gebäudes entsprechende Gesamtenergieeffizienz als vereinbart. Wir übernehmen keinerlei Gewähr oder Haftung für die tatsächliche Energieeffizienz der angebotenen Immobilie.
Haben auch Sie eine Immobilie, die Sie verkaufen oder vermieten wollen?
Wir unterstützen Sie gerne vom ersten persönlichen Beratungsgespräch bis zum erfolgreichen Vertragsabschluss und schon bald wird auch Ihre Liegenschaft „erfolgreich vermittelt" sein.
Ich freue mich von Ihnen zu hören.
Als Immobilientreuhänder sind wir einerseits Ihnen als Interessent, als auch dem Abgeber als Verkäufer bzw. Vermieter verpflichtet. Immobiliengeschäfte sind keine kleinen Geschäfte des täglichen Lebens, deshalb sind wir einerseits gegenüber dem Abgeber, als auch gegenüber Behörden verpflichtet bei Ungereihmtheiten Auskunft geben zu können, an welche Personen Immobilien angeboten wurden.
Auch die europäischen Verbraucherrechte wurden vereinheitlicht, somit wird seit 13. Juni 2014 ebenso mit Ihnen als Interessent ein schriftlicher Maklervertrag abgeschlossen (früher geschah dies mündlich & es entfällt das Ausfüllen von "Besichtigungsscheinen"). Der Verband der Österreichischen Immobilienwirtschaft hat hierzu ebenso eine detailierte Informationsseite eingerichtet: http://www.ovi.at/recht/verbraucherrechte-vrug/
Wir benötigen daher um Ihnen detaillierte Unterlagen zukommen zu lassen Ihren Namen und Ihre Wohnadresse (Straße, Hausnummer - wenn vorhanden: Stiege & Tür - PLZ und Ort).
Infrastruktur / Entfernungen
Gesundheit
Arzt <1.000m
Apotheke <1.000m
Klinik <2.500m
Krankenhaus <6.500m
Kinder & Schulen
Schule <1.000m
Kindergarten <1.000m
Universität <5.500m
Höhere Schule <6.000m
Nahversorgung
Supermarkt <500m
Bäckerei <1.000m
Einkaufszentrum <1.500m
Sonstige
Geldautomat <1.000m
Bank <1.000m
Post <1.000m
Polizei <500m
Verkehr
Bus <500m
U-Bahn <3.500m
Straßenbahn <500m
Bahnhof <2.000m
Autobahnanschluss <2.000m
Flughafen <9.500m
Angaben Entfernung Luftlinie / Quelle: OpenStreetMap
Eckdaten
| Gesamtmiete: | 750,00 € |
| Fläche: | 49,00 m² |
| Zimmer: | 2 |
Basisdaten zur Immobilie
| Objektnr: | 7106 |
| Art: | Wohnung - Etage |
| Land: | Österreich |
| Baujahr: | 1998 |
| Zustand: | Gepflegt |
| Möbliert: | Voll |
| Alter: | Neubau |
| Gesamtmiete: | 750,00 € |
| Kaltmiete (netto): | 750,00 € |
| Kaltmiete: | 750,00 € |
| Provision: | PROVISIONSFREI |
| Wohnfläche: | 49,00 m² |
| Nutzfläche: | 51,00 m² |
| Zimmer: | 2 |
| Bäder: | 1 |
| WC: | 1 |
| Keller: | 2,00 m² |
| Heizwärmebedarf: | B 41,00 kWh/m²a |
| fGEE: | C 1,11 |
Ausstattung
Parkett, Fliesen, Gas, Etagenheizung, Einbauküche, Wohnküche / offene Küche, Personenaufzug, Badewanne, Kabel/Satelliten-TV
Internet und TV
Information zur Internet und TV Versorgung hier
Ihre persönliche Beratung
Susanne Walcher
IMS Immobilien Molnar Susanne
molnar@imsimmo.at
+43 664 370 0 370
+436643700370
