Günstige Bürofläche in Urfahr - hell & offen mit bester Infrastruktur!
Büro / Praxis
- Bürofläche,
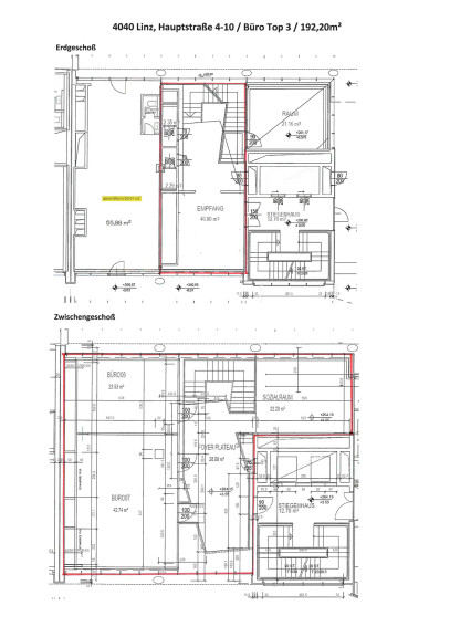
4040
Linz
Lage der Immobilie
Das Donaucenter liegt zentral im Linzer Stadtteil Urfahr an der Hauptstraße, einer belebten Einkaufs- und Geschäftsstraße. In unmittelbarer Umgebung befinden sich zahlreiche Einzelhandelsgeschäfte, Gastronomiebetriebe und Dienstleister. Die Straßenbahnlinien 1, 2, 3 und 4 sowie mehrere Buslinien halten in direkter Nähe und bieten eine schnelle Anbindung an die Innenstadt. Für den Individualverkehr ist das Donaucenter über die A7 in nur 10 Minuten erreichbar, Parkmöglichkeiten finden sich in der Umgebung sowie in der nahegelegenen Lentia-City-Tiefgarage. Durch diese zentrale Lage und die ausgezeichnete Verkehrsanbindung stellt das Donaucenter einen attraktiven Standort für gewerbliche Nutzungen dar.Beschreibung der Immobilie
Eckdaten
| Gesamtmiete: | 2.578,56 € |
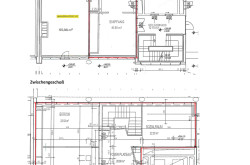
| Fläche: | 192,20 m² |
Basisdaten zur Immobilie
| Objektnr: | 505250153_6 |
| Art: | Büro / Praxis - Bürofläche |
| Land: | Österreich |
| Baujahr: | 1990 |
| Gesamtmiete: | 2.578,56 € |
| Kaltmiete (netto): | 1.345,40 € |
| Kaltmiete: | 2.148,80 € |
| Miete / m²: | 7,00 € |
| Provision: | 3 BMM zzgl. 20% USt. |
| Betriebskosten: | 803,40 € |
| Bürofläche: | 192,20 m² |
| Heizwärmebedarf: | C 56,30 kWh/m²a |
| fGEE: | C 1,02 |
Ausstattung
Fernwärme
Internet und TV
Information zur Internet und TV Versorgung hier
Ihre persönliche Beratung
Rainer Kutschera
ÖRAG Immobilien Vermittlung GmbH
rainer.kutschera@oerag.at
004366488710733
004366488710733
