Einfamilienhaus mit Weitblick, Ruhe und Familienglück in Tanneben
Haus
- Einfamilienhaus,
6181
Sellrain
Lage der Immobilie
Das Haus befindet sich im idyllischen Weiler Tanneben in der Gemeinde Sellrain und bietet eine ideale Wohnlage für Familien, die naturnah leben und gleichzeitig gut angebunden sein möchten. Die ruhige Umgebung, eingebettet in eine beeindruckende Berg- und Waldlandschaft, sorgt für hohe Lebensqualität und viel Erholung im Alltag.
Die öffentliche Anbindung ist durch den regionalen Ortsbus sehr gut gegeben und ermöglicht eine unkomplizierte Verbindung innerhalb des Sellraintals sowie in Richtung Innsbruck. Auch mit dem privaten Fahrzeug ist die Lage bestens erschlossen – Sellrain, Grinzens und weiterführende Verkehrsachsen sind in wenigen Minuten erreichbar. Zudem überzeugt die Stadtnähe: Das Zentrum von Innsbruck erreicht man mit dem Auto in rund 20 Minuten.
Eine gute Infrastruktur mit Einkaufsmöglichkeiten, Supermärkten, Gastronomie und weiteren Einrichtungen des täglichen Bedarfs befindet sich sowohl in Sellrain als auch im nahegelegenen Grinzens. Kinderbetreuungseinrichtungen und Schulen sind in der Umgebung vorhanden und bequem erreichbar – ein großer Vorteil für Familien.
Die Lage überzeugt zudem durch ein vielseitiges Freizeitangebot: Im Sommer laden zahlreiche Wanderwege und Naturerlebnisse direkt vor der Haustür zu gemeinsamen Ausflügen ein. Im Winter ist Schneeschuhwandern ab Haus dank der unmittelbaren Waldnähe möglich, während die beliebten Skigebiete Axamer Lizum und Kühtai nur wenige Fahrminuten entfernt liegen.
Eine perfekte Kombination aus Ruhe, Natur, Familienfreundlichkeit und guter Erreichbarkeit – ideal für alle, die ein Zuhause mit hoher Lebensqualität suchen.
Beschreibung der Immobilie
Wohnen am Waldrand – Einfamilienhaus mit Weitblick, Ruhe und Familienglück in Tanneben
- Lage: Innsbruck-Land / Sellrain - Weiler Tanneben
- Grundstücksgröße: ca. 463 m²
- Baujahr: 2006
- Wohnfläche: ca. 142,76 m²
- Terrasse: ca. 63,5 m²
- Garage: ca. 63,5 m²
- Kaufpreis: € 695.000,-
- Vermittlungshonorar: 3% vom Kaufpreis zzgl. 20% USt.
Am Ende einer ruhigen Sackgasse, eingebettet in die Natur und direkt am Waldrand, liegt dieses besondere Einfamilienhaus im idyllischen Weiler Tanneben in der Gemeinde Sellrain. Ein Zuhause für Familien, die sich nach Geborgenheit, Freiraum und naturnahem Wohnen sehnen – ohne auf Komfort und gute Erreichbarkeit verzichten zu müssen.
Auf einem ca. 463 m² großen Grundstück genießen Sie hier absolute Ruhe, Privatsphäre und einen unverbaubaren Blick ins Inntal. Kinder können unbeschwert draußen spielen, während die Natur direkt vor der Haustür beginnt – ein Ort, an dem man ankommt und bleiben möchte.
Das im Jahr 2006 errichtete Haus präsentiert sich in einem sehr gepflegten Zustand und vereint Massivbauweise im Erdgeschoss mit behaglicher Holzbauweise im Obergeschoss – eine Kombination, die sowohl Beständigkeit als auch alpine Wohnqualität vermittelt.
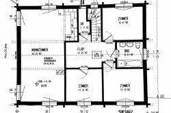
Die Wohnfläche von ca. 142,76 m², verteilt auf nur zwei Ebenen, bietet ein durchdachtes Raumkonzept für das Familienleben.
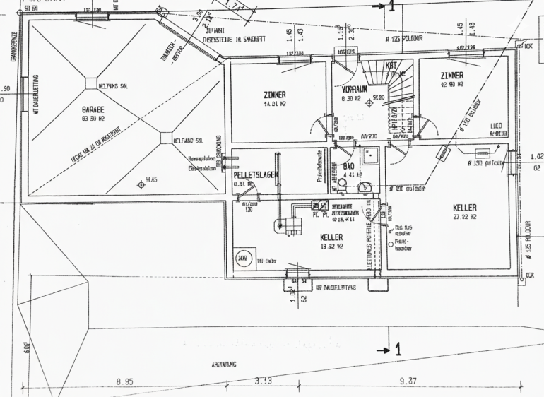
Im Erdgeschoss erwarten Sie ein einladender Eingangsbereich, zwei vielseitig nutzbare Zimmer (ideal als Kinder-, Gäste- oder Arbeitszimmer), ein Badezimmer mit Dusche sowie ein großzügiger Kellerraum mit Fenster, der sich hervorragend als Fitness- oder Wellnessraum eignet. Ergänzt wird diese Ebene durch den Technikraum mit integrierter Waschküche.
Über eine charmante Holztreppe gelangen Sie in das Herzstück des Hauses: den großzügigen Wohn- und Essbereich mit hochwertiger Einbauküche. Der offene Sichtdachstuhl mit bis zu 5 Metern Raumhöhe, die großen Fensterfronten und die warme Holzbauweise schaffen ein einzigartiges Wohngefühl – lichtdurchflutet, offen und gleichzeitig unglaublich gemütlich. Drei weitere Zimmer, ein großes Badezimmer mit Badewanne, Dusche und Fenster sowie ein Abstellraum komplettieren diese Ebene.
Ein besonderes Highlight ist die ca. 63,5 m² große Süd-West-Terrasse, die direkt vom Wohnzimmer aus erreichbar ist. Mit ihrem traumhaften Ausblick ins Inntal wird sie in den warmen Monaten zum zweiten Wohnzimmer – perfekt für Familienessen im Freien, entspannte Abende oder spielende Kinder in sicherer Umgebung.
Praktisch und komfortabel zeigt sich auch die großzügige Garage direkt unter der Terrasse, ebenfalls ca. 63,5 m² groß, mit Platz für bis zu drei Fahrzeuge sowie ausreichend Stauraum für Sport- und Freizeitgeräte. Zusätzlich stehen weitere Parkmöglichkeiten für ca. drei Fahrzeuge direkt am Grundstück zur Verfügung.
Beheizt wird das Haus nachhaltig und effizient mittels Pelletsheizung – ein weiterer Pluspunkt für umweltbewusstes Wohnen.
Ein Zuhause, das mehr ist als vier Wände
Dieses Haus vereint Natur, Ruhe, Weitblick und Familienfreundlichkeit auf besondere Weise. Ein Ort, an dem Kinder aufwachsen dürfen, Erinnerungen entstehen und jeder Tag ein Stück Lebensqualität schenkt.
Lassen Sie sich bei einer persönlichen Besichtigung von dieser besonderen Immobilie begeistern – ich freue mich auf Ihre Kontaktaufnahme.
Eckdaten
| Kaufpreis: | 695.000,00 € |
| Fläche: | 142,76 m² |
| Zimmer: | 6 |
Basisdaten zur Immobilie
| Objektnr: | 0017000636 |
| Art: | Haus - Einfamilienhaus |
| Land: | Österreich |
| Baujahr: | 2006 |
| Kaufpreis: | 695.000,00 € |
| Provision: | 3% des Kaufpreises plus 20% USt. |
| Wohnfläche: | 142,76 m² |
| Grundstücksfl.: | 463,00 m² |
| Zimmer: | 6 |
| Bäder: | 2 |
| WC: | 2 |
| Terrassen: | 1 |
| Keller: | 56,35 m² |
Ausstattung
Zentralheizung
Internet und TV
Information zur Internet und TV Versorgung hier
Ihre persönliche Beratung
Sigrid Schönthaler-Kober
Raiffeisen Tirol Telfs-Mieming eGen
sigrid.schoenthaler-kober@rbm.tirol
46834
