Beschreibung der Immobilie
Charmante 2-Zimmer-Wohnung mit Balkon in zentraler Lage von Bregenz
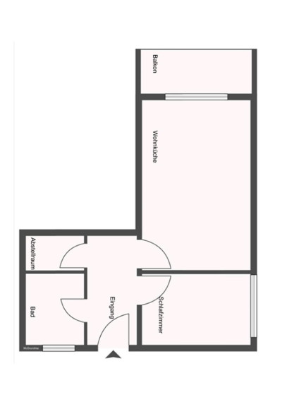
Diese zentrale Stadtwohnung mit ca. 35 m² befindet sich im 2. Obergeschoss (ohne Lift) und bietet:
- heller Wohnbereich mit Balkon und Ausblick auf Pfänder und Gebhardsberg
- separates Schlafzimmer und großzügiges Badezimmer
- Kellerabteil für zusätzlichen Stauraum
- allgemeine Stellplätze vor dem Haus
Aktuell wird die Immobilie vollständig renoviert und entspricht anschließend einem Erstbezug.
Interessiert? Senden Sie uns heute noch Ihre Anfrage!
Nebenkosten:
Mietvertragserrichtungskosten
Mietkaution: 3 Bruttomieten Sparbuch oder Bankgarantie
Eckdaten
| Gesamtmiete: | 920,00 € |
| Fläche: | 35,00 m² |
| Zimmer: | 2 |
Basisdaten zur Immobilie
| Objektnr: | 0020001495 |
| Art: | Wohnung |
| Land: | Österreich |
| Baujahr: | 1962 |
| Gesamtmiete: | 920,00 € |
| Kaltmiete: | 920,00 € |
| Betriebskosten: | 160,00 € |
| Wohnfläche: | 35,00 m² |
| Zimmer: | 2 |
| Bäder: | 1 |
| Balkone: | 1 |
| Keller: | 5,00 m² |
| Heizwärmebedarf: | D 107,60 kWh/m²a |
| fGEE: | D 1,88 |
Ausstattung
Öl, Zentralheizung
Internet und TV
Information zur Internet und TV Versorgung hier
Ihre persönliche Beratung
Karina Rath
Raiffeisen Vorarlberg
karina.rath@raiba.at
05574405588
